ERSTBEZUG - EG-Büro oder Studio bei den DC-Flats

Büro / Praxis , 1220 Wien


- DC-Flats - Donau City - Kaisermühlen - Vienna International Center - Donauplatte

Beschreibung der Immobilie

ERSTBEZUG - EG-Büro oder Studio bei den DC-Flats

Sehr geehrte Damen und Herren,





zur Vermietung gelangt eine attraktive Bürofläche im neu errichteten Tower der DC-Flats.





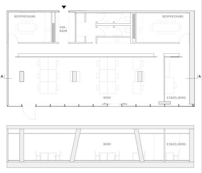
Die Fläche teilt sich wie folgt auf:



- ansprechender großer und loftartiger Büroraum



- ein weiterer Büroraum



- 2 Besprechungsräume



- getrennte Toiletten





Fast Facts:



  • 148,60m²
  • EG
  • Kühlung
  • Fernwärme
  • flexibles Raumkonzept



Kosteninformationen:



  • Hauptmietzins: 20,-- EUR /m²/ netto
  • BK: 2,98 EUR /m²/ Monat
  • HMZ + BK: 3.414,83 EUR (zzgl. 20% USt.)
  • HMZ + BK: 4.097,80 EUR (inkl. 20% USt.)




Von Seiten des Hauseigentümers werden Sanitäreinheit und Bodenbelag gestellt.



Allfällige Zwischenwände, CAT-Verkabelung, Beleuchtung und Teeküche sind mieterseitig zu stellen.





Ich freue mich auf Ihre Anfrage und Ihr Konzept!


Wir weisen darauf hin, dass zwischen dem Vermittler und dem zu vermittelnden Dritten ein familiäres oder wirtschaftliches Naheverhältnis besteht.


Der Vermittler ist als Doppelmakler tätig.

Infrastruktur / Entfernungen

Gesundheit
Arzt <500m
Apotheke <500m
Klinik <1.500m
Krankenhaus <2.500m

Kinder & Schulen
Schule <500m
Kindergarten <500m
Universität <2.000m
Höhere Schule <3.000m

Nahversorgung
Supermarkt <500m
Bäckerei <500m
Einkaufszentrum <2.000m

Sonstige
Geldautomat <500m
Bank <500m
Post <500m
Polizei <500m

Verkehr
Bus <500m
U-Bahn <500m
Straßenbahn <1.500m
Bahnhof <500m
Autobahnanschluss <500m

Angaben Entfernung Luftlinie / Quelle: OpenStreetMap

Eckdaten Objektnr. 271545575

Art: Büro / Praxis
Land: Österreich
Kaltmiete (netto): 2.972,00 €
Kaltmiete: 3.414,83 €
Betriebskosten: 442,83 €
MwSt Gesamt: 682,97 €
Nutzfläche: 148,60 m²
WC: 2
Heizwärmebedarf:  A  19,12 kWh/m²a
fGEE:  A  0,82
Immobilie merken Exposé

Ausstattung

Fernwärme


Immobilie anfragen


Ihre persönliche Beratung

Immobiliaris GmbH

Mag. Lukas Suk

Immobiliaris GmbH

T +43 676 7304391