"GRÖDIG - Modernes und geräumiges Appartement mit großer Loggia und Bergblick"
Wohnung
,
5082
Grödig
Grödig ist eine Marktgemeinde im Land Salzburg im Bezirk Salzburg-Umgebung in Österreich mit 7392 Einwohnern (Stand 1. Jänner 2022). Innerhalb des Salzburger Lands liegt Grödig im Flachgau am südwestlichen Rand des Salzburger Beckens. Es befindet sich am Fuß des Untersbergs, an der Anschlussstelle Salzburg-Süd der Tauern Autobahn. Das Gemeindegebiet umfasst folgende vier Ortschaften (in Klammern Einwohnerzahl Stand 1. Jänner 2022): - Eichet (285) samt Baderbauer und Holznergütl - Glanegg (2236) samt Fürstenbrunn und Untersberg - Grödig (3803) samt Gartenau und Hangendenstein - Sankt Leonhard (1108) samt Drachenloch Die Gemeinde besteht aus den Katastralgemeinden Glanegg und Grödig.
Beschreibung der Immobilie
"GRÖDIG - Modernes und geräumiges Appartement mit großer Loggia und Bergblick"
Das moderne Appartement befindet sich in einem neuen Wohnkomplex in Grödig mit 24 Wohnungen und 4 Gewerbeeinheiten. Das Wohnhaus verfügt über eine Tiefgarage, Fahrradabstellplätze mit E-Ladestation sowie einen Aufzug. Zur Einheit ist ein Kellerabteil und ein eigener TG-Stellplatz zugehörig.
Das Gebäude liegt unweit vom Ortskern entfernt und bietet alles was man für den täglichen Bedarf benötigt. Vor dem Haus befindet sich sogar die Bushaltestelle für die Linien 25, 28 und 35. Eine optimale Verkehrsanbindung zum Autobahnanschluss und in die Stadt ist ebenso gegeben.
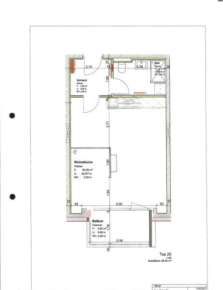
Die Wohnung selbst liegt im 2. Stock mit Blick ins Gebirge und ist s/w ausgerichtet. Bestehend ist die Wohnung aus einem Vorraum, einem Badezimmer mit Dusche/Waschtisch/Toilette/WM-Anschluss, einem großen offenen Wohn-, Ess-, Kochbereich mit abgeteilten Schlafbereich und der großen sonnigen Loggia.
Die tatsächliche Abrechnung der Heizung erfolgt nach Jahresende und ist nicht in den Betriebskosten inkludiert! Verträge für Strom, Internet, TV und Telefonie müssen mit dem jeweiligen Anbieter abgeschlossen und die Kosten vom Mieter getragen werden.
Wir weisen darauf hin, dass zwischen dem Vermittler und dem zu vermittelnden Dritten ein familiäres oder wirtschaftliches Naheverhältnis besteht.
Der Vermittler ist als Doppelmakler tätig.
Infrastruktur / Entfernungen
Gesundheit
Arzt <2.000m
Apotheke <500m
Klinik <5.500m
Krankenhaus <6.500m
Kinder & Schulen
Schule <500m
Kindergarten <1.500m
Universität <2.500m
Höhere Schule <3.000m
Nahversorgung
Supermarkt <500m
Bäckerei <500m
Einkaufszentrum <6.000m
Sonstige
Bank <500m
Geldautomat <500m
Post <500m
Polizei <1.000m
Verkehr
Bus <500m
Bahnhof <4.000m
Autobahnanschluss <1.000m
Flughafen <7.000m
Angaben Entfernung Luftlinie / Quelle: OpenStreetMap
Eckdaten Objektnr. 53176
| Art: | Wohnung |
| Land: | Österreich |
| Baujahr: | 2021 |
| Zustand: | Neuwertig |
| Alter: | Neubau |
| Gesamtmiete: | 924,48 € |
| Kaltmiete (netto): | 700,00 € |
| Kaltmiete: | 791,56 € |
| Provision: | 2 Bruttomonatsmieten zzgl. 20% USt. |
| Betriebskosten: | 83,43 € |
| Heizkosten: | 46,56 € |
| MwSt Gesamt: | 86,36 € |
| Wohnfläche: | 39,00 m² |
| Nutzfläche: | 45,00 m² |
| Gesamtfläche: | 45,00 m² |
| Zimmer: | 1,50 |
| Bäder: | 1 |
| WC: | 1 |
| Stellplätze: | 1 |
| Keller: | 4,00 m² |
| Heizwärmebedarf: | A 20,00 kWh/m²a |
| fGEE: | A+ 0,65 |
Ausstattung
Parkett, Fliesen, Erdwärme, Fußbodenheizung, Wohnküche / offene Küche, Personenaufzug, Dusche, Kabel/Satelliten-TV, Tiefgarage
Ihre persönliche Beratung
Siegfried Seidl
MIA Real Estate
T +43 6644120946