2 ZIMMER WOHNUNG | RUHIG UND SONNIG | MIT TERASSE | NIEDRIGE ENERGIEKOSTEN

Wohnung , 1210 Wien , Kantnergasse


Beschreibung der Immobilie

2 ZIMMER WOHNUNG | RUHIG UND SONNIG | MIT TERASSE | NIEDRIGE ENERGIEKOSTEN

Dieses tolle und moderne Wohngebäude verfügt über insgesamt 10 Stockwerke, inklusive dem Erdgeschoss und 2 Dachgeschossen.



Die Mietwohnungen bieten Ihnen sorgfältig geplante Grundrisse und einen umfassenden Lebenskomfort. 



Zur inkludierten Ausstattung zählt eine qualitativ hochwertige Küche, ein schönes Badezimmer und hochwertige Eichen-Parkettböden.



Jede Wohnung wird ein Kellerabteil zugeordnet. Es gibt einen begrünten Innenhof mit einem Kinderspielplatz sowie eine allgemeine Terrasse im 6. Obergeschoss. Hier finden Sie Spielmöglichkeiten für Kinder, einen Tischtennistisch sowie Sitzbänke.



In der hauseigenen Tiefgarage haben Sie die Möglichkeit, einen oder mehrere PKW-Stellplätze für 138,- € brutto pauschal anzumieten.





Informationen zum Objekt und zur Ausstattung



Die Wärmeversorgung erfolgt über eine Haus-Zentralheizung und kann auf den Heizkörpern in den einzelnen Wohneinheiten geregelt werden. Der Wasserkreislauf wird mittels Gas erhitzt - mit Unterstützung von Sonnenenergie, welche durch Solar-Röhren auf dem Dach aufgenommen wird.



Sämtliche Wohnräume sowie der Abstellraum und der Vorraum sind mit hochwertigen Eichen-Parkettboden verlegt. Das Badezimmer und die Toilette sind mit 30x30cm Fliesen ausgestattet und die Badewannen sind teilweise mit Duschwänden versehen. Die Fenster sind aus Kunststoff und können bei Bedarf durch Rollos/Jalousien ergänzt werden. Bei manchen Wohnungen sind Außen- und Innen-Jalousien bereits standardgemäß vorhanden sowie Alu-Beschichtungen auf den straßenseitigen Fenstern.



Die Küche umfasst ein Kochfeld, ein Backrohr, einen Kühlschrank mit Tiefkühlfach, einen Dunstabzug, eine Spüle und einen Geschirrspüler.



Im Gebäude finden Sie ausreichend Fahrrad-und Kinderwagen-Abstellräume.





Lage



Die Wohnungen befinden sich in einer guten Verkehrslage im 21. Wiener Gemeindebezirk.



Die Straßenbahnlinien 30 und 31 liegen direkt vor dem Haus und bringen Sie rasch zum Verkehrsknotenpunkt Wien Floridsdorf sowie nach Stammersdorf. In der Frauenstiftgasse finden Sie die Buslinie 31A, mit der Sie rasch zur Siemensstraße und zum Kagraner Platz gelangen.



Von Floridsdorf aus kommen Sie sehr zügig nach Wien Mitte, zum Hauptbahnhof und zum Praterstern (U1, U2). Mit der U1 sind Sie dann über 2 Stationen in der Wiener Innenstadt.



Die Schnellbahnstation "Wien Brünner Straße" erreichen Sie in ca. 15 Gehminuten, beziehungsweise über eine Station mit der Straßenbahn.



In der umliegenden Umgebung finden Sie eine Postfiliale, Lebensmittelgeschäfte, einen Elektrofachmarkt, das Einkaufszentrum Trillerpark, ein Fitnesscenter, Apotheken, eine Volksschule, Bäckereien, eine Tierarztpraxis, Arztpraxen, Weinlokale und viele kulinarische Angebote.





Die Wohnungen sind nicht möbliert, sie inkludieren aber Küchen und Sanitärausstattungen.



Die Wohnungen werden befristet für 5 Jahre vermietet. 



Die verwenden Fotos sind teils Musterfotos und exemplarische Darstellungen.



Bitte beachten Sie auch, dass zur Anmietung einer Wohnung, ein Nettohaushaltseinkommen von mind. dem 2,5-fachen der Miete benötigt wird. Sozialleistungen und AMS-Gelder dürfen hier nicht zugerechnet werden.

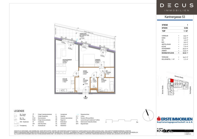
2-Zimmer-Wohnung mit folgender Aufteilung:



- Vorraum



- WC mit Handwaschbecken



- Bad mit Wanne



- Abstellraum



- Wohnküche 



- Schlafzimmer



- Terrasse


Wir weisen darauf hin, dass zwischen dem Vermittler und dem zu vermittelnden Dritten ein familiäres oder wirtschaftliches Naheverhältnis besteht.


Der Immobilienmakler erklärt, dass er – entgegen dem in der Immobilienwirtschaft üblichen Geschäftsgebrauch des Doppelmaklers – einseitig nur für den Vermieter tätig ist.

DECUS Immobilien GmbH – Wir beleben Räume

Für weitere Informationen und Besichtigungen steht Ihnen gerne Frau  Laura Kowalczyk unter der Mobilnummer +43 660 157 59 35und per E-Mail unter kowalczyk@decus.at persönlich zur Verfügung.

www.decus.at | office@decus.at 

Wichtige Informationen

Bitte beachten Sie, dass per 13.06.2014 eine neue Richtlinie für Fernabsatz- und Auswärtsgeschäfte in Kraft getreten ist.

Ab 1.4.2024 entfallen die Grundbuchs- und Pfandrechtseintragungsgebühren vorübergehend für Eigenheime bis zu einer Bemessungsgrundlage von EUR 500.000,-. Voraussetzung ist das dringende Wohnbedürfnis, ausgenommen davon sind vererbte oder geschenkte Immobilien. Die Befreiung ist jedoch für den Einzelfall zu prüfen, DECUS Immobilien übernimmt hierzu keine Haftung.

Ab 01.07.2023 gilt das Erstauftraggeber-Prinzip bei Wohnungsmietverträgen, ausgenommen davon sind Dienst-/Natural-/Werkswohnungen. Wir dürfen gem. § 17 Maklergesetz darauf hinweisen, dass wir auf die Doppelmaklertätigkeit gem. § 5 Maklergesetz bei Wohnungsmietverträgen verzichten und nur noch einseitig tätig sind (bei den restlichen Vermittlungsarten nicht) und ein wirtschaftliches Naheverhältnis zu unseren Auftraggebern besteht. 

Im Falle eines Abschlusses mit Ihnen oder einem von Ihnen namhaft gemachten Dritten bzw. bei beidseitiger Willensübereinstimmung beträgt unser Honorar (lt. Honorarverordnung für Immobilienmakler) 2 Bruttomonatsmieten (BMM) bei Dienst-/Natural-/Werkwohnungen sowie Suchaufträgen, 3 BMM bei Gewerbe-, PKW-, Keller- und Lagermietverträgen sowie bei Kaufobjekten 3 % des Kaufpreises, zuzüglich der gesetzlichen Umsatzsteuer.

Dieses Objekt wird Ihnen unverbindlich und freibleibend angeboten. Oben angeführte Angaben basieren auf Informationen und Unterlagen des Eigentümers und sind unsererseits ohne Gewähr.

Nähere Informationen sowie unsere AGBs und die Nebenkostenübersichtsblatt finden Sie auf unserer Homepage www.decus.at unter "Service" - "Rechtliches zum FAGG" sowie im Anhang der zugesendeten Objekt-Exposés!

Infrastruktur / Entfernungen

Gesundheit
Arzt <250m
Apotheke <250m
Klinik <1.000m
Krankenhaus <1.250m

Kinder & Schulen
Schule <250m
Kindergarten <250m
Universität <2.000m
Höhere Schule <2.500m

Nahversorgung
Supermarkt <250m
Bäckerei <250m
Einkaufszentrum <750m

Sonstige
Geldautomat <250m
Bank <250m
Post <250m
Polizei <500m

Verkehr
Bus <250m
U-Bahn <2.250m
Straßenbahn <250m
Bahnhof <1.000m
Autobahnanschluss <1.250m

Angaben Entfernung Luftlinie / Quelle: OpenStreetMap

Eckdaten Objektnr. 1152724

Art: Wohnung
Land: Österreich
Baujahr: 2018
Alter: Neubau
Gesamtmiete: 1.250,65
Kaltmiete (netto): 1.029,02 €
Kaltmiete: 1.136,96 €
Provision: Gemäß Erstauftraggeberprinzip bezahlt der Abgeber die Provision.
Betriebskosten: 107,94 €
MwSt Gesamt: 113,69 €
Wohnfläche: 63,50 m²
Zimmer: 2
Terrassen: 1
Heizwärmebedarf:  A  21,20 kWh/m²a
fGEE:  B  0,89
Immobilie merken Exposé

Ausstattung

Fernwärme


Immobilie anfragen


Ihre persönliche Beratung

DECUS Immobilien GmbH

Laura Kowalczyk

DECUS Immobilien GmbH

T +43 660 157 59 35

H +43 660 157 59 35

F +43 1 35 600 10