NEUBAUPROJEKT: PRÖLLHOFSTRASSE | OBERALM - 4 Zimmer Penthouse mit großzügiger Terrasse & Balkon - PROVISIONSFREI!

Wohnung , 5411 Oberalm


Oberalm ist eine malerische Gemeinde im Salzburger Land im südlichen Teil des Salzachtals, etwa 15 Kilometer von der Stadt Salzburg entfernt. Die Region ist von einer beeindruckenden Berglandschaft umgeben, insbesondere vom Tennen Gebirge, das den südlichen Horizont prägt. Die idyllische Lage zwischen Alpen und Flusstal macht Oberalm zu einem attraktiven Ziel für Naturfreunde, Wanderer und Radfahrer. Die Gemeinde hat etwa 2.800 Einwohner und besteht größtenteils aus ländlichen Siedlungen, was ihr einen ruhigen Charakter verleiht. Oberalm zeichnet sich durch traditionelle Bauweise mit charakteristischen Bauernhöfen und Häusern im alpinen Stil aus. Zahlreiche Wander- und Radwege sind sowohl für Anfänger als auch für erfahrene Sportler geeignet, besonders entlang der Salzach und in den umliegenden Alpen. Die Nähe zur Stadt Salzburg sorgt für eine gute Verkehrsanbindung mit Auto und öffentlichen Verkehrsmitteln. Oberalm ist ideal für Menschen, die eine naturnahe Umgebung suchen und gleichzeitig schnell in der Kultur- und Festspielstadt Salzburg sein möchten. Die Region ist außerdem für ihre Gastfreundschaft, ihr Brauchtum und zahlreiche Veranstaltungen bekannt. Zusammengefasst verbindet Oberalm Natur, Ruhe und die Nähe zu Salzburg und ist für Erholungssuchende und Aktivurlauber gleichermaßen attraktiv.

Beschreibung der Immobilie

NEUBAUPROJEKT: PRÖLLHOFSTRASSE | OBERALM - 4 Zimmer Penthouse mit großzügiger Terrasse & Balkon - PROVISIONSFREI!

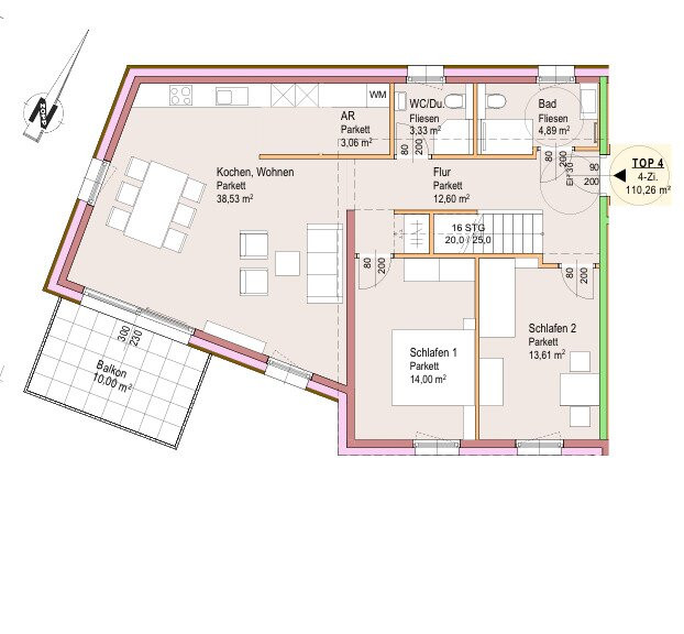
Luftige Penthouse mit Balkon und Terrasse auf 2 Ebenen: „Haus im Haus mit allen Annehmlichkeiten“



Man lebt nur einmal: 110 m² Wohnfläche auf zwei Ebenen aufgeteilt mit 2 Bädern – hier lebt es sich gut. Luxuriös auch die rund 20 m² große Galerie, von der es auf die 33 m² Dachterrasse hinaus geht. Oder man genießt Sonne und Weitblick auf dem großen Balkon vom Wohn/Essbereich aus, samt Blick auf das umliegende Bergpanorama. Herrlich. Der Lift von der Tiefgarage in den 2. Stock ist exklusiv. Die sonnige Ruhelage ist inklusive. Kein Zweifel: Hier oben ist man König!



Obwohl diese Maisonette-Wohnung das Gefühl vom „Haus im Haus“ vermittelt, kann man die 4-Zimmer-Wohnung schnell zusperren, verreisen, weg sein – ohne sich um das „Haus“ fürchten oder kümmern zu müssen. Ob Altersvorsorge, bequemes Wohnen oder Großeinkauf: Ein Lift vom Auto in der Tiefgarage in den 2. Stock ist hier jedenfalls ein weiteres Plus.



Elegant und großzügig zeigt sich dieses von Architektenhand geplante Refugium. Sorgfältig geplant ist auch die Nutzung der Wohnung, diese wurde flexibel für viele Lebenssituationen konzipiert. Ob Familie, ein Paar mit Pflegeperson, Übernachtung für Gäste, Wohnen und Arbeiten in der Wohnung oder einfach luxuriöses Single-Leben – diese und mehr Konstellationen wurden bereits in der Planung ein einem Wurf berücksichtigt.



Die Aufteilung ist wie folgt:



  • Ebene 1: Kochen/Wohnen/Essen, Balkon, 2 Bäder, 2 Schlafzimmer, Abstellfläche
  • Ebene 2: Galerie, Terrasse


Hinzu kommt ein Kellerabteil, welches der Wohnung zugeordnet ist. Platz für Fahrräder gibt es im Außenbereich und in der Tiefgarage und ein Kinderspielplatz zur allgemeinen Nutzung gehört ebenso zum Haus dazu.



Alles vor Ort



Das Bauprojekt „Pröllhofstrasse N6“ ist nur wenige Gehminuten vom Ortszentrum von Oberalm entfernt. Somit sind Einkaufsmöglichkeiten, kulturelle Aktivitäten und öffentliche Einrichtungen nur einen kurzen Fußweg entfernt.



Nah. Fern.



Ebenso rasch ist man bei der S-Bahn, um schnell in alle Richtungen zu gelangen oder man geht zur nächsten Bushaltestelle. Hier finden jedenfalls Naturliebhaber Ihren Ausgleich, ohne auf die Annehmlichkeiten des nahe gelegenen Ortszentrums verzichten zu müssen. Oberalm ist ein erstklassiger Standort, der auch über die Autobahn einfach zu erreichen ist.



Der Zukunft gewachsen



Photovoltaik und eine Luftwärmepumpe sorgen für einen minimalen CO2 -Fußabdruck.



Durchdacht geschnitten



Ob 2-, 3- oder 4-Zimmer Wohnung – kompakte Grundrisse bieten Wohnungen für jeden Bedarf. Zudem verfügen alle Wohnungen über eine Außenfläche. In der Tiefgarage ist nicht nur Platz für Autos, sondern auch für Fahrräder. Bei Bedarf kann auch das E-Auto in den TG-Plätzen geladen werden.



WOHNUNGEN



Wohnungen gesamt:       6



Wohnungsgrößen:  ca. 60 m² bis 112 m²



Lichte Raumhöhe:           ca. 2,50 m



AUSSTATTUNG



Boden:                             Parkett, Fliesen/Feinsteinzeug



Sonnenschutz:                Rollläden



Heizung/Kühlung:            Fußbodenheizung, Luftwärmepumpe



Lüftung:                            Abluftventilatoren in Bädern, WCs und Abstellflächen 



Manuelle Lüftung:            Fensterlüftung



MOBILITÄT



Pkw-Stellplätze:              12



E-Mobility:                        Jeder Stellplatz ist auf   Kundenwunsch mit einer E-Ladestation aufrüstbar 



Fahrradabstellplätze:       Großer Fahrradraum in der Tiefgarage



Öffentlicher Verkehr:        ca. 500 Meter zur S-Bahn, ca. 400 Meter zum Bus





Aufgrund wiederkehrender Geschäftsbeziehung weisen wir auf ein wirtschaftliches Naheverhältnis hin.


Wir weisen darauf hin, dass zwischen dem Vermittler und dem zu vermittelnden Dritten ein familiäres oder wirtschaftliches Naheverhältnis besteht.

Eckdaten Objektnr. 8206/140

Art: Wohnung
Land: Österreich
Zustand: Erstbezug
Alter: Neubau
Kaufpreis: 960.000,00
Provision: Provision bezahlt der Abgeber.
Wohnfläche: 110,26 m²
Zimmer: 4
Bäder: 1
WC: 1
Balkone: 1
Terrassen: 1
Keller: 8,06 m²
Heizwärmebedarf:  B  31,00 kWh/m²a
fGEE:  A+  0,68
Immobilie merken Exposé

Ausstattung

Personenaufzug, Bad mit Fenster, Tiefgarage


Immobilie anfragen


Ihre persönliche Beratung

MMag. Elisabeth Promegger

Promegger Immobilien

H +43 660 27 26 757