+++ Neuwertiges Wohnhaus am Brennberg ein Ortsteil von SOPRON +++

Haus - Einfamilienhaus, 9400 Sopron


Beschreibung der Immobilie

+++ Neuwertiges Wohnhaus am Brennberg ein Ortsteil von SOPRON +++

+++ Neuwertiges Wohnhaus am Brennberg ein Ortsteil von SOPRON +++





Nur wenige Minuten von Deutschkreutz entfernt, befindet sich dieses wunderschöne Objekt am Brennberg ein Ortsteil von 9400 Sopron!



+Freizeit,und Wohlgefühl garantiert+





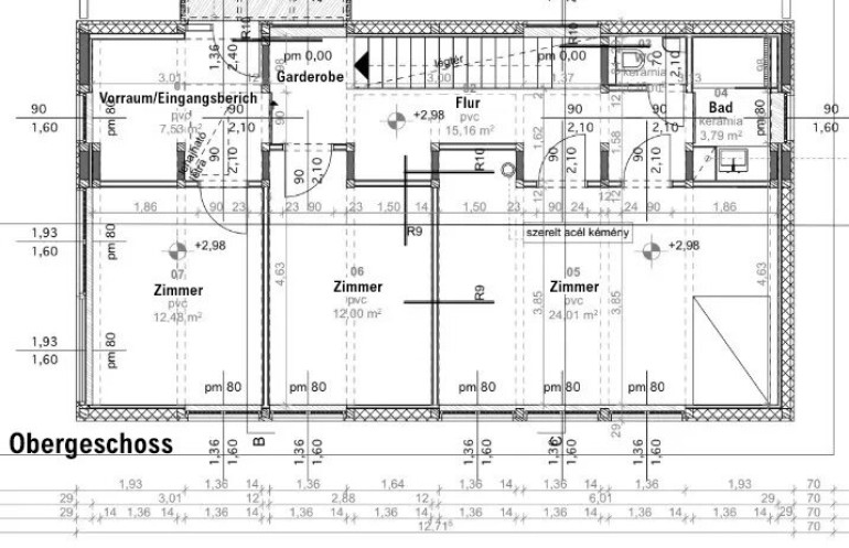
Details zum Objekt:



  • Obergeschoss ca.76m²
  • Vorraum/Eingangsbereich
  • Garderobe
  • Flur
  • Küche mit Essbereich
  • Zimmer I
  • Zimmer II
  • Zimmer III
  • Bad
  • WC mit Handwaschbecken




  • Erdgeschoss ca.77m²
  • Gang
  • Abstellraum
  • Bad I mit Badewnne und  WC
  • Zimer I
  • Küche
  • Wohn/Essbereich
  • Terrasse




  • Gartenhaus ca.20m²
  • zusätzlicher Stauraum






      Baumaterial:



      Fertigteilhaus mit Ubrankovics-Technologie (https://de.lignogroup.eu/ceg/ubrankovics-kft/9 Kunststofffenster mit Fliegengitter, Massivholztüren und Türstöcke,



      Zimmer mit Parkett, Bäder und WC mit Fliesen sonst Steinboden.





      Technik:



      Heizung: Luftwärmepumpe





      Lage des Objekts:



      Brennbergbánya (deutsch Brennberg) ist ein Ortsteil der ungarischen Stadt Sopron im Kreis Sopron im Komitat Győr-Moson-Sopron.



      Der Ort liegt im äußersten Nordwesten von Ungarn. Die Grenze zu Österreich verläuft südwestlich in 1 km Entfernung.





      Ich freue mich auf Ihre Nachricht oder Ihren Anruf, um Ihnen dieses einmalige Gewerbeobjekt vor Ort zeigen zu dürfen.





      Herzliche Grüße,



      Paul Kneisz



       +43 (0)660 3 817 517



      www.grabner-immobilien.at



      kneisz@grabner-immobilien.at

Infrastruktur / Entfernungen

Gesundheit
Arzt <500m
Apotheke <5.000m

Kinder & Schulen
Schule <500m
Kindergarten <500m

Nahversorgung
Supermarkt <5.000m
Bäckerei <7.500m

Sonstige
Bank <4.500m
Post <500m
Geldautomat <5.000m
Polizei <1.000m

Verkehr
Bus <500m
Bahnhof <5.500m
Autobahnanschluss <8.500m

Angaben Entfernung Luftlinie / Quelle: OpenStreetMap

Eckdaten Objektnr. 8269

Art: Haus - Einfamilienhaus
Land: Ungarn
Baujahr: 2020
Zustand: Neuwertig
Alter: Neubau
Kaufpreis: 355.000,00
Provision: 3% des Kaufpreises zzgl. 20% USt.
Wohnfläche: 153,00 m²
Grundstücksfl.: 1.310,00 m²
Zimmer: 4
Bäder: 2
WC: 2
Terrassen: 1
Stellplätze: 2
Garten: 800,00 m²
Immobilie merken Exposé

Immobilie anfragen


Ihre persönliche Beratung

Grabner Immobilien

Paul Kneisz

Grabner Immobilien GmbH

T +43 660 38 17 517