Genial - Sanieren Sie Ihr neues Stadtjuwel mit Balkon ganz nach Ihren Wünschen!

Wohnung , 5020 Salzburg , Steingasse


"Innerer Stein"- ein liebevolles und angesagtes Viertel zwischen der Staats- und dem Mozartsteg, sowie zwischen der Salzach und dem Kapuzinerberg. Eine absolute Prestigelage im Herzen der Salzburger Altstadt, wo Kultur, Genuss und urbanes Lebensgefühl vereint und vollendet werden. Sie genießen hier alle Vorzügen der Innenstadt und der Natur am altehrwürdigen Salzburger Kapuzinerberg. Ruhig gelegen und doch im Zentrum von Salzburg - so mach Wohnen Spaß! Kurzum: Hier werden Sie sich rundum wohl fühlen.

Beschreibung der Immobilie

Genial - Sanieren Sie Ihr neues Stadtjuwel mit Balkon ganz nach Ihren Wünschen!

Top Zentrumslage + Perfekte Infrastruktur + Ruhelage + Balkon + 3.OG + Hell und Sonnig! Jetzt zugreifen!



Diese Wohnung lässt Ihren Wünschen und Bedürfnissen jeglichen Spielraum. 



Profitieren Sie von einer TOP-Infrastruktur, einer idealen öffentlichen Anbindung und dem Genuss dieser absoluten Prestigelage!



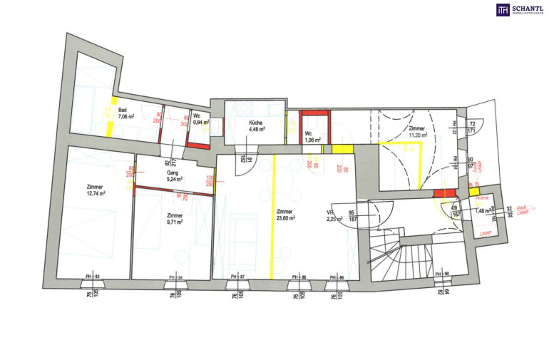
Die zum Verkauf stehende Wohnung, ist ein einzigartiges Highlight für alle, die sich ihren Wohntraum ganz nach ihren Wünschen gestalten möchten. Die Bauanzeige sieht einen Grundriss mit Wohn-Esszimmer, drei Schlafzimmer, Küche, Bad, zwei separate WC`s und einen Technikraum für die geplante Luftwärmepumpe vor. Über das ostseitig ausgerichtete Zimmer, gelangen Sie auf den ruhigen, in den Felsen mündenden Balkon. Der Einbau einer Luftwärmepumpe, als nachhaltiges und energieeffizientes Heizsystem, ist bei diesem Objekt technisch möglich und vollendet den stilvollen Altbau- mit moderner Technik.



Die Pläne wurden für Sie bereits behördlich eingereicht. Alle Genehmigungen bezüglich Umplanung, Denkmalschutz, Heizung, Fenster, etc. sind von Verkäufer für Sie bereits eingeholt. 



Das Motto für dieses Stadtjuwels lautet: 3, 2, 1 und LOS! 



Wohnfläche: ca. 79,76 m² + Balkon: ca. 3 m²



Kaufpreis: € 590.000.-



Provision: 3% vom KP zzgl. 20% Ust. 





Bei konkretem Interesse senden wir Ihnen sehr gerne weiterführende Dokumente zu, wie:



o Grundbuchauszug



o Wohnungseigentumsvertrag



o Nutzwertgutachten



o Eigentümerversammlungsprotokoll (Falls vorhanden) etc...





Unser Service für Sie: Wenn Sie sich für diese Immobilie entschieden haben, begleiten wir Sie gerne vom Kaufanbot weg inkl. Klärung von Sonderwünschen und der Vertragsunterzeichnung über die Wohnungsübergabe bis hin zu diversen Ummeldungen wie Strom und Gas. Entsprechende Formulare oder auch Meldezettel stellen wir Ihnen sehr gerne zur Verfügung.



Gerne unterstützen wir Sie auch bei der Finanzierung Ihres Traumobjekts und finden mit unseren langjährigen Partnern die besten Konditionen für Sie.



Worauf warten Sie noch, diese perfekte 3-Zimmer Wohnung wird nicht lange zu haben sein!



www.schantl-ith.at


Wir weisen darauf hin, dass zwischen dem Vermittler und dem zu vermittelnden Dritten ein familiäres oder wirtschaftliches Naheverhältnis besteht.


Der Vermittler ist als Doppelmakler tätig.

Infrastruktur / Entfernungen

Gesundheit
Arzt <250m
Apotheke <250m
Klinik <1.000m
Krankenhaus <500m

Kinder & Schulen
Schule <500m
Kindergarten <500m
Universität <500m
Höhere Schule <500m

Nahversorgung
Supermarkt <250m
Bäckerei <250m
Einkaufszentrum <500m

Sonstige
Bank <250m
Geldautomat <250m
Post <500m
Polizei <500m

Verkehr
Bus <250m
Bahnhof <750m
Autobahnanschluss <3.500m
Flughafen <3.500m

Angaben Entfernung Luftlinie / Quelle: OpenStreetMap

Eckdaten Objektnr. 297386

Art: Wohnung
Land: Österreich
Baujahr: 1800
Zustand: Sanierungsbeduerftig
Alter: Altbau
Kaufpreis: 590.000,00
Kaufpreis / m²: 7.130,77 €
Provision: 3% des Kaufpreises zzgl. 20% USt.
Wohnfläche: 79,76 m²
Nutzfläche: 82,74 m²
Bäder: 1
WC: 2
Balkone: 1
Heizwärmebedarf:  E  195,00 kWh/m²a
fGEE:  F  3,60
Immobilie merken Exposé

Ausstattung

Dielenboden, Fußbodenheizung, Badewanne, Dusche, Kabel/Satelliten-TV


Immobilie anfragen


Ihre persönliche Beratung

Schantl ITH Immobilientreuhand GmbH

Mark Prettenthaler

Schantl ITH Immobilientreuhand GmbH

T +43 6643070009

H +43 650 56 75 611