Mondäne Wienerwaldvilla - Eleganz, Privatsphäre und repräsentativer Luxus vereint

Haus - Villa, 3003 Gablitz


Beschreibung der Immobilie

Mondäne Wienerwaldvilla - Eleganz, Privatsphäre und repräsentativer Luxus vereint

In ruhiger Lage unweit des Zentrums von Gablitz erwartet Sie diese außergewöhnliche Villa mit historischem Charme und eindrucksvoller Architektur. Einst Rückzugsort des Wiener Bürgertums zur Sommerfrische, vereint die Liegenschaft bis heute Eleganz, Großzügigkeit und eine besondere Aura.



Das Anwesen besticht durch seine repräsentative Erscheinung mit kaisergelber Fassade, Rundbogenfenstern, Stuckverzierungen, Walmdach und liebevoll erhaltenen Details. Ein großzügiger Innenhof sowie der parkähnliche Garten schaffen ideale Voraussetzungen für stilvolle Empfänge und private Rückzugsorte.



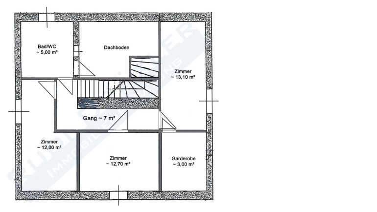
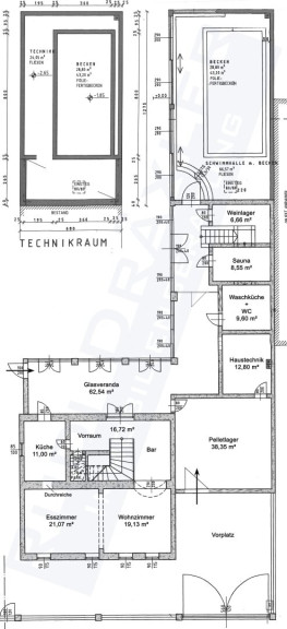
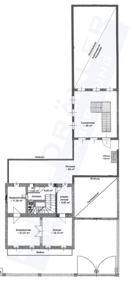
Im Inneren erwarten Sie ein beeindruckendes Foyer mit Glasveranda, ein Wohnbereich mit Bar, Esszimmer, Küche sowie zahlreiche geschmackvolle Räume mit historischen Elementen. Der private Bereich im 1. Stock bietet Schlafzimmer mit Salon, Bad und Arbeitszimmer, ergänzt durch weitere Zimmer im Dachgeschoß.



Ein besonderes Highlight ist die Schwimmhalle mit Gegenstromanlage und direktem Gartenbezug. Ergänzt wird das Angebot durch Sauna, Vinothek, großzügige Terrassenflächen und ein charmantes Turmzimmer.



Der uneinsehbare Garten mit großer Terrasse, Spielbereich und gemütlicher Gartenhütte bietet viel Raum für Erholung und gesellige Stunden.



Moderne Technik wie Pelletheizung (2022) und Photovoltaikanlage mit Speicher sorgen für nachhaltige Energieversorgung.



Perfekte Lage: ruhig im Grünen und dennoch fußläufig ins Ortszentrum, mit guter Anbindung Richtung Wien.



Ein einzigartiges Zuhause für Menschen mit Sinn für Stil, Geschichte und Lebensqualität.


Hinweis gemäß Energieausweisvorlagegesetz: Ein Energieausweis wurde vom Eigentümer bzw. Verkäufer, nach unserer Aufklärung über die generell geltende Vorlagepflicht, sowie Aufforderung zu seiner Erstellung noch nicht vorgelegt. Daher gilt zumindest eine dem Alter und der Art des Gebäudes entsprechende Gesamtenergieeffizienz als vereinbart. Wir übernehmen keinerlei Gewähr oder Haftung für die tatsächliche Energieeffizienz der angebotenen Immobilie.


Der Vermittler ist als Doppelmakler tätig.

Infrastruktur / Entfernungen

Gesundheit
Arzt <500m
Apotheke <500m
Krankenhaus <9.500m
Klinik <8.500m

Kinder & Schulen
Schule <500m
Kindergarten <500m
Universität <7.500m

Nahversorgung
Supermarkt <1.000m
Bäckerei <2.000m
Einkaufszentrum <6.000m

Sonstige
Bank <2.500m
Geldautomat <2.500m
Post <1.000m
Polizei <1.000m

Verkehr
Bus <500m
U-Bahn <9.000m
Straßenbahn <8.500m
Bahnhof <3.500m
Autobahnanschluss <6.500m

Angaben Entfernung Luftlinie / Quelle: OpenStreetMap

Eckdaten Objektnr. 95381

Art: Haus - Villa
Land: Österreich
Baujahr: 1929
Zustand: Gepflegt
Möbliert: Teil
Alter: Altbau
Kaufpreis: 1.960.000,00
Provision: 3% des Kaufpreises zzgl. 20% USt.
Wohnfläche: 247,00 m²
Nutzfläche: 367,00 m²
Grundstücksfl.: 989,00 m²
Zimmer: 7
Bäder: 2
WC: 4
Balkone: 1
Terrassen: 2
Stellplätze: 1
Keller: 51,15 m²
Immobilie merken Exposé

Ausstattung

Fliesen, Steinboden, Teppichboden, Zentralheizung, Einbauküche, Ostbalkon, Westbalkon, Dusche, Bad mit Fenster, Badewanne, Kabel/Satelliten-TV, Parkplatz, Sauna, Swimmingpool, Wasch/Trockenraum


Immobilie anfragen


Ihre persönliche Beratung

Rudi Dräxler Immobilientreuhand GesmbH

Verde Lenz

Rudi Dräxler Immobilientreuhand GesmbH

T +43 1 577 44 34

H +43 664 840 7980