LICHTDURCHFLUTETE ATELIERWOHNUNG MIT LOFTCHARAKTER

Wohnung - Loft-Studio-Atelier, 1160 Wien,Ottakring


Beschreibung der Immobilie

LICHTDURCHFLUTETE ATELIERWOHNUNG MIT LOFTCHARAKTER

Zum Verkauf gelangt eine großzügig geschnittene Dachgeschosswohnung in einem kleinen Haus vis-a-vis der Mannerfabrik. Das Dachgeschoss wurde 2006 ausgebaut und der Wohnbereich ist zum schönen Innenhof hin ausgerichtet. Der Eingang zur Wohnung befindet sich im ersten Stock (ohne Lift). In der nahegelegenen Wattgasse befinden sich Geschäfte des täglichen Bedarfs sowie die Buslinie 10a und die Straßenbahnlinie 2 Richtung Stadtzentrum. Die U3 Station Ottakring ist 15 Minuten zu Fuß entfernt. In unmittelbarer Umgebung befindet sich zudem ein schöner Park mit Spielplatz. 



RAUMAUFTEILUNG:



Im ersten Stock befindet sich der Eingang zur Wohnung mit einem großen Vorraum mit viel Staumöglichkeit. Über eine Treppe gelangt man auf die Wohnebene, die sich wie folgt gliedert:



Vorraum übergehend in einen schönen offenen Wohnraum mit Schwedenofen und mit Ausgang auf die westseitige Terrasse, offene vollausgestattete Küche, 3 Schlafzimmer (eines mit Schrankraum), Bad mit Wanne und Dusche, Doppelwaschbecken und WC, Gäste WC mit Handwaschbecken



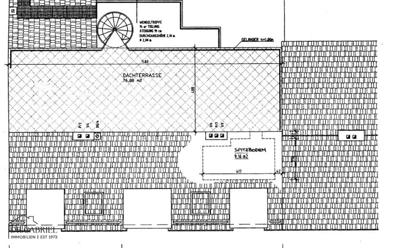
über eine außenliegende Wendeltreppe gelangt man auf die 76,88 m² große Dachterrasse mit Loungebereich und großem Essbereich. Im hinteren Bereich der Terrasse befindet sich ein praktischer kleiner Stauraum im Spitzboden (9,16m²) sowie eine kleine Gartenhütte. 



AUSSTATTUNG:



  • Parkettboden
  • vollausgestattete Küche (extrabreiter Neff Ofen, Side-by-side Kühlschrank von Samsung mit Eiswürfelmaschine, Siemens Geschirrspüler)
  • Schwedenofen im Wohnbereich
  • Waschmaschinenanschluss im Bad
  • Brennwertgerät (2019 erneuert)
  • Fahrradabstellraum im Haus

Der Vermittler ist als Doppelmakler tätig.

Infrastruktur / Entfernungen

Gesundheit
Arzt <500m
Apotheke <500m
Klinik <1.000m
Krankenhaus <1.500m

Kinder & Schulen
Schule <500m
Kindergarten <500m
Universität <1.500m
Höhere Schule <1.000m

Nahversorgung
Supermarkt <500m
Bäckerei <500m
Einkaufszentrum <1.000m

Sonstige
Geldautomat <500m
Bank <500m
Post <500m
Polizei <500m

Verkehr
Bus <500m
U-Bahn <1.000m
Straßenbahn <500m
Bahnhof <1.000m
Autobahnanschluss <4.500m

Angaben Entfernung Luftlinie / Quelle: OpenStreetMap

Eckdaten Objektnr. 29605

Art: Wohnung - Loft-Studio-Atelier
Land: Österreich
Baujahr: 1900
Zustand: Gepflegt
Alter: Altbau
Kaufpreis: 730.000,00
Provision: 3% des Kaufpreises zzgl. 20% USt.
Betriebskosten: 180,88 €
MwSt Gesamt: 18,09 €
Wohnfläche: 142,30 m²
Zimmer: 4
Bäder: 1
WC: 2
Terrassen: 2
Heizwärmebedarf:  C  60,20 kWh/m²a
fGEE:  C  1,24
Immobilie merken Exposé

Ausstattung

Fliesen, Parkett, Gas, Etagenheizung, Kamin, Einbauküche, Westbalkon, Bad mit Fenster, Badewanne, Dusche, Kabel/Satelliten-TV


Immobilie anfragen


Ihre persönliche Beratung

Dr. Alexandra Gabriel Realitätenvermittlungsgesellschaft m.b.H.

Dr. Marie-Therese Gabriel

Dr. Alexandra Gabriel Realitätenvermittlungsgesellschaft m.b.H.

T +43 1 533 10 96