Traumhafte Gartenwohnung in Wels
Wohnung
,
4600
Wels
Die Wohnung befindet sich in ruhiger Lage in der Stadt Wels, im Bundesland Oberösterreich. Sie liegt im Erdgeschoss eines Mehrfamilienhauses und verfügt über einen eigenen Garten, der zum Entspannen und Verweilen einlädt. Die Umgebung ist geprägt von Wohnhäusern und Grünflächen, was für ein angenehmes und familienfreundliches Wohnumfeld sorgt. In unmittelbarer Nähe befinden sich wichtige Einrichtungen des täglichen Bedarfs.
Beschreibung der Immobilie
Traumhafte Gartenwohnung in Wels
Herzlich willkommen in Ihrer neuen Traumwohnung in der malerischen Stadt Wels in Oberösterreich! Diese wunderschöne 3-Zimmer Gartenwohnung in der beliebten EG bietet Ihnen nicht nur ein modernes Wohngefühl, sondern auch eine idyllische Lage mit perfekter Anbindung an die umliegenden Annehmlichkeiten.
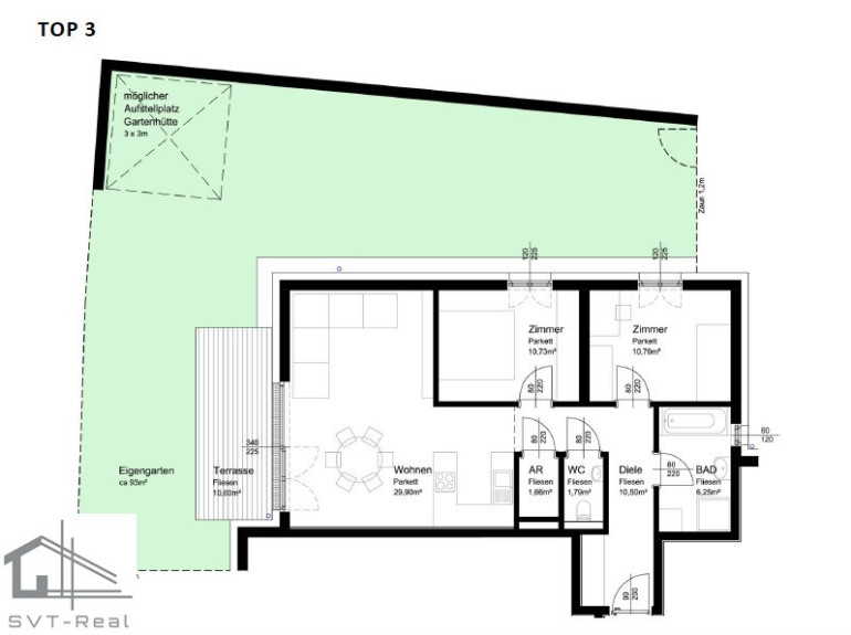
Mit einer großzügigen Fläche von 71,62m² und einem geräumigen Garten, der zum Entspannen und Genießen einlädt, bietet diese Wohnung ausreichend Platz für Singles, Paare oder kleine Familien. Der helle und offene Wohnbereich, der mit hochwertigen Fliesen und Parkettböden ausgestattet ist, verleiht der Wohnung ein einladendes und modernes Ambiente.
Der Erstbezug dieser Immobilie garantiert Ihnen ein makelloses und gepflegtes Zuhause, in dem Sie sich sofort wohlfühlen werden. Die Fußbodenheizung sorgt zudem für eine angenehme Wärme im Winter, während Sie im Sommer auf der großzügigen Terrasse entspannen können.
Das Badezimmer ist ein weiteres Highlight dieser Wohnung. Mit einem Fenster, das für ausreichend Tageslicht sorgt, einer Badewanne und einer Dusche, ist es der perfekte Ort, um sich nach einem langen Tag zu entspannen und zu erholen. Sie werden sich wie im eigenen Spa fühlen!
Auch die Lage dieser Immobilie lässt keine Wünsche offen. Mit einem Carport für Ihr Fahrzeug und einem zusätzlichen Abstellraum für Fahrräder und andere Utensilien, bietet diese Wohnung auch praktische Vorteile. Die Verkehrsanbindung ist optimal, mit einer Bushaltestelle in unmittelbarer Nähe.
In der Umgebung finden Sie alles, was Sie für den täglichen Bedarf benötigen. Ob Arzt, Apotheke, Klinik, Schule, Kindergarten oder Supermarkt - alles ist bequem zu Fuß oder mit dem Fahrrad erreichbar. Auch für Naturfreunde gibt es in der Nähe zahlreiche Parks und Grünflächen, die zum Spazieren und Entspannen einladen.
Überzeugen Sie sich selbst von dieser einzigartigen Immobilie und vereinbaren Sie noch heute einen Besichtigungstermin. Wir sind uns sicher, dass Sie von dieser Wohnung begeistert sein werden und sich sofort in Ihr neues Zuhause verlieben werden. Wir freuen uns auf Ihre Kontaktaufnahme!
Der Immobilienmakler erklärt, dass er – entgegen dem in der Immobilienwirtschaft üblichen Geschäftsgebrauch des Doppelmaklers – einseitig nur für den Vermieter tätig ist.
Infrastruktur / Entfernungen
Gesundheit
Arzt <500m
Apotheke <500m
Klinik <500m
Krankenhaus <3.000m
Kinder & Schulen
Schule <500m
Kindergarten <500m
Universität <2.000m
Nahversorgung
Supermarkt <500m
Bäckerei <1.500m
Einkaufszentrum <2.500m
Sonstige
Bank <500m
Geldautomat <1.000m
Post <1.500m
Polizei <1.000m
Verkehr
Bus <500m
Autobahnanschluss <2.000m
Bahnhof <1.000m
Flughafen <4.500m
Angaben Entfernung Luftlinie / Quelle: OpenStreetMap
Eckdaten Objektnr. 8179/141
| Art: | Wohnung |
| Land: | Österreich |
| Zustand: | Erstbezug |
| Alter: | Neubau |
| Gesamtmiete: | 1.285,00 € |
| Kaltmiete (netto): | 950,00 € |
| Kaltmiete: | 1.190,00 € |
| Provision: | Gemäß Erstauftraggeberprinzip bezahlt der Abgeber die Provision. |
| Betriebskosten: | 240,00 € |
| MwSt Gesamt: | 95,00 € |
| Wohnfläche: | 71,62 m² |
| Zimmer: | 3 |
| Bäder: | 1 |
| WC: | 1 |
| Terrassen: | 1 |
| Stellplätze: | 1 |
| Garten: | 93,00 m² |
| Heizwärmebedarf: | B 29,60 kWh/m²a |
| fGEE: | A+ 0,64 |
Ausstattung
Fliesen, Parkett, Fußbodenheizung, Bad mit Fenster, Badewanne, Dusche, Carport
Ihre persönliche Beratung
Michael Trajceski
SVT-Real
T +43 650 852 43 17