Moderne Wohnkultur in Wiener Neustadt - Charmante 1-Zimmer Wohnung mit Fußbodenheizung und Einbauküche. Bahnhofsnähe!

Wohnung , 2700 Wiener Neustadt , Hartiggasse 16


- ruhige Wohngegend, nahe an Parks und Grünflächen - gute Anbindung an öffentliche Verkehrsmittel, Autobahn und Schnellstraße - Einkaufs- und Freizeitmöglichkeiten in unmittelbarer Nähe - familienfreundliche Umgebung mit vielen Bildungseinrichtungen und Freizeitaktivitäten - vielfältige kulturelle Angebote und Veranstaltungen in der Umgebung -sicherer und gepflegter Wohnkomplex mit einem optionalen Parkplatz

Beschreibung der Immobilie

Moderne Wohnkultur in Wiener Neustadt - Charmante 1-Zimmer Wohnung mit Fußbodenheizung und Einbauküche. Bahnhofsnähe!

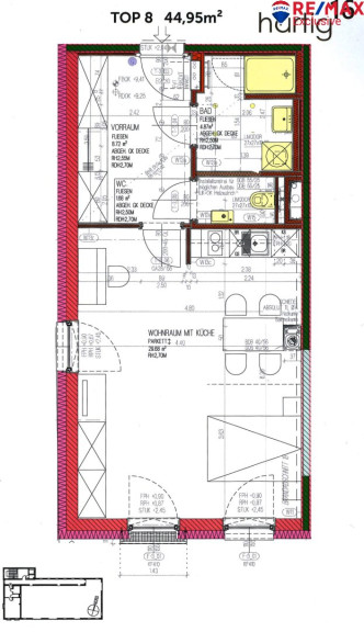
Willkommen in Ihrem neuen Zuhause in der charmanten Stadt Wiener Neustadt. Diese gepflegte Wohnung im 3. Liftstock bietet auf ca. 44,95 m² ein komfortables und modernes Wohnerlebnis, perfekt für Singles oder Paare, die Wert auf Qualität und eine zentrale Lage legen.



Die Wohnung besticht durch einen cleveren Grundriss mit einem großzügigen Zimmer, das dank der offenen Wohnküche viel Platz zum Leben und Entspannen bietet. Die hochwertige Einbauküche ist modern ausgestattet und lädt zum Kochen und Verweilen ein.



Das Badezimmer ist mit einer modernen Dusche ausgestattet, die Ihnen den Start in den Tag angenehm gestaltet. Der Personenaufzug erleichtert den Alltag und sorgt für einen barrierefreien Zugang zu Ihrer Wohnung.



Die Lage könnte nicht besser sein: Öffentliche Verkehrsmittel wie Busse und der Bahnhof sind in unmittelbarer Nähe und bieten eine hervorragende Anbindung an Wiener Neustadt und die umliegenden Regionen.



Hochwertige Ausstattung:



- Echtholzparkett

- Kunststoffalufenster

- Fußbodenheizung

- elektrische Außenjalousien und Fensterlüftung



Diese Wohnung wurde bereits vom Tischler ausgestattet:



- Vorzimmerschrank

- Badezimmermöbel

- Küche mit Bosch Geräten, Spüle, Armatur mit Ausziehbrause

- Halogeneinbauspots in Vorraum, Bad und WC



Die Wohnung verfügt ebenfalls über einen Außenabstellraum.


Miete: € 467,50 inkl. USt.
Betriebskosten: € 160,70 inkl. USt.
Heizkosten: € 43,69 inkl. USt.
Warmwasser: € 25,21 inkl. USt.



Gesamtmiete: € 697,10


Optional kann ein Parkplatz um mtl. € 60,-- inkl. Ust. dazu gemietet werden.



Nutzen Sie die Gelegenheit und sichern Sie sich dieses attraktive Mietobjekt in Wiener Neustadt – Ihr neues Zuhause wartet auf Sie!





Hinweis für Mietinteressenten:



Wir sind vom Vermieter dieser Immobilie mit der Vermittlung eines Mietvertrages beauftragt.



Deshalb ist es uns gemäß § 17 a Maklergesetz untersagt, mit Ihnen als Mietinteressent eine Provisionsvereinbarung zu schließen.



Das bedeutet für Sie:



Wir sind ausschließlich im Auftrag des Verfügungsberechtigten und nicht als Doppelmakler tätig.



Sie gehen bezüglich dieser Immobilie und Ihrer Mietabsicht mit uns KEIN Vertragsverhältnis ein und werden von uns diesbezüglich KEINE Rechnung erhalten.



Aufgrund der Nachweispflicht gegenüber dem Eigentümer ersuchen wir um Verständnis, dass nur Anfragen mit der Angabe der vollständigen Anschrift und Telefonnummer bearbeitet werden können.



Wir weisen auf Ihre 14-tägige Rücktrittsfrist (gemäß § 11 FAGG ) hin. Um Ihre Rechte zu wahren, können nur Anfragen mit vollständigen Kontaktdaten (Name, Adresse, Telefon, Email) beantwortet werden.



Vor Ablauf der 14-tägigen Rücktrittsfrist werden wir gerne für Sie tätig, wenn Sie gesetzeskonform (FAGG) uns ausdrücklich (am einfachsten per E-Mail) dazu auffordern.



Wenn der Kaufvertrag/der Mietvertrag nicht zustande kommt, bleibt unsere Tätigkeit für Sie vollkommen kostenlos.




Der Immobilienmakler erklärt, dass er – entgegen dem in der Immobilienwirtschaft üblichen Geschäftsgebrauch des Doppelmaklers – einseitig nur für den Vermieter tätig ist.

Infrastruktur / Entfernungen

Gesundheit
Arzt <50m
Apotheke <425m
Klinik <1.225m
Krankenhaus <850m

Kinder & Schulen
Schule <200m
Kindergarten <350m
Höhere Schule <850m
Universität <2.700m

Nahversorgung
Supermarkt <250m
Bäckerei <350m
Einkaufszentrum <1.325m

Sonstige
Bank <200m
Geldautomat <200m
Post <500m
Polizei <750m

Verkehr
Bus <175m
Autobahnanschluss <2.775m
Bahnhof <525m
Flughafen <2.075m

Angaben Entfernung Luftlinie / Quelle: OpenStreetMap

Eckdaten Objektnr. 3161

Art: Wohnung
Land: Österreich
Baujahr: 2015
Zustand: Neuwertig
Möbliert: Voll
Alter: Neubau
Gesamtmiete: 697,10
Kaltmiete (netto): 425,00 €
Kaltmiete: 571,09 €
Provision: Gemäß Erstauftraggeberprinzip bezahlt der Abgeber die Provision.
Betriebskosten: 146,09 €
Heizkosten: 59,33 €
MwSt Gesamt: 66,68 €
Wohnfläche: 44,95 m²
Zimmer: 1
Bäder: 1
WC: 1
Keller: 3,70 m²
Heizwärmebedarf:  A  24,70 kWh/m²a
Immobilie merken Exposé

Ausstattung

Parkett, Fliesen, Gas, Fußbodenheizung, Einbauküche, Wohnküche / offene Küche, Personenaufzug, Dusche


Immobilie anfragen


Ihre persönliche Beratung

RE/MAX Exclusive Brugger KG

Claudia Lanz

RE/MAX Exclusive Brugger KG

T +43 2622 32081

H +43 2622 32081