UNIQUE RESIDENCE - Luxusvilla mit Pool und traumhaften Fernblick

Haus , 1170 Wien


Pötzleinsdorf/ Neustift Am Walde

Beschreibung der Immobilie

UNIQUE RESIDENCE - Luxusvilla mit Pool und traumhaften Fernblick

Zum Verkauf gelangt eine Luxusvilla mit einem Pool und traumhaften Fernblick in der Nähe von Neustift am Walde, Pötzleinsdorf und der American International School. Die viergeschossige Villa wird schlüsselfertig übergeben. Alle Ebenen sind mit einem Aufzug verbunden. Die Raumaufteilung und Ausstattung könnte noch mit Absprache individuell verändert werden.



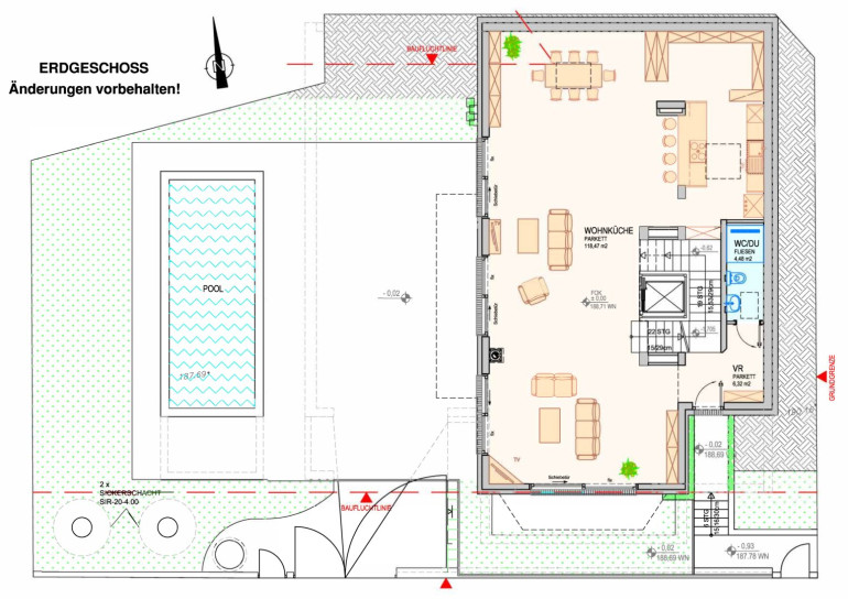
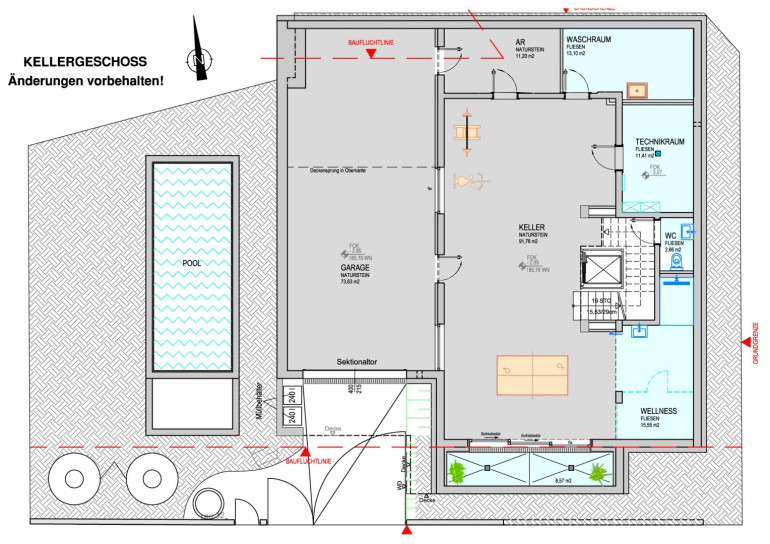
Raumaufteilung


Kellergeschoss: Garage, Keller (Fitness/ Aufenthaltsraum), Wellnessraum, WC, Technikraum, Waschraum und Lichtschacht (Aussenbereich 8,57 m²)



Erdgeschoss: Vorraum, Wohnküche mit Zugang zum Garten (375,25 m²) und Pool



1. Dachgeschoss: Vorraum, Master Bedroom mit en-suite Bad (Dusche/ Wanne/ WC), 2 Schlafzimmer, Bad (Dusche/ WC)



2. Dachgeschoss: Schlafzimmer mit en-suite Bad (Dusche/ WC), Terrasse (9,79 m²) und Schlafzimmer mit en-suite Bad (Wanne/ WC)



Dachterrasse (31,77 m²)


Ausstattung



Erdwärmepumpe mit Tiefensonden, Fußbodenheizung, Deckenkühlung, Anschlüsse für Klimaanlage Innen- und Außengeräte im 2. DG, Vollwärmeschutzfassade mit 16 cm Baumit OPEN AIR, Sageder Holz/ Alu- Fenster/ Türen (3-fach Verglasung), elektrische Außenrollladen mit Unterputz-Rollkasten, Velux Dachflächenfenster, Sanitärausstattung Villeroy & Boch, Grohe, Innen liegende Zwischenwände aus 10 und 12 cm Ziegel mit beidseitigem Verputz sorgen für angenehmes Raumklima (keine Gipskartonständerwand), Alarmanlage, Bus-System, Weitzer Parkett und Aufzug.



Lage und Infrastruktur



Die Villa befindet sich in einer ruhigen Lage umgeben von Einfamilienhäusern. In unmittelbarer Nähe befindet sich Neustift am Walde mit Schulen, Ärzte, Geschäfte des täglichen Bedarfs, zahlreiche Heurigen und das Naherholungsgebiet Wienerwald.



Für Besichtigungen und nähere Informationen stehen wir Ihnen gerne zur Verfügung!



Hr. Baris Basaran

tel: +43 699 1522 4635


Wir weisen darauf hin, dass zwischen dem Vermittler und dem zu vermittelnden Dritten ein familiäres oder wirtschaftliches Naheverhältnis besteht.


Der Vermittler ist als Doppelmakler tätig.

Infrastruktur / Entfernungen

Gesundheit
Arzt <2.500m
Apotheke <2.500m
Klinik <4.000m
Krankenhaus <3.500m

Kinder & Schulen
Schule <1.000m
Kindergarten <2.000m
Universität <4.000m
Höhere Schule <4.500m

Nahversorgung
Supermarkt <2.500m
Bäckerei <2.500m
Einkaufszentrum <4.500m

Sonstige
Bank <3.500m
Geldautomat <3.500m
Post <2.500m
Polizei <4.000m

Verkehr
Bus <500m
U-Bahn <4.500m
Straßenbahn <2.500m
Bahnhof <4.500m
Autobahnanschluss <6.500m

Angaben Entfernung Luftlinie / Quelle: OpenStreetMap

Eckdaten Objektnr. 713

Art: Haus
Land: Österreich
Baujahr: 2021
Zustand: Erstbezug
Alter: Neubau
Kaufpreis: 3.490.000,00
Provision: 3% des Kaufpreises zzgl. 20% USt.
Wohnfläche: 440,35 m²
Nutzfläche: 440,35 m²
Zimmer: 6
Bäder: 6
WC: 6
Terrassen: 3
Garten: 375,25 m²
Heizwärmebedarf:  B  31,40 kWh/m²a
fGEE:  A+  0,62
Immobilie merken Exposé

Ausstattung

Parkett, Erdwärme, Fußbodenheizung, Personenaufzug, Bad mit Fenster, Badewanne, Dusche, Garage, Alarmanlage


Immobilie anfragen


Ihre persönliche Beratung

BARLEY'S Real Estate & Relocation

Baris Basaran

BARLEY'S Real Estate & Relocation

T +43 1 382 00 24

H +43 699 15 22 46 35

F +43 1 382 00 24-11