Penthouse mit Pool | Blick auf Stephansdom

Wohnung - Dachgeschoß, 1010 Wien,Innere Stadt


Kärntner Straße, Schubertring

Beschreibung der Immobilie

Penthouse mit Pool | Blick auf Stephansdom

Exklusives Penthouse mit Pool im Herzen Wiens



In Bestlage der Wiener Innenstadt, zwischen Kärntner Straße und Schubertring bzw. Stadtpark, befindet sich die Fichtegasse. Stephansdom und Staatsoper sind in wenigen Gehminuten erreichbar. Das aufwendig revitalisierte Palais Herzfeld beherbergt im 2. Dachgeschoss dieses außergewöhnliche Penthouse mit Raumhöhen von ca. 2,7 bis 3 Metern. Ein privater Lift führt direkt von der Tiefgarage in die Wohnung.



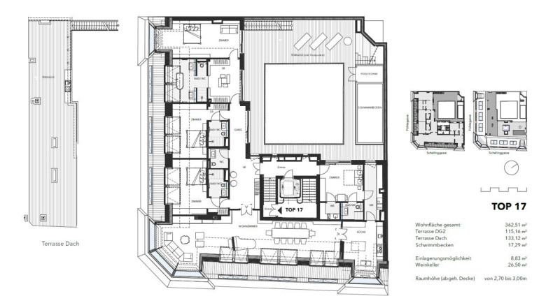
Das Herzstück bildet ein großzügiges, lichtdurchflutetes Wohnzimmer mit weitläufigen Fensterflächen. Vier Schlafzimmer, jeweils mit eigenem Bad en suite, bieten höchsten Wohnkomfort und Privatsphäre.



Ein besonderes Highlight ist der ca. 17 m² große Pool mit Gegenstromanlage auf einer rund 115 m² großen Terrasse mit Blick auf den Stephansdom. Eine weitere, ca. 133 m² große Dachterrasse eröffnet einen beeindruckenden Rundumblick über Wien. Abgerundet wird dieses exklusive Angebot durch einen ca. 27 m² großen privaten Weinkeller.



Im selben Haus steht zudem eine weitere Wohnung mit ca. 266 m² Wohnfläche inklusive Garagenplatz zum Kaufpreis von EUR 7,1 Mio. zur Verfügung. Beim Erwerb beider Einheiten ist ein attraktiver Paketpreis verhandelbar.



Für weitere Informationen oder zur Vereinbarung eines Besichtigungstermins stehen wir Ihnen jederzeit gerne zur Verfügung.



Bernhard Friedrich
+43 660 117 9020

bf@finallyhome.at


Wir weisen darauf hin, dass zwischen dem Vermittler und dem zu vermittelnden Dritten ein familiäres oder wirtschaftliches Naheverhältnis besteht.


Der Vermittler ist als Doppelmakler tätig.

Infrastruktur / Entfernungen

Gesundheit
Arzt <500m
Apotheke <500m
Klinik <1.000m
Krankenhaus <1.000m

Kinder & Schulen
Schule <500m
Kindergarten <1.000m
Universität <500m
Höhere Schule <500m

Nahversorgung
Supermarkt <500m
Bäckerei <500m
Einkaufszentrum <500m

Sonstige
Geldautomat <500m
Bank <500m
Post <500m
Polizei <1.000m

Verkehr
Bus <500m
U-Bahn <500m
Straßenbahn <500m
Bahnhof <500m
Autobahnanschluss <3.000m

Angaben Entfernung Luftlinie / Quelle: OpenStreetMap

Eckdaten Objektnr. 1819/82

Art: Wohnung - Dachgeschoß
Land: Österreich
Baujahr: 1869
Zustand: Erstbezug
Alter: Altbau
Provision: 3% des Kaufpreises zzgl. 20% USt.
MwSt Gesamt: 316,00 €
Wohnfläche: 362,51 m²
Zimmer: 4,50
Bäder: 4
WC: 5
Terrassen: 2
Keller: 8,83 m²
Heizwärmebedarf:  B  25,01 kWh/m²a
fGEE:  B  0,90
Immobilie merken Exposé

Ausstattung

Parkett, Personenaufzug, Badewanne


Immobilie anfragen


Ihre persönliche Beratung

Bernhard Friedrich

finallyHOMEreal GmbH

T +43 660 117 9020