Penthouse im revitalisierten Palais | Erstbezug
Wohnung
- Dachgeschoß,
1010
Wien,Innere Stadt
Kärntner Straße, Schubertring
Beschreibung der Immobilie
Penthouse im revitalisierten Palais | Erstbezug
Exklusives Penthouse im Herzen Wiens
In absoluter Bestlage der Wiener Innenstadt – zwischen Kärntner Straße, Schubertring und dem Stadtpark – befindet sich diese außergewöhnliche Penthouse-Wohnung in der Fichtegasse. Stephansdom und Wiener Staatsoper sind fußläufig erreichbar.
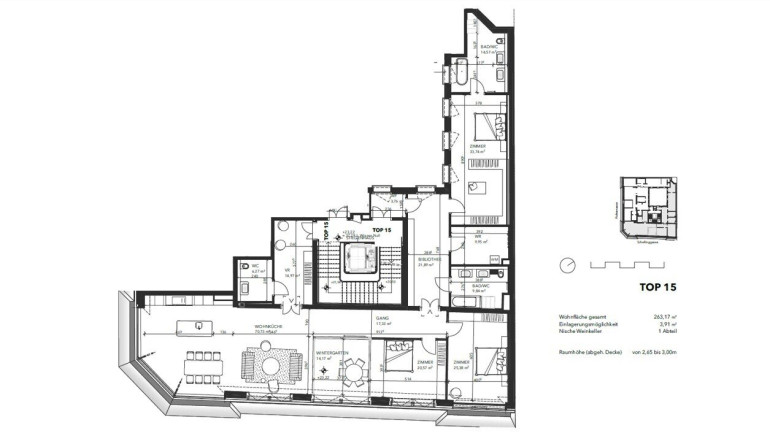
Das stilvoll revitalisierte Palais Herzfeld vereint historischen Charme mit modernem Luxus. Im 1. Dachgeschoss gelegen, bietet das Penthouse Raumhöhen von ca. 2,65 bis 3 Metern sowie einen Wintergarten. Herzstück ist die großzügige Wohnküche (ca. 71 m²) mit großen Fensterflächen. Drei Schlafzimmer – darunter ein Masterbereich mit Bad en suite – garantieren höchsten Wohnkomfort und Privatsphäre. Eine eigene Nische im Weinkeller rundet dieses exklusive Angebot ab.
Zusatzoption:
Ein weiteres Penthouse im Haus (ca. 363 m², Rooftop-Pool, Garagenplatz) ist verfügbar – ein Paketpreis beim Erwerb beider Einheiten ist möglich.
Für weitere Informationen oder einen Besichtigungstermin stehen wir Ihnen gerne zur Verfügung.
Bernhard Friedrich
+43 660 117 9020
bf@finallyhome.at
Wir weisen darauf hin, dass zwischen dem Vermittler und dem zu vermittelnden Dritten ein familiäres oder wirtschaftliches Naheverhältnis besteht.
Der Vermittler ist als Doppelmakler tätig.
Infrastruktur / Entfernungen
Gesundheit
Arzt <500m
Apotheke <500m
Klinik <1.000m
Krankenhaus <1.000m
Kinder & Schulen
Schule <500m
Kindergarten <1.000m
Universität <500m
Höhere Schule <500m
Nahversorgung
Supermarkt <500m
Bäckerei <500m
Einkaufszentrum <500m
Sonstige
Geldautomat <500m
Bank <500m
Post <500m
Polizei <1.000m
Verkehr
Bus <500m
U-Bahn <500m
Straßenbahn <500m
Bahnhof <500m
Autobahnanschluss <3.000m
Angaben Entfernung Luftlinie / Quelle: OpenStreetMap
Eckdaten Objektnr. 1819/83
| Art: | Wohnung - Dachgeschoß |
| Land: | Österreich |
| Baujahr: | 1869 |
| Zustand: | Erstbezug |
| Alter: | Altbau |
| Kaufpreis: | 7.099.000,00 € |
| Provision: | 3% des Kaufpreises zzgl. 20% USt. |
| Betriebskosten: | 588,60 € |
| Heizkosten: | 488,55 € |
| MwSt Gesamt: | 147,17 € |
| Wohnfläche: | 263,17 m² |
| Zimmer: | 4,50 |
| Bäder: | 2 |
| WC: | 3 |
| Keller: | 3,91 m² |
| Heizwärmebedarf: | B 25,01 kWh/m²a |
| fGEE: | B 0,90 |
Ausstattung
Parkett, Personenaufzug, Badewanne, Tiefgarage, Alarmanlage
Ihre persönliche Beratung
Bernhard Friedrich
finallyHOMEreal GmbH
T +43 660 117 9020