Sanierungsbedürftige Altbauetage 4-6 Zimmer

Wohnung , 1090 Wien


Beschreibung der Immobilie

Sanierungsbedürftige Altbauetage 4-6 Zimmer

3 nebeinanderliegende Altbauwohnungen für Sanierung und Zusammenlegung



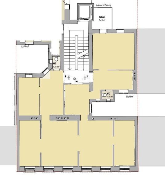
Großzügige Altbauetage Nähe Donaukanal und U-Bahnstation Spittelau



Individueller Umbau mit tollem Grundriss nach Ihren Wünschen



3. Stock - 5 bis 6 Zimmer möglich - Küche und Bäder - 2-3 WC - Balkon bewilligt



Direkt beim zukünftig größten Bildungscampus Österreichs (Areal der ehemaligen WU-Wien)



ost- und westseitige Ausrichtung - Sanierung kann verkäuferseitig durchgeführt werden



Im Zuge des bereits bewilligten Dachgeschoßausbaus wird auch ein Lift eingebaut, das Stiegenhaus sowie die Außenfassade werden renoviert. Für die Käufer der Wohnungen erfolgt dies ohne Zusatzkosten 



schönes Gründerzeithaus mit gegliederter Fassade



5 min Gehdistanz zu den U-Bahnstationen Spittelau oder Nußdorfer Straße



Weitere Informationen oder Besichtigung gerne unter 0676 933 16 91



Energieklasse F/E



Nebenkosten bei Kaufverträgen:



  • Grunderwerbsteuer : 3, 5%
  • Grundbuchseintragungsgebühr : 1, 1%
  • Vermittlungsprovision: Bitte beachten Sie, dass bei erfolgreicher Vermittlung mit Rechtswirksamkeit des zu vermittelnden Geschäfts eine Provision laut Immobilienmaklerverordnung i.H.v. 3% zzgl. 20% USt. des Kaufpreises zu leisten ist.
  • Kosten der Vertragserrichtung und grundbücherlichen Durchführung nach Vereinbarung im Rahmen der Tarifordnung des jeweiligen Urkundenerrichters sowie Barauslagen für Beglaubigungen und Stempelgebühren


Alle Informationen, insbesondere jene hinsichtlich des Energieausweises beruhen auf den Auskünften und Unterlagen des Eigentümers. Wir haben weder die Richtigkeit oder Vollständigkeit der Angaben noch die tatsächliche Gesamtenergieeffizienz überprüft und übernehmen hierfür keine Gewähr. Wir weisen darauf hin, dass zum Auftraggeber ein wirtschaftliches Naheverhältnis besteht. Unsere Angebote sind freibleibend und unverbindlich. Zwischenverkauf, -vermietung oder -verpachtung durch den zu vermittelnden Dritten sind vorbehalten. Der Vermittler ist als Doppelmakler tätig.

Infrastruktur / Entfernungen

Gesundheit
Arzt <500m
Apotheke <500m
Klinik <500m
Krankenhaus <1.500m

Kinder & Schulen
Schule <1.000m
Kindergarten <500m
Universität <500m
Höhere Schule <1.000m

Nahversorgung
Supermarkt <500m
Bäckerei <500m
Einkaufszentrum <2.000m

Sonstige
Geldautomat <500m
Bank <500m
Post <500m
Polizei <500m

Verkehr
Bus <500m
U-Bahn <500m
Straßenbahn <500m
Bahnhof <500m
Autobahnanschluss <1.000m

Angaben Entfernung Luftlinie / Quelle: OpenStreetMap

Eckdaten Objektnr. 8200/296

Art: Wohnung
Land: Österreich
Baujahr: 1906
Alter: Altbau
Kaufpreis: 667.000,00
Provision: 3% des Kaufpreises zzgl. 20% USt.
Betriebskosten: 303,91 €
MwSt Gesamt: 30,39 €
Wohnfläche: 137,00 m²
Nutzfläche: 137,00 m²
Zimmer: 4
Balkone: 1
Immobilie merken Exposé

Immobilie anfragen


Ihre persönliche Beratung

ZEBEH GmbH

ZEBEH GmbH

T +43 676 9331691

H 0676 933 16 91