Komfortable 2-Zimmer-Altbauwohnung | unbefristet | ab sofort

Wohnung , 3400 Klosterneuburg


Beschreibung der Immobilie

Komfortable 2-Zimmer-Altbauwohnung | unbefristet | ab sofort

***Für einen Besichtigungstermin bitten wir um Voranmeldung per E-Mail/Anfrage. Wir bitten Sie Ihren Namen und Anschrift anzuführen.***



***Bitte lassen Sie mir vorab ausreichend Detailinformationen (kurzer Text) über Ihre Person zukommen und schalten Sie Ihr Mietprofil für mich frei.**** Es werden nur vollständige Anfragen bearbeitet***





Objektadresse:
3400 Klosterneuburg, Albrechtsstraße 22/8 




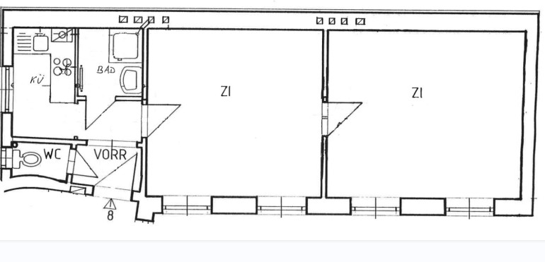
Zimmeraufteilung:

Wohnzimmer, Küche, 1 Schlafzimmer, Vorraum, Bad, WC, Kellerabteil



Eckdaten zur Wohnung: 



  • unbefristeter Mietvertrag 
  • ab sofort verfügbar
  • Einbauküche kostenlos vorhanden
  • Gasetagenheizung 
  • 2. Stock ohne Aufzug 
  • Waschmaschinenanschluss vorhanden
  • Kellerabteil 




Einmalkosten (bei MV-Abschluss zu bezahlen):



  • Kaution: € 3.500,00
  • keine Mietvertragserrichtungskosten 




Sollten Sie zu einem bestimmten Thema mehr Informationen wünschen, übermitteln wir diese gerne oder recherchieren für Sie! 



Ich freue mich darauf, Ihnen diese Immobilie persönlich zeigen zu dürfen.





Kraft bestehenden Geschäftsgebrauchs weisen wir darauf hin, dass ein wirtschaftliches Naheverhältnis zum Vermieter besteht. Das wirtschaftliche Naheverhältnis ergibt sich aus der regelmäßigen Verbindung. 



Ihre Daten werden nach den Bestimmungen des Datenschutzgesetzes streng vertraulich behandelt. (https://www.immoeko.at/datenschutzinformation) 


Hinweis gemäß Energieausweisvorlagegesetz: Ein Energieausweis wurde vom Eigentümer bzw. Verkäufer, nach unserer Aufklärung über die generell geltende Vorlagepflicht, sowie Aufforderung zu seiner Erstellung noch nicht vorgelegt. Daher gilt zumindest eine dem Alter und der Art des Gebäudes entsprechende Gesamtenergieeffizienz als vereinbart. Wir übernehmen keinerlei Gewähr oder Haftung für die tatsächliche Energieeffizienz der angebotenen Immobilie.


Der Immobilienmakler erklärt, dass er – entgegen dem in der Immobilienwirtschaft üblichen Geschäftsgebrauch des Doppelmaklers – einseitig nur für den Vermieter tätig ist.

Infrastruktur / Entfernungen

Gesundheit
Arzt <500m
Apotheke <500m
Klinik <4.000m
Krankenhaus <500m

Kinder & Schulen
Schule <500m
Kindergarten <500m
Universität <4.000m
Höhere Schule <7.000m

Nahversorgung
Supermarkt <500m
Bäckerei <500m
Einkaufszentrum <4.500m

Sonstige
Bank <500m
Geldautomat <500m
Post <1.000m
Polizei <1.000m

Verkehr
Bus <500m
Straßenbahn <5.500m
U-Bahn <7.500m
Bahnhof <500m
Autobahnanschluss <2.500m

Angaben Entfernung Luftlinie / Quelle: OpenStreetMap

Eckdaten Objektnr. 651

Art: Wohnung
Land: Österreich
Zustand: Gepflegt
Alter: Altbau
Gesamtmiete: 596,53
Kaltmiete (netto): 400,00 €
Kaltmiete: 542,30 €
Provision: Gemäß Erstauftraggeberprinzip bezahlt der Abgeber die Provision.
Betriebskosten: 142,30 €
MwSt Gesamt: 54,23 €
Wohnfläche: 49,00 m²
Zimmer: 2
Bäder: 1
WC: 1
Keller: 2,00 m²
Immobilie merken Exposé

Immobilie anfragen


Ihre persönliche Beratung

IMMOEKO e.U

Mag. Özge Kocabas

IMMOEKO OG

T 06645245486

H +43 664 524 54 86