Großraumbüro - 498m² - Nähe Rochusmarkt

Büro / Praxis , 1030 Wien , Erdbergstraße


- U3 Rochusmarkt - U3 Kardinal-Nagl-Platz - Exzellente Infrastruktur, zahlreiche Geschäfte und Lokale in der Nähe

Beschreibung der Immobilie

Großraumbüro - 498m² - Nähe Rochusmarkt

Sehr geehrte Damen und Herren,



das hier zu vermietende Büro im dritten Bezirk befindet sich im Erdgeschoss eines gepflegten Neubaus im Wohnpark Erdberg.



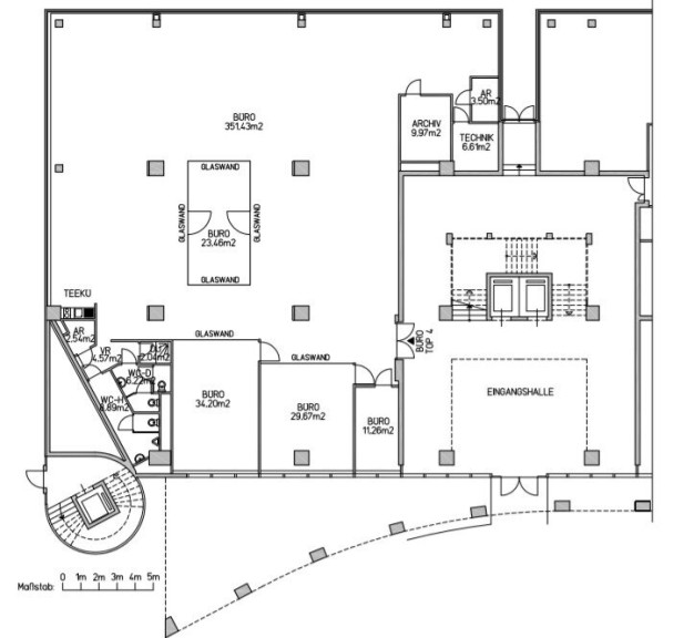
Das Objekt verfügt über ca. 498 Nutzfläche.



Durch die Nähe zum Rochusmarkt und Kardinal Nagl-Platz ist die Nahversorgung und öffentliche Anbindung hervorragend.



Raumaufteilung:



  • 4 Büroräume
  • 1 offener, großflächiger und gestaltbarer Raum
  • Teeküche
  • Abstellraum
  • Archiv
  • Technik
  • separate WCs




Kosteninformationen:



  • Miete (exkl. MWSt):  5.837,03 €
  • Betriebskosten (exkl. MWSt): 1.379,57 €
  • Miete: 8,95 € /m² / Monat netto
  • Betriebskosten: 2,77 € / m² / Monat netto


Gesamtmiete Brutto:   7.004,43 €


Das Objekt kann jederzeit besichtigt werden.



Ich freue mich auf Ihre Nachricht.




Wir weisen darauf hin, dass zwischen dem Vermittler und dem zu vermittelnden Dritten ein familiäres oder wirtschaftliches Naheverhältnis besteht.


Der Vermittler ist als Doppelmakler tätig.

Infrastruktur / Entfernungen

Gesundheit
Arzt <250m
Apotheke <500m
Klinik <250m
Krankenhaus <750m

Kinder & Schulen
Schule <250m
Kindergarten <500m
Universität <1.000m
Höhere Schule <250m

Nahversorgung
Supermarkt <250m
Bäckerei <250m
Einkaufszentrum <250m

Sonstige
Geldautomat <250m
Bank <500m
Post <250m
Polizei <500m

Verkehr
Bus <250m
U-Bahn <250m
Straßenbahn <750m
Bahnhof <500m
Autobahnanschluss <1.500m

Angaben Entfernung Luftlinie / Quelle: OpenStreetMap

Eckdaten Objektnr. 271545543

Art: Büro / Praxis
Land: Österreich
Kaltmiete (netto): 4.457,46 €
Kaltmiete: 5.837,03 €
Miete / m²: 9,00 €
Provision: 3 Bruttomonatsmieten zzgl. 20% USt.
Betriebskosten: 1.379,57 €
MwSt Gesamt: 1.167,40 €
Nutzfläche: 498,04 m²
Heizwärmebedarf:  B  41,00 kWh/m²a
fGEE:  B  0,96
Immobilie merken Exposé

Ausstattung

Fernwärme, Teeküche


Immobilie anfragen


Ihre persönliche Beratung

Immobiliaris GmbH

Mag. Lukas Suk

Immobiliaris GmbH

T +43 676 7304391