Neubauprojekt il.VERO in Völkermarkt

Wohnung , 9100 Völkermarkt


Völkermarkt liegt im Süd-Osten Österreichs. in 25 Autobahnminuten ist die Landeshauptstadt Klagenfurt am Wörthersee erreichbar, in nur 1 Stunde die Kulturhauptstadt Graz. Die Stadtgemeinde liegt umgeben von Bergen, Flüssen und Badeseen inmitten der Natur. Somit gilt Völkermarkt als Paradies für Aktive. Auch der nahe gelegene Völkermarkter Stausee begeistern Fischer, Paddler und Bootsfahrer!

Beschreibung der Immobilie

Neubauprojekt il.VERO in Völkermarkt

Eine ganzheitlich erdachte Wohnanlage, die die vier Elemente in einem einzigartigen Gesamtkonzept verbindet: saubere Luft, der eigene Wald auf dem Grundstück (Erde), der Bach über das Grundstück (Wasser) und die Sonnenlage (Feuer) schaffen eine ganz besondere Wohn- und Lebensqualität. Am Schießstattweg, im Herzen von Völkermarkt, entsteht jetzt ein Generationshaus für Singles, Paare und Familien, die sich einen außergewöhnlichen Lebens- und Rückzugsort wünschen. Hier entsteht ein Lebensraum für Menschen mit einem besonderem Gespür für Qualität und Natur. In 25 Autominuten ist die Landeshauptstadt Klagenfurt am Wörthersee erreichbar, in einer Stunde die Kulturhauptstadt Graz.



Die gesamte Anlage zeichnet sich durch eine energetische Bauweise aus, die für perfekte Harmonie und Wohlbefinden sorgt. "il.VERO" besteht aus 32 attraktiven Eigentumswohnungen von der 2-Zimmer Wohnung ab ca. 45 m² bis zum Penthouse mit bis zu ca. 120 m² Wohnfläche. Die großzügigen Fensterflächen, die Terrassen oder Balkone eröffnen den Blick in die Natur.



Zusätzlich stehen eine Tiefgarage mit 20 Abstellplätzen sowie weite 15 Abstellplätze im Freien zur Verfügung.



Charakterisiert ist die Anlage durch helle und sonnige Einheiten mit moderner Ausstattung und hochwertigen Materialien. "il.VERO" verbindet Mensch und Natur in einzigartiger Weise und die wahren Werte des Wohnen und Lebens stehen als zentrales Gestaltungselement.





HIGHLIGHTS:



  • absolute Ruhelage
  • Zugang zum eigenen Wald - ein Wald der Spielraum ist für Kinder, Entspannungsraum nach dem Arbeitstag, Erlebnisraum für Entdecker/innen
  • umfassende Infrastruktur in Gehdistanz
  • perfekte Verkehrsanbindung
  • helle und sonnige Einheiten 
  • großzügige Terrassen/Balkone
  • nachhaltige Bauweise




Kaufnebenkosten:



- Grunderwerbssteuer: 3,5%



- Grundbuchseintragungsgebühr: 1,1%



- Vermittlungsprovision: 3% zzgl. 20% USt.



- Vertragserrichtungskosten: ca. 2%





Es wird keine Haftung für die Richtigkeit und Vollständigkeit der Daten übernommen, Irrtümer und Änderungen sind vorbehalten.


Wir weisen darauf hin, dass zwischen dem Vermittler und dem zu vermittelnden Dritten ein familiäres oder wirtschaftliches Naheverhältnis besteht.


Der Vermittler ist als Doppelmakler tätig.

Infrastruktur / Entfernungen

Gesundheit
Apotheke <500m
Arzt <1.000m

Kinder & Schulen
Schule <500m
Kindergarten <5.500m

Nahversorgung
Supermarkt <500m
Bäckerei <6.000m

Sonstige
Bank <500m
Geldautomat <1.000m
Post <1.000m
Polizei <500m

Verkehr
Bus <500m
Autobahnanschluss <2.500m
Bahnhof <4.000m

Angaben Entfernung Luftlinie / Quelle: OpenStreetMap

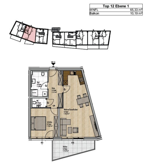
Eckdaten Objektnr. 7008/115

Art: Wohnung
Land: Österreich
Alter: Neubau
Kaufpreis: 312.100,00
Provision: 3% des Kaufpreises zzgl. 20% USt.
Wohnfläche: 66,40 m²
Zimmer: 2
Heizwärmebedarf:  B  29,00 kWh/m²a
fGEE:  A+  0,67
Immobilie merken Exposé

Ausstattung

Fußbodenheizung


Immobilie anfragen


Ihre persönliche Beratung

Selling-Homes Immobilien GmbH

Sanela Hodzic

Selling-Homes Immobilien GmbH

T +43 676 350 18 09

H +43 676 350 18 09