Raum für Familie, Ideen und Zukunft.

Haus - Einfamilienhaus, 1220 Wien,Donaustadt


In einer ruhigen Wohnsiedlung von Wien-Essling befindet sich dieses großzügige Einfamilienhaus, das 2009 in Massivbauweise errichtet wurde.

Beschreibung der Immobilie

Raum für Familie, Ideen und Zukunft.

Mit ca. 205 m² Wohnfläche, insgesamt ca. 294 m² Nutzfläche und einem Grundstück von rund ca. 532 m² vereint diese Immobilie Großzügigkeit, Funktionalität und Privatsphäre – eine seltene Kombination im aktuellen Marktumfeld.



Das Besondere auf einen Blick



  • 8 Zimmer – flexibel nutzbar
  • 2 Badezimmer + 3 WCs
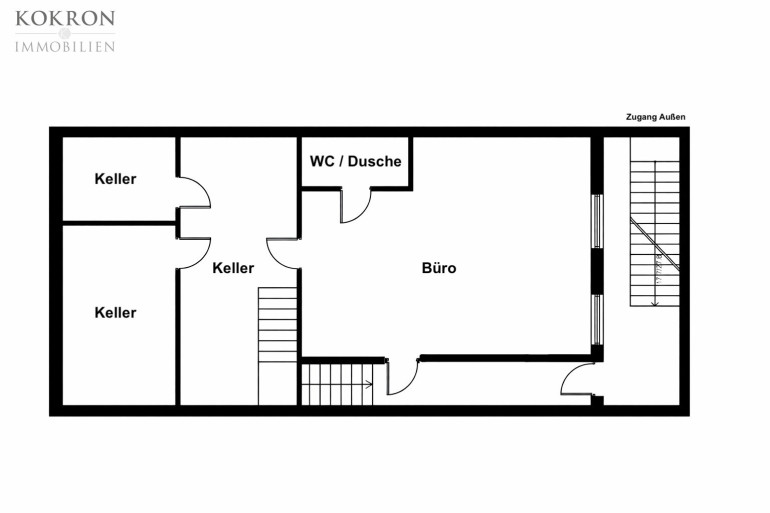
  • Voll nutzbarer Wohnkeller mit eigenem Zugang
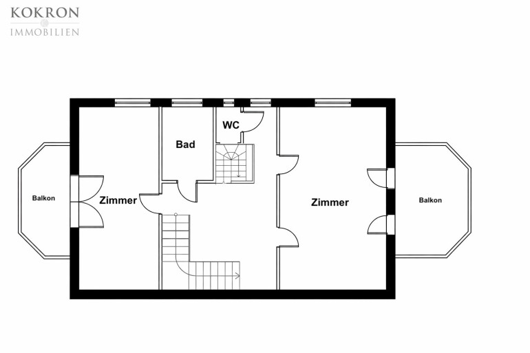
  • 2 Balkone im Obergeschoss
  • Terrasse mit angrenzendem Garten
  • 2 PKW-Stellplätze
  • Baujahr 2009
  • Kurzfristig verfügbar


 Durchdachte Raumstruktur auf drei Ebenen



Erdgeschoss – Leben & Zusammenkommen



Ein großzügiger Eingangsbereich empfängt Sie.



Das helle Wohnzimmer mit direktem Zugang zur Terrasse bildet das Herzstück des Hauses – ideal für Familienleben, Gäste oder entspannte Abende im Grünen.





Obergeschoss – Rückzug & Ruhe



Mehrere Schlafzimmer mit Zugang zu zwei Balkonen bieten Privatsphäre und Freiraum für jedes Familienmitglied.





Wohnkeller – Arbeiten & Flexibilität



Ein echtes Highlight: Der voll nutzbare Wohnkeller mit separatem Außenzugang.



Ob Praxis, Kanzlei, Homeoffice mit Kundenempfang, Gästebereich oder Jugendbereich – hier entstehen Möglichkeiten, die viele Häuser nicht bieten.





Lage – Essling, 1220 Wien



Ruhige, gewachsene Wohnlage mit hervorragender Infrastruktur:



• Buslinien 26A & 88A fußläufig erreichbar



• U2 Aspernstraße & Seestadt schnell angebunden



• Nähe zur Donauinsel & Nationalpark Lobau



• Schulen, Kindergarten, Ärzte & Einkaufsmöglichkeiten



• Donau Zentrum ca. 12 Autominuten



Hier verbinden sich Natur, Ruhe und Stadtnähe.





Ein Zuhause ist mehr als Quadratmeter.



Es ist ein Ort für Entscheidungen, Feste, Entwicklung und Rückzug.



Ein Ort, der mit Ihren Lebensphasen mitwächst.


Der Vermittler ist als Doppelmakler tätig.

Infrastruktur / Entfernungen

Gesundheit
Arzt <1.000m
Apotheke <1.000m
Klinik <3.000m
Krankenhaus <5.500m

Kinder & Schulen
Schule <1.000m
Kindergarten <1.000m
Universität <1.000m
Höhere Schule <2.500m

Nahversorgung
Supermarkt <500m
Bäckerei <1.500m
Einkaufszentrum <1.500m

Sonstige
Geldautomat <2.000m
Bank <1.000m
Post <1.000m
Polizei <1.500m

Verkehr
Bus <500m
U-Bahn <2.500m
Straßenbahn <3.500m
Bahnhof <2.500m
Autobahnanschluss <6.500m

Angaben Entfernung Luftlinie / Quelle: OpenStreetMap

Eckdaten Objektnr. 4809

Art: Haus - Einfamilienhaus
Land: Österreich
Baujahr: 2009
Zustand: Gepflegt
Möbliert: Teil
Alter: Neubau
Kaufpreis: 1.370.000,00
Provision: 49.320,00 € inkl. 20% USt.
Wohnfläche: 205,00 m²
Nutzfläche: 294,00 m²
Grundstücksfl.: 532,00 m²
Zimmer: 8
Bäder: 2
WC: 3
Balkone: 2
Heizwärmebedarf:  C  87,00 kWh/m²a
fGEE:  C  1,50
Immobilie merken Exposé

Ausstattung

Fliesen, Parkett


Immobilie anfragen


Ihre persönliche Beratung

Kokron Immobilien e.U.

Janiel Kovatsch

Kokron Immobilien e.U.

H +43 650 5512 592