Moderne 3-Zi -Wohnung mit Balkon beim Wienerwald

Wohnung , 3033 Altlengbach , Wienerwaldstraße


Altlengbach liegt westlich von Wien im Bezirk St. Pölten-Land und bietet eine ideale Kombination aus naturnahem Wohnen und guter Anbindung. Über die A1 ist Wien in ca. 25–30 Minuten erreichbar, was den Standort besonders für Pendler attraktiv macht. Die Umgebung ist geprägt vom Wienerwald mit zahlreichen Freizeit- und Erholungsmöglichkeiten. Einkaufsmöglichkeiten, Schulen und Einrichtungen des täglichen Bedarfs befinden sich im Ort sowie in der näheren Umgebung.

Beschreibung der Immobilie

Moderne 3-Zi -Wohnung mit Balkon beim Wienerwald

Sehr geehrte Damen und Herren,



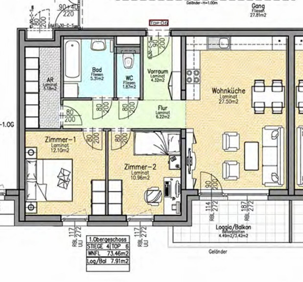
zur Vermietung gelangt eine moderne geförderte 3-Zimmer-Wohnung in einer grünen Lage beim Wienerwald. Es handelt sich um einen Erstbezug. Die Einheit befindet sich im Erdgeschoss eines zeitgemäßen Neubaus und bietet eine durchdachte Raumaufteilung sowie eine qualitative Ausstattung



Die Wohnung verfügt über ca. 73 m² Nutzfläche und einen BalkonDie Wohnräume sind mit Laminatboden, die Nassräume mit Fliesen ausgestattet. 3-fach-verglaste Fenster sorgen für angenehmes Raumklima.



Ein Kellerabteil ist ebenfalls vorhanden. Die Miete für den Tiefgaragenstellplatz im Haus beträgt EUR 25,–.





Highlights



  • Balkon
  • Fenster mit 3-fach-Verglasung
  • Laminat- und Fliesenböden
  • Kellerabteil
  • Tiefgarage im Haus 




Kosteninformation



Monatliche Gesamtmiete (inkl. Betriebskosten und Heizkosten/Warmwasser): EUR 959,59





Dieabgebildeten Fotos dienen als Beispiel zu ähnlichen Einheiten dieser Liegenschaft.



Es stehen zwei Varianten zur Verfügung:



  • Eine Option mit Kaufmöglichkeit zu einer monatlichen Miete von 959,59 €
  • sowie eine Variante ohne Kaufoption zu 784,00 €.


Auf Anfrage übermitteln wir Ihnen gerne eine detaillierte Übersicht aller Kosten. Da es sich um eine gemeinnützige Baugenossenschaft handelt, ist ein Finanzierungsbeitrag zu leisten.





Kontaktieren Sie uns gerne für nähere Informationen oder zur Vereinbarung eines Besichtigungstermins.




Ich freue mich auf Ihre Nachricht!




Wir weisen darauf hin, dass zwischen dem Vermittler und dem zu vermittelnden Dritten ein familiäres oder wirtschaftliches Naheverhältnis besteht.


Der Immobilienmakler erklärt, dass er – entgegen dem in der Immobilienwirtschaft üblichen Geschäftsgebrauch des Doppelmaklers – einseitig nur für den Vermieter tätig ist.

Infrastruktur / Entfernungen

Gesundheit
Arzt <3.000m
Apotheke <3.750m

Kinder & Schulen
Schule <2.750m
Kindergarten <3.750m

Nahversorgung
Supermarkt <2.000m
Bäckerei <3.250m

Sonstige
Bank <1.750m
Geldautomat <1.750m
Post <3.250m
Polizei <1.750m

Verkehr
Bus <250m
Autobahnanschluss <1.500m
Bahnhof <3.750m

Angaben Entfernung Luftlinie / Quelle: OpenStreetMap

Eckdaten Objektnr. 271545537

Art: Wohnung
Land: Österreich
Zustand: Neuwertig
Alter: Neubau
Gesamtmiete: 959,59
Kaltmiete (netto): 959,59 €
Kaltmiete: 959,59 €
Provision: Gemäß Erstauftraggeberprinzip bezahlt der Abgeber die Provision.
Nutzfläche: 73,46 m²
Zimmer: 3
Bäder: 1
WC: 1
Heizwärmebedarf:  A  19,52 kWh/m²a
fGEE:  A  0,66
Immobilie merken Exposé

Ausstattung

Fliesen, Laminatboden, Fernwärme, Fußbodenheizung, Einbauküche, Wohnküche / offene Küche, Personenaufzug, Badewanne, Garage, Tiefgarage


Immobilie anfragen


Ihre persönliche Beratung

Jasmin Scheit

Immobiliaris GmbH

T +43 664 1607111