Stilvolle 2-Zimmer-Gartenwohnung mit Terrasse in Ruhelage – Erstbezug in 1170 Wien - Cottageviertel

Wohnung , 1170 Wien


Die Wohnung befindet sich in der im 17. Wiener Gemeindebezirk Hernals, einer gefragten Wohngegend mit ausgezeichneter Kombination aus Ruhe und urbaner Infrastruktur. Die Lage zeichnet sich durch ihre angenehme Ruhelage in einem gepflegten Wohnumfeld aus, während gleichzeitig sämtliche Einrichtungen des täglichen Bedarfs in kurzer Distanz erreichbar sind. In unmittelbarer Nähe befinden sich Supermärkte, Geschäfte, Cafés und Restaurants sowie Schulen, Kindergärten und medizinische Einrichtungen. Die öffentliche Anbindung ist sehr gut: Straßenbahn- und Buslinien gewährleisten eine rasche Verbindung in die Wiener Innenstadt und zu wichtigen Verkehrsknotenpunkten. Für Freizeit und Erholung bietet die Umgebung zahlreiche Möglichkeiten – insbesondere der nahegelegene Wienerwald lädt zu Spaziergängen, sportlichen Aktivitäten und entspannenden Stunden im Grünen ein. Diese Lage vereint somit urbanen Komfort mit hoher Lebensqualität und macht die Immobilie sowohl für Eigennutzer als auch für Anleger besonders attraktiv.

Beschreibung der Immobilie

Stilvolle 2-Zimmer-Gartenwohnung mit Terrasse in Ruhelage – Erstbezug in 1170 Wien - Cottageviertel

Diese hochwertig ausgestattete 2-Zimmer-Gartenwohnung im Erstbezug vereint modernes Wohnen mit großzügigen Freiflächen. Die durchdachte Raumaufteilung, kombiniert mit einer sonnigen Terrasse und einem privaten Garten, schafft ein perfektes Zuhause mit hoher Lebensqualität.



Die Wohnung befindet sich in einem modernen Neubau und überzeugt durch hochwertige Materialien, Fußbodenheizung sowie große Fensterflächen mit Grünblick.




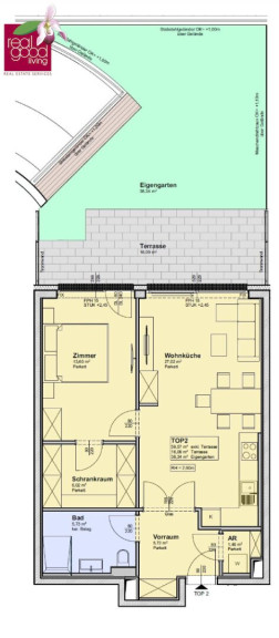
📐 Flächen & Raumaufteilung



Wohnfläche: ca. 60 m²

Terrasse: ca. 16 m²

Garten: ca. 38 m²

Keller: ca. 2 m²



Raumaufteilung:



  • Vorraum: 5,72 m²
  • Wohnküche: 27,02 m²
  • Schlafzimmer: 13,60 m²
  • Schrankraum: 6,02 m²
  • Badezimmer: 5,73 m²
  • Abstellraum: 1,48 m²



Ausstattung & Highlights



  • 🌿 Eigengarten + großzügige Terrasse
  • 🏗️ Neubau – Erstbezug
  • 🔥 Fußbodenheizung (Gas-Zentralheizung)
  • 🪟 Außenliegender Sonnenschutz
  • 🪟 Hochwertige Mehrfachverglasung
  • 🪵 Parkett- & Fliesenböden
  • 🚪 Personenaufzug
  • 🚲 Fahrradraum & Kellerabteil
  • 🌳 Ruhige Grünlage



🔋 Energieausweis



  • HWB: 33,89 kWh/m²a (sehr effizient)



💰 Kaufpreis & Konditionen



  • Kaufpreis: EUR 493.600,-
  • Tiefgaragenplatz (optional): EUR 35.000,-
  • Provision: 3 % zzgl. 20 % USt.



📞 Kontakt



Herr Bruno Franz
📱 +43 664 355 3790



👉 Besichtigungen sind jederzeit nach Terminvereinbarung möglich.

👉 Bitte nur Anfragen mit vollständigen Kontaktdaten.




💡 Besonderes Highlight



Die Kombination aus Ruhelage, Eigengarten und moderner Ausstattung macht diese Wohnung zu einer seltenen Gelegenheit im 17. Bezirk – ideal für Paare, Singles oder als wertstabile Anlage.


Wir weisen darauf hin, dass zwischen dem Vermittler und dem zu vermittelnden Dritten ein familiäres oder wirtschaftliches Naheverhältnis besteht.


Der Vermittler ist als Doppelmakler tätig.

Infrastruktur / Entfernungen

Gesundheit
Arzt <1.000m
Apotheke <1.500m
Klinik <2.000m
Krankenhaus <1.500m

Kinder & Schulen
Schule <1.500m
Kindergarten <1.000m
Universität <1.000m
Höhere Schule <3.000m

Nahversorgung
Supermarkt <1.000m
Bäckerei <1.000m
Einkaufszentrum <1.500m

Sonstige
Geldautomat <1.500m
Bank <1.500m
Post <1.000m
Polizei <2.000m

Verkehr
Bus <500m
U-Bahn <2.500m
Straßenbahn <1.000m
Bahnhof <2.000m
Autobahnanschluss <6.000m

Angaben Entfernung Luftlinie / Quelle: OpenStreetMap

Eckdaten Objektnr. 4356/449

Art: Wohnung
Land: Österreich
Zustand: Erstbezug
Alter: Neubau
Kaufpreis: 493.600,00
Provision: 3% des Kaufpreises zzgl. 20% USt.
Wohnfläche: 60,00 m²
Zimmer: 2
Bäder: 1
WC: 1
Terrassen: 1
Stellplätze: 1
Garten: 38,00 m²
Keller: 2,00 m²
Heizwärmebedarf: 3.389,00 kWh/m²a
Immobilie merken Exposé

Ausstattung

Parkett, Fliesen, Gas, Fußbodenheizung, Personenaufzug, Dusche, Kabel/Satelliten-TV, Tiefgarage


Immobilie anfragen


Ihre persönliche Beratung

RealGoodLiving Real Estate Services GmbH

Bruno Franz

RealGoodLiving Real Estate Services GmbH

T +43 660 245 44 57

H +43 664 3553 790