Luxuriöse 2-Zimmer-Altbauwohnung im Herzen der Innenstadt

Wohnung , 1010 Wien


Beschreibung der Immobilie

Luxuriöse 2-Zimmer-Altbauwohnung im Herzen der Innenstadt

Zum Verkauf gelangt diese exquisite 2 Zimmer-Wohnung im 1 Wiener Bezirk. Die Wohnung ist zurzeit vermietet.



Das im berühmten Wiener Historismus der Jahrhundertwende 1872 erbaute Haus befindet sich in einer ruhigen Seitengasse, im sogenannten Stubenviertel und wurde rundum saniert. Die historische, sehr kunstvolle Außenfassade wurde mit einem Steinsockel ausgebildet und ist somit über die gesamte Fläche beleuchtet. Das auf höchsten Niveau fertiggestellte Objekt, glänzt besonders durch die fantastische Lage sowie die einzigartige Auswahl der hochwertigen und exklusiven Materialien. Beeindruckende imperiale Wohnungen entstanden und gewähren Ihnen die Möglichkeit in allerbestem Hause mit dementsprechender Nachbarschaft zu wohnen.



Dieses edle Objekt bietet Ihnen jeden erdenklichen Komfort. Auf hochwertige Haustechnik, wie zum Beispiel die Klimaanlage, sowie modernste Elektro-Verkabelung für IT wurde wert gelegt. Der Lift ist als Durchlader gebaut, wodurch auch das gesamte Haus türschwellenfrei ist. Eine Druckbelüftungsanlage im Stiegenhaus sorgt für die nötige Rauchfreiheit im Brandfall. Die Holzkastenfenster aus Lerchenholz sind mit einer dreifach Isolierverglasung versehen. Die Böden sind entweder aus Nuss- oder Eichenholz in Form von Kasettenboden verlegt.



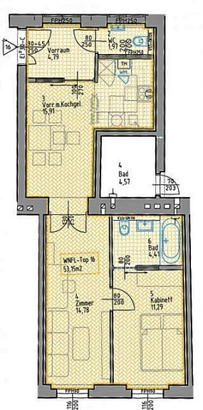
Diese traumhafte Wohnung besteht aus einer Fläche von ca. 53,15 m². Sie betreten den schönen Vorraum, in dem sich eine Gästetoilette befindet. Das Schlafzimmer ist mit einem en Suite Badezimmer ausgestattet. In den Nassräumen treffen Sie ausschließlich hochwertige Steinzeug Materialien sowie Hochglanzfliesen und modernste Sanitäreinrichtungen an. Ein geräumiges Wohnzimmer und ein schönes Esszimmer mit integrierter Küche runden das Wohlbefinden in dieser Wohnung ab.



Ein weiteres Highlight ist die Nähe zum Stadtpark, sowie zur Kärntnerstraße, die zum Shoppen einlädt. Vor der Haustüre befinden sich ausgezeichnete Restaurants, das Akademietheater, das Wiener Konzerthaus sowie die Staatsoper und diverse Museen. Die öffentlichen Verkehrsmittel (Straßenbahnlinie 2,U-Bahn Linie 3) sind in nächster Nähe zu erreichen



Überzeugen Sie sich selbst von diesem exklusiven Objekt.



Für Besichtigungen und nähere Informationen stehen wir Ihnen gerne zur Verfügung!



Hr. Christian Kiedl

national - Tel: 0664 336 0836
international - Tel: +43 664 336 0836
e-mail: kiedl@lifestyle-properties.at






Infrastruktur / Entfernungen

Gesundheit
Arzt <500m
Apotheke <500m
Klinik <1.000m
Krankenhaus <1.000m

Kinder & Schulen
Schule <500m
Kindergarten <1.000m
Universität <500m
Höhere Schule <500m

Nahversorgung
Supermarkt <500m
Bäckerei <500m
Einkaufszentrum <500m

Sonstige
Geldautomat <500m
Bank <500m
Post <500m
Polizei <1.000m

Verkehr
Bus <500m
U-Bahn <500m
Straßenbahn <500m
Bahnhof <500m
Autobahnanschluss <3.000m

Angaben Entfernung Luftlinie / Quelle: OpenStreetMap

Eckdaten Objektnr. 5258

Art: Wohnung
Land: Österreich
Zustand: Erstbezug
Alter: Altbau
Kaufpreis: 849.000,00
Provision: 3% des Kaufpreises zzgl. 20% USt.
Betriebskosten: 290,00 €
MwSt Gesamt: 29,00 €
Wohnfläche: 53,15 m²
Zimmer: 2
Bäder: 1
WC: 2
Heizwärmebedarf:  C  73,37 kWh/m²a
fGEE:  C  1,82
Immobilie merken Exposé

Ausstattung

Estrichboden, Fliesen, Parkett, Gas, Fußbodenheizung, Einbauküche, Personenaufzug, Dusche


Immobilie anfragen


Ihre persönliche Beratung

IM Lifestyle Properties GmbH

Christian Kiedl

Lifestyle Properties

T +43 1 512 14 84

H +43 664 336 0836

F +43 1 512 14 84