| THE BRICK am Wienerberg | modernes Arbeiten

Büro / Praxis , 1100 Wien


Beschreibung der Immobilie

| THE BRICK am Wienerberg | modernes Arbeiten

Objekt und Lage:



THE BRICK ist weit mehr als eine Büroadresse – es ist ein Statement für Beständigkeit. Die charaktervolle Ziegelfassade zollt der industriellen Historie des Standorts Respekt, während das Innere eine hochmoderne Arbeitswelt offenbart. Als Herzstück der „Biotope City“ definiert dieser Komplex die Balance zwischen urbaner Dynamik und ökologischer Verantwortung völlig neu.



Die Lage an der Triester Straße bietet eine perfekte logistische Anbindung, während das direkt angrenzende Erholungsgebiet Wienerberg als „grünes Wohnzimmer“ für kreative Pausen dient. Mit erstklassiger In-house Gastronomie, einem integrierten Hotelkonzept für Ihre Geschäftspartner und einer umfassenden E-Mobility-Infrastruktur bietet der Standort alle Synergien eines modernen Business-Hubs.



Eingebettet in das innovative Quartier Biotope City, markiert THE BRICK das Zentrum eines 5,4 Hektar großen Areals mit rund 900 Wohneinheiten. Diese vitale Nachbarschaft profitiert unmittelbar von der angrenzenden 123 Hektar großen Naturlandschaft Wienerberg. Mit dem Wienerbergteich, weitläufigen Liegewiesen sowie einem 14 km langen Netz aus Lauf- und Radwegen liegt eines der bedeutendsten Naherholungsgebiete Wiens direkt vor der Tür.



Die sportliche Infrastruktur in direkter Gehdistanz: mehrere Fußball- und Sportplätze sowie der City & Country Club Wienerberg (Golf & Tennis) bieten erstklassige Möglichkeiten für den Ausgleich zum Business. Zudem ergänzen renommierte Fitness-Studios wie McFIT und Speedfit das umfassende Angebot im unmittelbaren Umkreis.



Ergänzend zur hauseigenen Gastronomie (Müller Bräu) bietet die benachbarte Wienerberg City eine lückenlose Nahversorgung, in bequemer Gehdistanz.





Die Betriebskosten (inkl. Heizung und Kühlung) verstehen sich als zirka Angaben.





Mietvertrag: befristet, mind. 3 Jahre



Kaution: 3 bis 6 Bruttomonatsmieten je nach Bonität



Provision: 3 Bruttomonatsmieten





Ausstattung: dzt. open-Space



  • flexible Raumeinteilung
  • Teppichboden
  • öffenbare Fenster
  • 3-fach Verglasung, Holz-Alu-Schallschutz-Fenster 
  • Doppelboden
  • Bodendosen
  • Hängeleuchten LED
  • elektrische Außenjalousien
  • Teeküchenanschlüsse
  • getrennte Sanitäreinheiten D/H
  • separates Behinderten-WC
  • Kühlung, Bauteilaktivierung
  • Heizung, Fernwärme
  • Personenlift
  • ÖGNI/DGNB Platin Zertifizierung
  • Fahrradabstellraum, Duschen, Umkleiden im EG
  • barrierefrei




Energieausweis liegt vor:



Heizwärmebedarf: 22,16kWh/m².





Stellplätze:



Tiefgarage im Haus, dzt. 1 STP verfügbar € 100,00/Stellplatz/Monat/netto



Weitere Stellplätze in umliegende Garagen





Verkehrsanbindung:



Die Anbindung an das Wiener U-Bahn-Netz (Verlängerung der U2 bis Wienerberg) ist bereits in Planung und wird für den Zeitraum 2032–2035 erwartet.



Knotenpunkt Wienerberg City: Anbindung an den Bahnhof Meidling (U6, S-Bahn, Fernzüge) via Bus 7B sowie zur U1 via Bus 15A, 65A.



Straßenbahn & Lokalbahn: Station Inzersdorfer Straße (Linie 1 & Badner Bahn) mit Direktverbindung zur Oper/Karlsplatz.



Individuell: direkter Anschluss an die A2 (Süd), A23 (Tangente) und S1 über den Knoten Inzersdorf in ca. 3–5 Minuten. Flughafen: in rund 20 Minuten Fahrzeit erreichbar.





Alle Preisangaben verstehen sich zzgl. der gesetzl. Ust.



Alle Angaben ohne Gewähr, Irrtümer und Änderungen vorbehalten.


Wir weisen darauf hin, dass zwischen dem Vermittler und dem zu vermittelnden Dritten ein familiäres oder wirtschaftliches Naheverhältnis besteht.


Der Vermittler ist als Doppelmakler tätig.

DECUS Immobilien GmbH – Wir beleben Räume

Für weitere Informationen und Besichtigungen steht Ihnen gerne Frau  Sonja Macho unter der Mobilnummer +43 664 44 53 56 1und per E-Mail unter macho@decus.at persönlich zur Verfügung.

www.decus.at | office@decus.at 

Wichtige Informationen

Bitte beachten Sie, dass per 13.06.2014 eine neue Richtlinie für Fernabsatz- und Auswärtsgeschäfte in Kraft getreten ist.

Ab 1.4.2024 entfallen die Grundbuchs- und Pfandrechtseintragungsgebühren vorübergehend für Eigenheime bis zu einer Bemessungsgrundlage von EUR 500.000,-. Voraussetzung ist das dringende Wohnbedürfnis, ausgenommen davon sind vererbte oder geschenkte Immobilien. Die Befreiung ist jedoch für den Einzelfall zu prüfen, DECUS Immobilien übernimmt hierzu keine Haftung.

Ab 01.07.2023 gilt das Erstauftraggeber-Prinzip bei Wohnungsmietverträgen, ausgenommen davon sind Dienst-/Natural-/Werkswohnungen. Wir dürfen gem. § 17 Maklergesetz darauf hinweisen, dass wir auf die Doppelmaklertätigkeit gem. § 5 Maklergesetz bei Wohnungsmietverträgen verzichten und nur noch einseitig tätig sind (bei den restlichen Vermittlungsarten nicht) und ein wirtschaftliches Naheverhältnis zu unseren Auftraggebern besteht. 

Im Falle eines Abschlusses mit Ihnen oder einem von Ihnen namhaft gemachten Dritten bzw. bei beidseitiger Willensübereinstimmung beträgt unser Honorar (lt. Honorarverordnung für Immobilienmakler) 2 Bruttomonatsmieten (BMM) bei Dienst-/Natural-/Werkwohnungen sowie Suchaufträgen, 3 BMM bei Gewerbe-, PKW-, Keller- und Lagermietverträgen sowie bei Kaufobjekten 3 % des Kaufpreises, zuzüglich der gesetzlichen Umsatzsteuer.

Dieses Objekt wird Ihnen unverbindlich und freibleibend angeboten. Oben angeführte Angaben basieren auf Informationen und Unterlagen des Eigentümers und sind unsererseits ohne Gewähr.

Nähere Informationen sowie unsere AGBs und die Nebenkostenübersichtsblatt finden Sie auf unserer Homepage www.decus.at unter "Service" - "Rechtliches zum FAGG" sowie im Anhang der zugesendeten Objekt-Exposés!

Infrastruktur / Entfernungen

Gesundheit
Arzt <500m
Apotheke <500m
Klinik <500m
Krankenhaus <500m

Kinder & Schulen
Schule <500m
Kindergarten <500m
Universität <2.000m
Höhere Schule <1.500m

Nahversorgung
Supermarkt <500m
Bäckerei <500m
Einkaufszentrum <2.000m

Sonstige
Geldautomat <500m
Bank <500m
Post <500m
Polizei <1.500m

Verkehr
Bus <500m
U-Bahn <1.500m
Straßenbahn <500m
Bahnhof <1.500m
Autobahnanschluss <2.000m

Angaben Entfernung Luftlinie / Quelle: OpenStreetMap

Verfügbare Flächen

Stiege/Bauteil 0


Stockwerk
Top
Art
Fläche
Terrasse
Nettomiete/m²
BK/m²

2. Etage
-
Büro / Praxis
453,70 m2
-
13,50 €
4,00 €

verfügbare flächen

Stiege/Bauteil 0

Stockwerk
Top
Art
Fläche
Teilbar ab
Terrasse
Nettomiete/m2 von-bis
BK/m2
2. Etage
-
Büro / Praxis
453,70 m2
-
-
13,50 - 13,50 €
4,00 €

Eckdaten Objektnr. 1152579/1

Art: Büro / Praxis
Land: Österreich
Baujahr: 2019
Alter: Neubau
Kaltmiete (netto): 6.124,95 €
Miete / m²: 13,50 €
Betriebskosten: 1.814,80 €
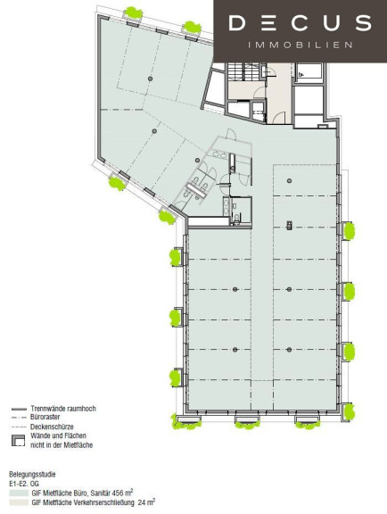
Nutzfläche: 453,70 m²
Heizwärmebedarf: 22,16 kWh/m²a
Immobilie merken Exposé

Immobilie anfragen


Ihre persönliche Beratung

DECUS Immobilien GmbH

Sonja Macho

DECUS Immobilien GmbH

T +43 664 44 53 56 1

H +43 664 44 53 56 1

F +43 1 35 600 10