Familienfreundliches Miethaus mit viel Platz & Garten in Kledering

Haus - Einfamilienhaus, 2320 Kledering


Kledering bietet eine gute Infrastruktur mit Kindergarten, Bahnhof mit Anbindung nach Wien sowie weiteren öffentlichen Verkehrsmitteln Richtung Schwechat und zur U1-Station Oberlaa. Einkaufsmöglichkeiten sind in wenigen Fahrminuten erreichbar.

Beschreibung der Immobilie

Familienfreundliches Miethaus mit viel Platz & Garten in Kledering

Hier fühlt sich die ganze Familie wohl | Auch Haustiere sind herzlich willkommen



Im sehr gut angebundenen Schwechater Stadtteil Kledering befindet sich dieses gepflegte Einfamilienhaus mit großzügigem Garten. Sie sind eine große Familie und haben vielleicht sogar ein Haustier? Dann könnte dieses Haus genau das Richtige für Sie sein.

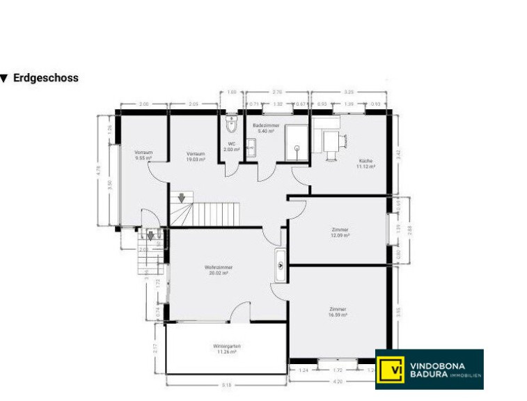
Das Erdgeschoss verfügt über ein Esszimmer mit Einbauküche, ein Wohnzimmer mit Zugang zum Wintergarten und einem Kachelofen, sowie zwei weitere Zimmer, die sich ideal als Schlaf- oder Kinderzimmer nutzen lassen.

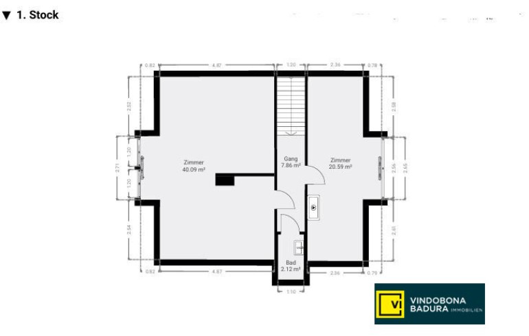
Im Obergeschoss befinden sich zwei Zimmer, die flexibel als Schlafräume, Homeoffice, Gästezimmer oder Hobbyräume genutzt werden können.

Der Garten bietet ausreichend Platz zum Genießen, Spielen und Gärtnern.

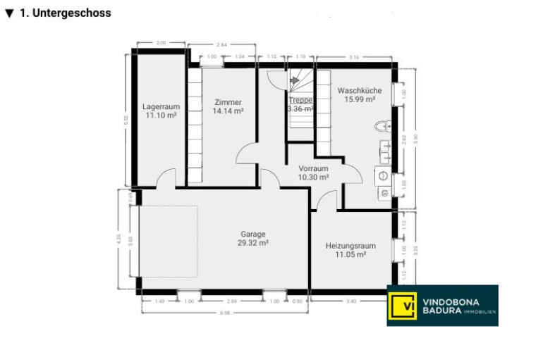
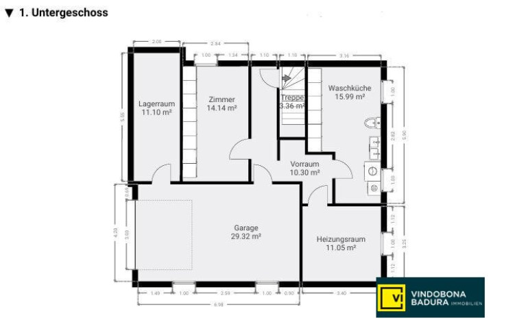
Der Keller verfügt über umfangreiche Lagerflächen, eine Waschküche und ermöglicht den Zugang zur Garage.



Details auf einen Blick:



  • Wohnfläche: 178m²
  • Grundstücksfläche: 500m²
  • Keller: 66 m²
  • Wohnzimmer + 4 Schlafzimmer
  • Außenrollläden
  • Gemütlicher Kachelofen
  • Große Garage mit elektrischem Tor
  • Sofort verfügbar



Die Raumaufteilung gliedert sich wie folgt: 

Erdgeschoss:
Vorraum 9,55 m², Vorraum mit Garderobenschrank 19,03 m², Wohnzimmer 20,02 m², Badezimmer 5,4 m², WC 2,00 m², Küche 11,12 m², Zimmer 12,09 m², Zimmer 16,59 m², Wintergarten 11,26 m²

Obergeschoss: Zimmer 40,09 m², Zimmer 20,59 m², Gang 7,86 m², Bad mit WB 2,12 m²

Kellergeschoss: Lagerraum 11,10 m², Lagerraum 14,14 m², Vorraum 10,30 m², Waschküche 15,99 m², Heizungsraum 11,05m², Garage 29,32 m²



***Lassen Sie sich zu einer Besichtigung einladen und vereinbaren Sie mit uns einen individuellen Termin***




Der Immobilienmakler erklärt, dass er – entgegen dem in der Immobilienwirtschaft üblichen Geschäftsgebrauch des Doppelmaklers – einseitig nur für den Vermieter tätig ist.

Eckdaten Objektnr. 2068

Art: Haus - Einfamilienhaus
Land: Österreich
Baujahr: 1985
Zustand: Gepflegt
Möbliert: Teil
Alter: Neubau
Gesamtmiete: 2.160,73
Kaltmiete (netto): 2.000,00 €
Kaltmiete: 2.160,73 €
Provision: Gemäß Erstauftraggeberprinzip bezahlt der Abgeber die Provision.
Betriebskosten: 160,73 €
Wohnfläche: 178,00 m²
Grundstücksfl.: 500,00 m²
Zimmer: 5
Bäder: 2
WC: 2
Keller: 66,00 m²
Heizwärmebedarf:  E  159,00 kWh/m²a
fGEE:  D  2,27
Immobilie merken Exposé

Ausstattung

Gas, Kamin, Zentralheizung, Einbauküche, Bad mit Fenster, Dusche, Garage


Immobilie anfragen


Ihre persönliche Beratung

Badura Immobilien GmbH

Jana Messerle

Badura Immobilien GmbH

H +43 664 3560026