Büro-Ordination Salzburg-Anif
Büro / Praxis
,
5081
Anif
In bester Lage von Anif bei Salzburg befindet sich die villenartige Liegenschaft Dr.-Franz-Burda-Straße 6, die Lage an der Grünzone ist verkehrsfrei und ruhig. Nur wenige Meter vom Ortskern (Gemeindeamt, Friesa¬cher-Betriebe, Bushaltestelle, Bäcker, etc.) entfernt, en¬det die nur von Anrainern befahrene Straße nach etwa 200 m an der weitläufigen Grünzone als Sackgasse. Die Autobahn (Knoten Salzburg-Süd) sowie die Salzbur¬ger Innenstadt sind in wenigen Minuten erreichbar. Anif verfügt über eine umfassende Infrastruktur mit sehr gu¬ten Restaurants, Cafés, Bäcker, Apotheke, Gartencen¬ter, bis hin zu SPAR Express/Turmöl Tankstelle, Lidl und Maxi-Markt.
Beschreibung der Immobilie
Büro-Ordination Salzburg-Anif
Im Erdgeschoss des bereits von weitem sichtbaren Gebäudes befindet sich die angebotene Büro- bzw. Ordinationseinheit mit fünf vorgelagerten dieser zugeordneten Parkplätzen.
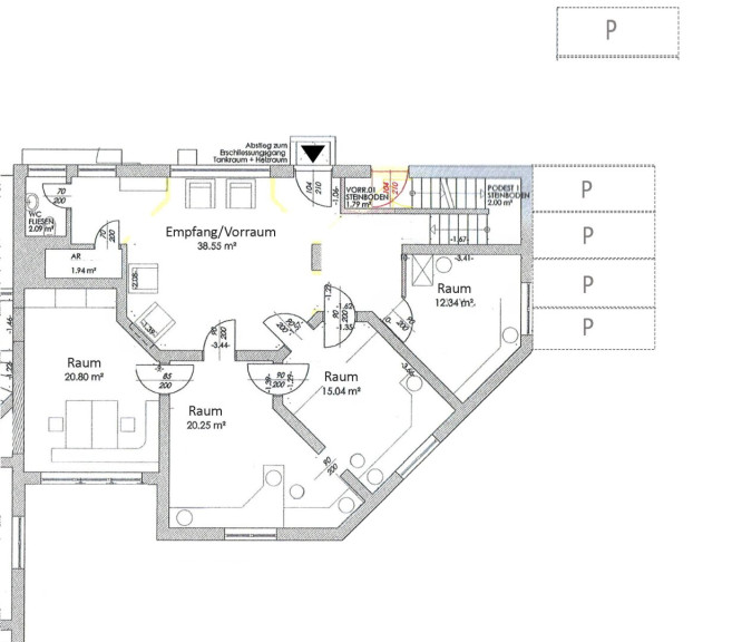
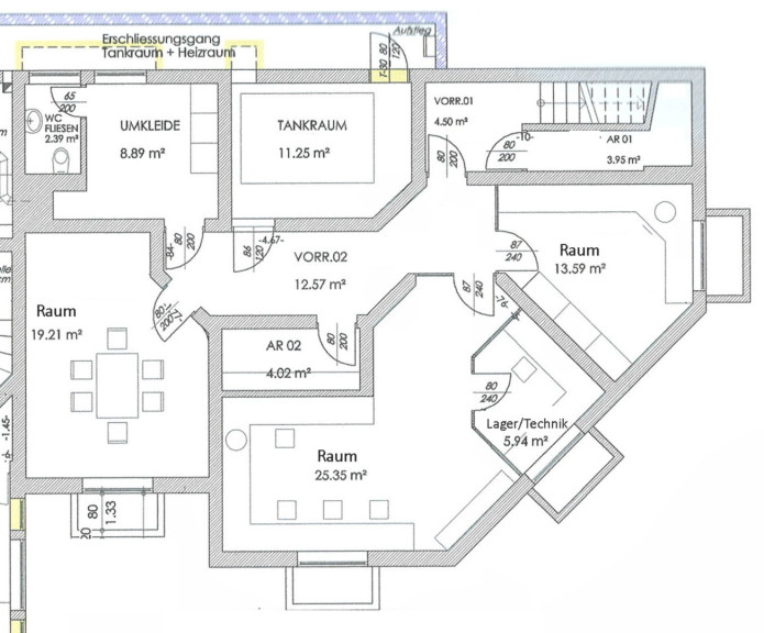
Die Räumlichkeiten im Ausmaß von ca. 210 m² erstrecken sich über zwei (intern verbundene) Ebenen – Hochparterre und Tiefparterre - sie sind nach drei Seiten (NO, SO u. SW) orientiert.
Sie verfügen über gute Raumhöhen und schöne Ausblicke ins Grüne und zum Untersberg. Auch das Tiefparterre verfügt (mit Ausnahme der Nebenräume) über gute Tagesbelichtung. Die Beheizung erfolgt zentral, ebenso verfügen die wesentlichen Räume über neuwertige funkgesteuerte Klimageräte.
Zuletzt waren die Räumlichkeiten als Arztpraxis genutzt und wurden für die Neuvermietung adaptiert. Die Räume verfügen über Holz- und Natursteinböden, in den Neben- u. Abstellräumen über PVC-Belag. Die beiden Ebenen sind auch mit einem Lastenaufzug verbunden, es besteht eine Alarmanlage, der Zugang ist mit Transponder Key sperrbar.
Ein Teil der Einrichtung sowie Einbauten sind noch vorhanden und könnten kostenfrei genützt werden, anderenfalls werden sie auf Wunsch entfernt.
Es ist die einzige gewerbliche Fläche im nur drei Einheiten umfassenden Objekt. Die Liegenschaft wird vom Eigentümer verwaltet und weist somit eine schlanke Kostenstruktur und kurze Entscheidungswege auf. Die Betriebskosten-Akontierung wurde auf Basis eines Bürobetriebes inklusive Energiekosten (Heizung u. Warmwasser) mit EUR 550,- + USt. kalkuliert. Das Objekt ist parifiziert, die Verwaltung und jährliche Abrechnung erfolgt gemäß Wohnungseigentumsgesetz.
Der Vermittler ist als Doppelmakler tätig.
Infrastruktur / Entfernungen
Gesundheit
Arzt <500m
Apotheke <1.000m
Krankenhaus <4.500m
Klinik <4.000m
Kinder & Schulen
Schule <1.000m
Kindergarten <500m
Universität <3.000m
Höhere Schule <3.500m
Nahversorgung
Supermarkt <2.000m
Bäckerei <500m
Einkaufszentrum <4.500m
Sonstige
Bank <500m
Geldautomat <500m
Post <2.500m
Polizei <1.500m
Verkehr
Bus <500m
Autobahnanschluss <1.500m
Bahnhof <2.000m
Flughafen <7.000m
Angaben Entfernung Luftlinie / Quelle: OpenStreetMap
Eckdaten Objektnr. 513/2995
| Art: | Büro / Praxis |
| Land: | Österreich |
| Kaltmiete (netto): | 2.500,00 € |
| Kaltmiete: | 3.050,00 € |
| Provision: | 3 Bruttomonatsmieten zzgl. 20% USt. |
| Betriebskosten: | 550,00 € |
| MwSt Gesamt: | 610,00 € |
| Nutzfläche: | 210,00 m² |
| WC: | 2 |
| Stellplätze: | 5 |
| Heizwärmebedarf: | C 99,00 kWh/m²a |
| fGEE: | C 1,47 |
Ausstattung
Parkplatz
Ihre persönliche Beratung
Dieser Makler ist ein offizielles Mitglied des IR – ir.at Mehr Erfahren
