Charmantes Altbaubüro mit Wintergarten und Terrasse! Mietdauer unbefristet!

Büro / Praxis , 1070 Wien,Neubau , Burggasse


Das Gebäude liegt wenige Meter zur U6 Burggasse Stadthalle, zum Bus 48A und zu den Straßenbahnlinien 5, 6, 18 und 49. Ebenfalls in unmittelbarer Nähe ist die berühmte Lugner City mit allen Geschäften des täglichen Bedarfs und hoher Kundenfrequenz! Parkmöglichkeiten gibt es direkt vor dem Haus.

Beschreibung der Immobilie

Charmantes Altbaubüro mit Wintergarten und Terrasse! Mietdauer unbefristet!

Altbaubüro - 7. Bezirk - Wintergarten - Terrasse - ruhig - repräsentativ - unbefristete Hauptmiete - 5 Räume



Ich freue mich auf Ihren Anruf!

Irene Lindenberger, MSc 01/526 26 36



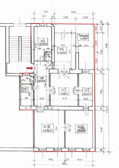
Auf 132 qm präsentiert sich Ihnen hier ein absolut charmantes Altbaubüro im 1. Stock (Lift im Halbstock) nahe der Lugner City. Vom Vorraum aus können Sie die komplett möblierte Küche, den Abstellraum, das Bad mit WC und Badewanne, das separate WC mit Handwaschbecken, den Wintergarten und zwei Räume begehen. Zusätzlich sind noch zwei weitere Räume durch jeweils ein Durchgangszimmer zu betreten. Vom Wintergarten gelangen Sie auf die ruhige Terrasse, welche in den Innenhof gerichtet ist. Die Mietdauer ist unbefristet. 



Die Ausstattung umfasst:
Fliesen, Fischgrätparkett, komplett möblierte Küche, Gasetagenheizung, Wintergarten, Terrasse



Resümee:
Das Büro besticht durch den ausgezeichneten Schnitt, die gute Lage, die Nähe zu den öffentlichen Verkehrsmitteln und dem marktgerechten Mietpreis mit einer unbefristeten Hauptmiete.



Miete inkl. BK derzeit ca. 2.209,16 zzgl. 20 % USt. 



Energieausweis: HWB 84,82 



Ich freue mich auf Ihren Anruf!

Irene Lindenberger, MSc 01/526 26 36


Hinweis gemäß Energieausweisvorlagegesetz: Ein Energieausweis wurde vom Eigentümer bzw. Verkäufer, nach unserer Aufklärung über die generell geltende Vorlagepflicht, sowie Aufforderung zu seiner Erstellung noch nicht vorgelegt. Daher gilt zumindest eine dem Alter und der Art des Gebäudes entsprechende Gesamtenergieeffizienz als vereinbart. Wir übernehmen keinerlei Gewähr oder Haftung für die tatsächliche Energieeffizienz der angebotenen Immobilie.


Wir weisen darauf hin, dass zwischen dem Vermittler und dem zu vermittelnden Dritten ein familiäres oder wirtschaftliches Naheverhältnis besteht.


Der Vermittler ist als Doppelmakler tätig.

Eckdaten Objektnr. 1760/142

Art: Büro / Praxis
Land: Österreich
Baujahr: 1900
Zustand: Gepflegt
Alter: Altbau
Kaltmiete (netto): 1.930,41 €
Kaltmiete: 2.209,16 €
Miete / m²: 14,60 €
Provision: 3 Bruttomonatsmieten zzgl. 20% USt.
Betriebskosten: 278,75 €
Bürofläche: 132,22 m²
Zimmer: 5
Bäder: 1
WC: 2
Terrassen: 1
Immobilie merken Exposé

Ausstattung

Gas, Etagenheizung, Einbauküche, Personenaufzug, Badewanne


Immobilie anfragen


Ihre persönliche Beratung

Lind Immobilien

Irene Lindenberger

Lind Immobilien

T +43 1 526 26 36

H +43 660 824 3952