Historisches Haus im Herzen von Retz mit Garten

Haus - Mehrfamilienhaus, 2070 Retz


Zentrum Retz

Beschreibung der Immobilie

Historisches Haus im Herzen von Retz mit Garten

Inmitten der Retzer Innenstadt gelangt dieses besondere historische Stadthaus zum Verkauf. Die ersten Aufzeichnungen der Liegenschaft reichen bis in das Jahr 1495 zurück. In den darauffolgenden Jahrzehnten und Jahrhunderten wurde das Gebäude laufend adaptiert und erweitert und bietet heute vielfältige Nutzungsmöglichkeiten in geschichtsträchtigem Ambiente.



Ob als Anlageobjekt, zur Kombination aus Wohnen und Arbeiten oder für ein individuelles Nutzungskonzept - diese Liegenschaft überzeugt durch ihren historischen Charakter, ihre großzügigen Flächen und ihren besonderen Bestand.



Eckdaten



  • Ursprünge: ab 1495
  • Grundstücksfläche: 608m²
  • Gesamte Nutzfläche: ca. 385 m²
  • Gartenfläche: ca. 280 m²
  • Gebäude mit Erdgeschoss und Obergeschoss
  • Großer Dachboden vorhanden
  • Großer Weinkeller vorhanden
  • Heizung: Öl
  • Beheizung der Zimmer über Ölöfen
  • Der Zugang zur Liegenschaft erfolgt direkt von der Straße sowie über einen Durchgang, der aufgrund einer grundbücherlich eingetragenen Geh- und Fahrdienstbarkeit auch von einem Nachbarn genutzt werden darf.
  • Parkmöglichkeiten befinden sich direkt vor dem Haus.


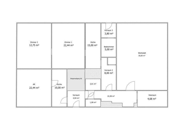
Raumaufteilung



Erdgeschoss:



  • 1 Wohneinheit mit ca. 67 m²
  • weitere Räume sowie Werkstatt
  • restliche Nutzfläche im Erdgeschoss: ca. 174,43 m²


Obergeschoss:



  • 3 Wohneinheiten mit einer gesamten Fläche von ca. 210,88 m²
  • insgesamt 4 WC
  • insgesamt 2 Badezimmer


Zusätzlich vorhanden:



  • großer Dachboden
  • Garten mit ca. 280 m²
  • Abgang zum großen Weinkeller am Ende des Gartens


Die genaue Raumaufteilung im Erd- und Obergeschoss entnehmen Sie bitte den beigefügten Plänen.



Highlights



  • Historische Liegenschaft mit Ursprüngen bis ins Jahr 1495
  • Zentrale Lage in der Retzer Innenstadt
  • Ca. 385 m² gesamte Nutzfläche
  • Mehrere Wohneinheiten mit vielseitigem Nutzungspotenzial
  • Zusätzliche Räume und Werkstatt im Erdgeschoss
  • Großer Dachboden mit weiterem Potenzial
  • Ca. 280 m² Gartenfläche
  • Großer Weinkeller mit Zugang über den Garten


Lage & Anbindung:



Das Haus befindet sich in Retz im nördlichen Weinviertel, einer Region, die für ihre Weinkultur und hohe Lebensqualität bekannt ist. Die Wohnlage ist ruhig und dennoch gut angebunden. Der Bahnhof Retz bietet direkte Zugverbindungen in Richtung Wien und zu regionalen Zentren. Einkaufsmöglichkeiten wie Billa und Hofer sind in kurzer Distanz erreichbar, weitere Infrastruktur findet sich im Stadtzentrum von Retz. Die Umgebung eignet sich bestens für Spaziergänge, Radtouren und Ausflüge in die umliegenden Weingärten.



Infrastruktur:



  • Nahversorgung: Billa und Hofer in der Nähe, weitere Geschäfte, Banken und Dienstleistungen im Stadtzentrum Retz
  • Bildung: Kindergarten, Volksschule sowie weiterführende Schulen in Retz vorhanden
  • Verkehrsanbindung: Bahnhof Retz mit Zugverbindungen nach Wien und in das regionale Umland; gute Anbindung mit dem Auto Richtung Hollabrunn und Wien
  • Gastronomie: Vielfältige Gastronomie, traditionelle Gasthäuser, Heurige und Vinotheken im Stadtgebiet und in den umliegenden Weindörfern


Preise & Details:



Kaufpreis: EUR 260.000,-

Provision: 3 % des Kaufpreises zzgl. USt.



Kontaktieren Sie uns gerne für weitere Informationen oder einen Besichtigungstermin. Wir freuen uns auf Ihre Anfrage!

Eckdaten Objektnr. 6891/318

Art: Haus - Mehrfamilienhaus
Land: Österreich
Baujahr: 1495
Zustand: Gepflegt
Kaufpreis: 260.000,00
Provision: 3% des Kaufpreises zzgl. 20% USt.
Wohnfläche: 278,00 m²
Nutzfläche: 385,31 m²
Grundstücksfl.: 608,00 m²
Zimmer: 11
Bäder: 2
WC: 4
Garten: 280,00 m²
Immobilie merken Exposé

Ausstattung

Öl


Immobilie anfragen


Ihre persönliche Beratung

ullrich-immo GmbH

Alexander Ullrich

ullrich-immo GmbH

T +43 664 242 20 62

H 0664 2422062