Riesiges Doppelhaus im beliebten Biedermannsdorf! Baubeginn erfolgt noch dieses Quartal!

Haus - Doppelhaushälfte, 2362 Biedermannsdorf


Beschreibung der Immobilie

Riesiges Doppelhaus im beliebten Biedermannsdorf! Baubeginn erfolgt noch dieses Quartal!

Die Kurzinformationen für eilige Leser:




  • Erstbezug in erstklassiger Gegend



  • Sehr hochwertige Ausführung



  • Eigengarten, Terrasse und viele weitere Extras



  • 2 PKW-Stellplätze je Einheit



  • Gut konzipierte Räumlichkeiten



  • Ziegel-Mauerwerk



  • Belagsfertiger Zustand



  • Wohnfläche mit großzügigen 222,21 m²



  • Außenflächen: 146,25 m² (Vorplatz, Garten)



  • Terrassen & Balkone: ca. 48,04 m²



  • Optional schlüsselfertiger Zustand möglich



  • PV- & Klimavorbereitung



  • Modernste Technik (Wärmepumpe, Fußbodenheizung, 3-fach verglaste Fenster aus Österreich)









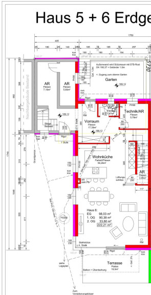
Die ausführliche Beschreibung – Haus 6:



Haus 6 (Doppelhaus) befindet sich am Ende des Projektes. Über die gemeinsame Zufahrt gelangen Sie zu den 2 Stellplätzen der Einheit.



Eine großzügige Eingangstüre führt in den Eingangsbereich des Hauses, 2 Abstellräume die ausreichend Platz für Garderobe und Winterkleidung bieten begrüßen. Rechterhand geht es in den Vorraum der Liegenschaft, linkerhand befindet sich ein WC und geradeaus ein Technikraum. Ein Abstellraum unter den Treppen rundet das großzügige Angebot ab. 



Die großzügige Wohnküche mit ca. 56,26 m² lädt dazu ein, mit Familie und Freunden ausgiebige Feste zu feiern.



Im 1. Obergeschoss angekommen, führt ein zentraler Gang zu:




  • 3 Schlafzimmern



  • Badezimmer



  • sowie 1 Balkon



  • des weiteren befindet sich bei diesem Objekt ein separates Zimmer über dem Eingangsbereich.




Im 2. Obergeschoss befindet sich der exklusive Masterbereich mit:




  • Großem Schlafzimmer



  • Schrankraum



  • Separatem Badezimmer



  • Eigener Terrasse









Projektüberblick:



Haus 1: Gesamtwohnfläche: 180,63 m²




  • EG: 71,98 m² Wohnfläche; Terrasse 16,5 m²; Garten, Vorplatz und Gewässer: 344,65 m²



  • 1.OG: 70,43 m² Wohnfläche; Balkon 1: 5,32 m²; Balkon 2: 4,92 m²



  • 2.OG: 38,22 m² Wohnfläche; Terrasse 8,33 m²




Aufteilung Haus 1:
EG: Vorraum, WC, Technik/Abstellraum, Abstellraum unter Treppe, Wohnküche mit Speis, Terrasse

1.OG: Gang, 3 Schlafzimmer, 2 Balkone, Badezimmer

2.OG: Gang, Zimmer mit Schrankraum, Badezimmer, Terrasse








Haus 2: Gesamtwohnfläche: 188,02 m²




  • EG: 76,59 m² Wohnfläche; Terrasse 16,5 m²; Garten, Vorplatz und Gewässer: 234,38 m²



  • 1.OG: 74,62 m² Wohnfläche; Balkon: 5,74 m²



  • 2.OG: 36,81 m²; Terrasse 11,74 m²




Aufteilung Haus 2:
EG: Vorraum, WC, Technik/Abstellraum, Abstellraum unter Treppe, Wohnküche mit Speis, Terrasse

1.OG: Gang, 3 Schlafzimmer, 1 Balkon, Badezimmer

2.OG: Gang, Zimmer mit Schrankraum, Badezimmer, Terrasse








Haus 3: Gesamtwohnfläche: 186,31 m²




  • EG: 76,51 m² Wohnfläche; Terrasse 15 m²; Garten, Vorplatz und Gewässer: 290,78 m²



  • 1.OG: 70,67 m² Wohnfläche; Balkon: 11,4 m²



  • 2.OG: 39,13 m²; Terrasse 16,91 m²




Aufteilung Haus 3:
EG: Vorraum, WC, Technik/Abstellraum, Wohnküche mit Speis, Terrasse

1.OG: Gang, 3 Schlafzimmer, 1 Balkon, Badezimmer, Hauswirtschaftsraum

2.OG: Gang, Zimmer mit Schrankraum, Badezimmer, Terrasse








Haus 4: Gesamtwohnfläche: 182,78 m²




  • EG: 75,84 m² Wohnfläche; Terrasse 15 m²; Garten & Vorplatz: 297,50 m²



  • 1.OG: 70,09 m² Wohnfläche; Balkon: 11,46 m²



  • 2.OG: 36,85 m²; Terrasse 21,13 m²




Aufteilung Haus 4:
EG: Vorraum, WC, Technik/Abstellraum, Wohnküche mit Speis, Terrasse

1.OG: Gang, 3 Schlafzimmer, 1 Balkon, Badezimmer, Hauswirtschaftsraum

2.OG: Gang, Zimmer mit Schrankraum, Badezimmer, Terrasse








Haus 5: Gesamtwohnfläche: 184,55 m²




  • EG: 77,71 m² Wohnfläche; Terrasse 18 m²; Garten & Vorplatz: 145,27 m²



  • 1.OG: 73,04 m² Wohnfläche; Balkon: 9,8 m²



  • 2.OG: 33,8 m²; Terrasse 20,24 m²




Aufteilung Haus 5:
EG: Vorraum mit Garderobennische, WC, Technik/Abstellraum, Abstellraum unter Treppe, Wohnküche, Terrasse

1.OG: Gang, 3 Schlafzimmer, 1 Balkon, Badezimmer

2.OG: Gang, Zimmer mit Schrankraum, Badezimmer, Terrasse








Haus 6: Gesamtwohnfläche: 222,21 m²




  • EG: 98,03 m² Wohnfläche; Terrasse 18 m²; Garten & Vorplatz: 102,04 m²



  • 1.OG: 90,38 m² Wohnfläche; Balkon: 9,8 m²



  • 2.OG: 33,8 m²; Terrasse 20,24 m²




Aufteilung Haus 6:
EG: Vorraum mit Garderobennische, 2 Abstellräume, WC, Technik/Abstellraum, Abstellraum unter Treppe, Wohnküche, Terrasse

1.OG: Gang, 3 Schlafzimmer, 1 Balkon, Badezimmer

2.OG: Gang, Zimmer mit Schrankraum, Badezimmer, Terrasse








Belagsfertiger Zustand:



Die Häuser werden belagsfertig übergeben – die ideale Mitte zwischen Rohbau und schlüsselfertig.



Folgende Arbeiten sind noch durchzuführen:




  • Wände streichen



  • Boden- und Fliesenverlegung



  • Innentüren



  • Terrassen- und Balkonbeläge




👉 Perfekt für alle, die ihre Immobilie individuell gestalten möchten.

Ein schlüsselfertiges Paket kann optional angeboten werden.








Exposé und Unterlagen:



Bei Anfrage erhalten Sie ein detailliertes Lageexposé sowie sämtliche relevanten Unterlagen wie:




  • Baubeschreibung



  • Pläne



  • Projektunterlagen









Baubeginn und Fertigstellung:




  • Baubeginn: Q2 2026









Haftungserklärung:



Irrtum und Änderungen vorbehalten!

Visualisierungen können von der tatsächlichen Ausführung abweichen.

Das dargestellte Mobiliar ist nicht Bestandteil des Kaufpreises.








🏫 Bildungseinrichtungen



  • Kindergärten: In Biedermannsdorf gibt es einen Kindergarten, der fußläufig erreichbar ist.
  • Volksschule: Auch die Volksschule ist gut zu Fuß erreichbar.
  • Mittelschule Mödling: Bietet ein umfassendes Bildungsangebot und ist ca. 10 Autominuten entfernt.



🏥 Gesundheitsversorgung



  • Praktische Ärzte: Direkt in Biedermannsdorf und bieten eine medizinische Grundversorgung.
  • Fachärzte und Zahnärzte: In Biedermannsdorf und auch den umliegenden Gemeinden.
  • Landesklinikum Mödling: Mit dem Auto in 10 Minuten erreichbar.
  • Landesklinikum Baden: Mit dem Auto in 17 Minuten erreichbar.



🛍️ Nahversorgung



In Biedermannsdorf gibt es eine sehr gute Nahversorgung und auch in der angrenzenden Gemeinde Wiener Neudorf, die mit dem Auto oder dem Fahrrad in wenigen Minuten erreichbar ist, ist eine umfassende Nahversorgung gegeben:



  • BILLA: Filiale in der Siegfried Marcus-Straße 18, Biedermannsdorf. 
  • HOFER: Filiale in der Siegfried Marcus-Straße 13, Biedermannsdorf. 
  • Filialen von Penny und Lidl in Wiener Neudorf. 


Diese Geschäfte bieten eine umfassende Nahversorgung und sind sowohl mit dem Auto als auch mit öffentlichen Verkehrsmitteln gut erreichbar.




🚍 Öffentlicher Verkehr



Busverbindungen:



  • Linie 200: Verbindet Biedermannsdorf mit Wien Hauptbahnhof und weiteren Haltestellen in der Umgebung und fährt bis Eisenstadt.
  • Linie 215: Verbindet Biedermannsdorf mit dem Bahnhof Mödling und weiteren Haltestellen in der Umgebung.


Aktuelle Fahrpläne und Verbindungen sind über den Verkehrsverbund Ost-Region (VOR) abrufbar: www.vor.at



Bahnverbindungen:



Der barrierefrei angelegte, gut beschilderte Bahnhof Mödling ist in ca. 10 Minuten mit dem Auto erreichbar und lässt seine Fahrgäste mit bestmöglichem Komfort auf die nächsten Anschlüsse warten. Dies wird durch eine Bäckerei sowie eine Trafik unterstützt, ebenso befindet sich eine WC-Anlage und ein im Winter beheizter Warteraum vor Ort. Durch die modernen Informationsmonitore sind die Reisegäste immer bestmöglich über die Ankunfts- und Abfahrtszeiten im Bilde.



Die durch und durch strukturierte Anlage des Aufnahmegebäudes erlaubt aufgrund mehrerer Zugänge kurze Wege zu allen weiteren Verbindungen. Die großzügig angelegte Park & Ride Anlage bietet Platz für rund 900 Fahrzeuge, der Bike & Ride Bereich erfasst über 680 Fahrräder.



Die Haltestelle Mödling befindet sich auf der Strecke der Südbahn. Auf den 4 Bahnsteigen verkehren des Weiteren Züge der Schnellbahnlinien S2, S3 und S4, ebenso sind durch 2 Busbahnhöfe Anschlüsse an Buslinien in den gesamten Bezirk sowie nach Siebenhirten und Liesing gegeben. Dadurch ist auch die Shopping City Süd mittels Busverkehr angeschlossen.




🚗 Auto-Anbindung:



  • Die Wiener Stadtgrenze ist in ca. 15 Minuten erreichbar.
  • Anschluss an die B11, die A2 und L154 sorgt für gute regionale und überregionale Anbindung.



🌳 Besonderheiten & Freizeit



In Biedermannsdorf gibt es viele Möglichkeiten zur Freizeitgestaltung. Sei es ihm Rahmen der Gemeindeeinrichtungen wie Badeteich, Klosterbad oder Jubiläumshallen oder auch mit den verschiedenen Angeboten der Vereine.





Wichtig



Unter bestimmten Voraussetzungen (Anmeldung als Hauptwohnsitz, dringendes Wohnbedürfnis), kommen Sie jetzt in den Genuss der Gebührenbefreiung von der Grundbucheintragungsgebühr (1,1%) und der Eintragungsgebühr des Pfandrechts (1,2%)!





SIE SIND NOCH UNSCHLÜSSIG, OB IHRE FINANZIERUNG GESICHERT IST?



Ihre Hausbank benötigt im Normalfall 4-6 Wochen, um Ihnen mitzuteilen, ob Ihr Kredit bewilligt wird, oder nicht. Unser Finanzierungspartner sagt Ihnen nicht nur anhand Ihrer Unterlagen in kürzester Zeit, ob die Finanzierung klappen wird, er sorgt auch für den besten und günstigsten Wohnkredit, da er Zugang zu den besten Angeboten aller relevanten Banken hat.


Wir weisen darauf hin, dass zwischen dem Vermittler und dem zu vermittelnden Dritten ein familiäres oder wirtschaftliches Naheverhältnis besteht.


Der Vermittler ist als Doppelmakler tätig.

Infrastruktur / Entfernungen

Gesundheit
Arzt <500m
Apotheke <2.000m
Klinik <4.000m
Krankenhaus <3.500m

Kinder & Schulen
Kindergarten <1.000m
Schule <1.000m
Universität <9.000m
Höhere Schule <4.000m

Nahversorgung
Supermarkt <1.000m
Bäckerei <1.000m
Einkaufszentrum <1.500m

Sonstige
Bank <1.000m
Geldautomat <1.000m
Post <1.000m
Polizei <1.500m

Verkehr
Bus <500m
U-Bahn <5.500m
Bahnhof <2.000m
Straßenbahn <5.000m
Autobahnanschluss <500m

Angaben Entfernung Luftlinie / Quelle: OpenStreetMap

Eckdaten Objektnr. 6547/4221

Art: Haus - Doppelhaushälfte
Land: Österreich
Zustand: Erstbezug
Kaufpreis: 799.000,00
Provision: 3% des Kaufpreises zzgl. 20% USt.
Wohnfläche: 222,21 m²
Zimmer: 6,50
Balkone: 1
Terrassen: 2
Garten: 146,25 m²
Heizwärmebedarf:  B  27,80 kWh/m²a
fGEE:  A++  0,54
Immobilie merken Exposé

Immobilie anfragen


Ihre persönliche Beratung

TRUE Immobilien GmbH & Co KG

Markus Dassler

CPS Immobilien Sezgin e.U.

H +43 664 7505 17 72