Hervorragend aufgeteilte, helle 1-Zimmerwohnung nahe Servitenviertel

Wohnung , 1090 Wien,Alsergrund


Öffentliche Verkehrsmittel: Franz Josefs Bahnhof U4 Roßauer Lände: ca. 6 bis 8 Gehminuten U2 / U4 Schottenring: ca. 10 Minuten zu Fuß Straßenbahn D, Station Schlickgasse: ca. 3 bis 4 Gehminuten Straßenbahn 1 / 31, Börse bzw. Schottenring: ca. 8 bis 10 Minuten Sehr gute Anbindung Richtung Innenstadt, Universität Wien, AKH Nahversorger: Billa / Spar / Hofer im Umfeld Servitengasse, Porzellangasse und Roßauer Lände mehrere Bäckereien, Apotheken, Drogerien zahlreiche Cafés und Restaurants im direkten Umfeld Post, Bankomat und kleinere Fachgeschäfte fußläufig

Beschreibung der Immobilie

Hervorragend aufgeteilte, helle 1-Zimmerwohnung nahe Servitenviertel

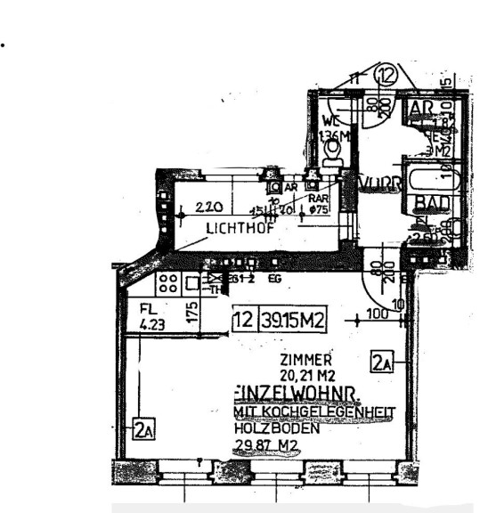
Single Wohnung in der Badgasse im 9. Bezirk nähe Liechtensteinpark, Donaukanal, AKH. In der sehr gut aufgeteilten 1-Zimmerwohnung befindet sich alles was Sie brauchen, und das beste: im gleichen Haus werden gleich zwei Wohnungen(top12 und top19) mit ähnlichem Grundriss vermietet.



Die Raumaufteilung ist wie folgt:



  • Vorraum
  • geräumiger Wohn- und Schlafbereich 
  • vollausgestattete Küche (verbaut in einer Nische)
  • Badezimmer mit Wanne
  • top12: Toilette separat
  • top19: Toilette im Badezimmer
  • Abstellraum mit Waschmaschine


Die top12 ist im 2. Liftstock, die top19 im 3. Liftstock! Gerne können wir bei einer Besichtigung beide Wohnungen anschauen. 



top12: Gesamtmiete inkl. BK 797,17 €, Wohnungsgröße 41,54m²



top19: Gesamtmiete inkl. BK 725,40 €, Wohnungsgröße 37,80m²



Bezugstermin 01.05.2026, Befristet für 5 Jahre.



Der Vermieter benötigt folgende Unterlagen: Kopie des Reisepasses, Einkommensnachweis (der letzten 3 Monate) und/oder Bürgschaft.


Wir weisen darauf hin, dass zwischen dem Vermittler und dem zu vermittelnden Dritten ein familiäres oder wirtschaftliches Naheverhältnis besteht.


Der Immobilienmakler erklärt, dass er – entgegen dem in der Immobilienwirtschaft üblichen Geschäftsgebrauch des Doppelmaklers – einseitig nur für den Vermieter tätig ist.

Infrastruktur / Entfernungen

Gesundheit
Arzt <500m
Apotheke <500m
Klinik <500m
Krankenhaus <1.500m

Kinder & Schulen
Schule <500m
Kindergarten <500m
Universität <500m
Höhere Schule <1.000m

Nahversorgung
Supermarkt <500m
Bäckerei <500m
Einkaufszentrum <2.000m

Sonstige
Geldautomat <500m
Bank <500m
Post <500m
Polizei <500m

Verkehr
Bus <500m
U-Bahn <500m
Straßenbahn <500m
Bahnhof <500m
Autobahnanschluss <1.500m

Angaben Entfernung Luftlinie / Quelle: OpenStreetMap

Eckdaten Objektnr. 955

Art: Wohnung
Land: Österreich
Zustand: Gepflegt
Alter: Altbau
Gesamtmiete: 725,40
Kaltmiete (netto): 529,20 €
Kaltmiete: 659,45 €
Provision: Gemäß Erstauftraggeberprinzip bezahlt der Abgeber die Provision.
Betriebskosten: 130,25 €
MwSt Gesamt: 65,95 €
Wohnfläche: 37,80 m²
Zimmer: 1
Bäder: 1
WC: 1
Heizwärmebedarf:  D  95,10 kWh/m²a
fGEE:  D  1,88
Immobilie merken Exposé

Ausstattung

Parkett, Gas, Personenaufzug, Badewanne


Immobilie anfragen


Ihre persönliche Beratung

IMMOROHR Immobilien GmbH

Viola Dollinger

Immorohr Immobilien Ges.m.b.H

T +43 664 889 859 43

H +43 664 889 859 43