Einzigartiges Loft in der historischen Brotfabrik Wien!

Büro / Praxis , 1100 Wien


Brotfabrik Wien, Hauptbahnhof Wien

Beschreibung der Immobilie

Einzigartiges Loft in der historischen Brotfabrik Wien!

In einem hochwertig und vor kurzem komplett sanierten Haus in der Brotfabrik Wien gelangt ein Loft zur Vermietung!



In der Brotfabrik Wien wurde den sogenannten „creative industries“ ein ganzer Loft-Stadtteil zur Verfügung gestellt. Es gibt Ateliers, Galerien, Büros, Gastronomie und Veranstaltungsräume. Zu den Eigentümern und Mietern zählen zahlreiche namhafte Agenturen, Künstler, Galerien, Privatschulen und Büros im Kreativbereich.



Das Loft bieten vielseitige Verwendungsmöglichkeiten. Unter anderem können die Räumlichkeiten als repräsentativen Firmensitz mit modernen Loft - Büroflächen, Veranstaltungs- oder Schulungsräume, Atelier- und Ausstellungsräume, Foto- Musik- oder Filmstudios, Tanzschule etc. verwenden. Erreichbar ist das Loft barrierefrei über mehrere Zugänge.



Das Loft hat 2 mögliche Eingänge und ist somit äußert flexibel nutzbar. Es ist mit 2 Aufzügen barrierefrei zugänglich. Ausserdem gibt es 3 Stiegenhäuser.



Die auf den Fotos teilweise abgebildeten Gegenstände/Möbel sind nicht in der Miete inkludiert.



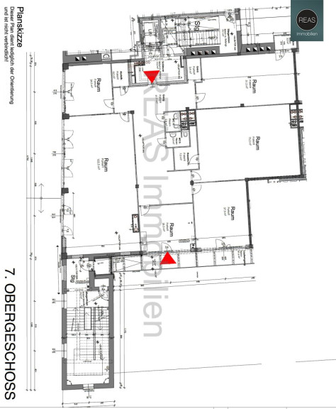
Raumaufteilung:



  • 1 Vorraum/Entrée/Garderobe
  • 1 WC Damen mit WC und Waschbecken
  • 1 WC Herren mit WC und Waschbecken
  • 1 Abstellraum
  • 1 Haustechnikraum/Abstellraum
  • 5 Zimmer/Räume
  • 1 Zimmer/Raum inkl. Küchenanschluss
  • 1 Balkon


PKW Stellplätze nach Verfügbarkeit. Die Konditionen hierfür sind noch zu besprechen.



Miete



Miete Netto € 14,-/m2 zzgl. BK zzgl. 20% Ust / Monat

Miete Netto € 5.611,20 zzgl. BK Netto € 633,10 = Netto Gesamt € 6.244,30 zzgl. 20% Ust. € 1.248,86 = Brutto Gesamt € 7.493,16 / Monat



Betriebskosten exkl. Heizung/Kaltwasser/Strom/Internet/TV



Betriebskosten-Heizung derzeit Netto € 419,33 zzgl. 20% Ust € 83,87 = Brutto € 503,20 / Monat

Betriebskosten-Kaltwasser derzeit Netto € 42,21 zzgl. 20% Ust. € 8,44 = Brutto € 50,65 / Monat

Strom/Internet/TV extra



Nahversorgung



Sämtliche Geschäfte des täglichen Bedarfs in der näheren Umgebung. Diverse Gastronomien direkt in der Brotfabrik Wien.



Öffentliche Verkehrsmittel in unmittelbarer Umgebung



Straßenbahn: 6 & D, ca. 5 Min. zu Fuss

U-Bahn: U1 Reumannplatz - ca. 10 Min. zu Fuss oder 2 Stationen mit der Straßenbahn 6, U3 Enkplatz - 3 Stationen mit der Straßenbahn 6

Hauptbahnhof Wien: 3 Stationen mit der Straßenbahn D



Befristete Vermietung: Dauer noch zu besprechen

Kaution: Höhe noch zu besprechen



Gerne stehen wir für Rückfragen oder Besichtigungen zur Verfügung.



Wir ersuchen Sie, bereits in Ihrer Anfrage Ihre vollständigen Kontaktdaten (Adresse, Mail, Telefon) anzugeben, damit wir Ihre Anfrage rascher bearbeiten können. Aufgrund der Nachweispflicht gegenüber dem Abgeber sind wir verpflichtet, vor Bekanntgabe der Adresse diese Daten aufzunehmen und ersuchen um Ihr Verständnis.



Der guten Ordnung halber halten wir fest, dass, sofern im Angebot nicht anders vermerkt, bei erfolgreichem Vertragsabschluss eine Provision anfällt, die den in der Immobilienmaklerverordnung BGBI. 262 und 297/1996 festgelegten Provisionssätzen entspricht. Diese Provisionspflicht besteht auch dann, wenn Sie die Ihnen überlassenen Informationen an Dritte weitergeben.



Einzelne Bilder oder Visualisierungen in den Vermarktungsunterlagen, Exposés oder Inseraten wurden unter Umständen digital, teilweise auch mithilfe von künstlicher Intelligenz (KI), bearbeitet und dienen ausschließlich der Veranschaulichung. Sie können vom tatsächlichen Zustand, der Ausstattung oder Ausführung der Immobilien abweichen. Verbindlich sind ausschließlich die Angaben im Kauf-/Mietangebot sowie bei Besichtigung vor Ort.



Sämtliche Ihnen hiermit übermittelte Angaben wurden uns, seitens des Abgebers bekannt gegeben. Eine Garantie auf Richtigkeit und Vollständigkeit können wir nicht übernehmen.



 

Noch nichts gefunden? Wir informieren Sie über geeignete Immobilienangebote noch vor allen anderen.
Legen Sie jetzt Ihren individuellen Suchagenten unter folgendem Link an. Wir schicken Ihnen passende Immobilien exklusiv vorab zu.

Suchagent anlegen - https://reas-realitaeten-asmus.service.immo/registrieren/de


Hinweis gemäß Energieausweisvorlagegesetz: Ein Energieausweis wurde vom Eigentümer bzw. Verkäufer, nach unserer Aufklärung über die generell geltende Vorlagepflicht, sowie Aufforderung zu seiner Erstellung noch nicht vorgelegt. Daher gilt zumindest eine dem Alter und der Art des Gebäudes entsprechende Gesamtenergieeffizienz als vereinbart. Wir übernehmen keinerlei Gewähr oder Haftung für die tatsächliche Energieeffizienz der angebotenen Immobilie.


Wir weisen darauf hin, dass zwischen dem Vermittler und dem zu vermittelnden Dritten ein familiäres oder wirtschaftliches Naheverhältnis besteht.


Der Vermittler ist als Doppelmakler tätig.

Infrastruktur / Entfernungen

Gesundheit
Arzt <1.000m
Apotheke <500m
Klinik <1.000m
Krankenhaus <3.000m

Kinder & Schulen
Schule <500m
Kindergarten <500m
Universität <500m
Höhere Schule <2.500m

Nahversorgung
Supermarkt <500m
Bäckerei <500m
Einkaufszentrum <2.000m

Sonstige
Geldautomat <500m
Bank <500m
Post <500m
Polizei <1.500m

Verkehr
Bus <500m
U-Bahn <1.000m
Straßenbahn <500m
Bahnhof <1.000m
Autobahnanschluss <500m

Angaben Entfernung Luftlinie / Quelle: OpenStreetMap

Verfügbare Flächen

Stiege/Bauteil


Stockwerk
Top
Art
Fläche
Terrasse
Nettomiete/m²
BK/m²

1. Etage
-
Büro / Praxis
297,30 m2
-
-

1. Etage
-
Büro / Praxis
176,15 m2
-
-

4. Etage
-
Büro / Praxis
171,10 m2
-
-

4. Etage
-
Büro / Praxis
150,37 m2
-
-

2. Etage
-
Büro / Praxis
404,80 m2
-
-

1. Etage
-
Büro / Praxis
271,05 m2
-
-

2. Etage
-
Büro / Praxis
142,37 m2
-
-

4. Etage
-
Büro / Praxis
321,47 m2
-
-

4. Etage
-
Büro / Praxis
150,37 m2
-
-

4. Etage
-
Büro / Praxis
150,37 m2
-
-

2. Etage
-
Büro / Praxis
131,00 m2
-
-

2. Etage
-
Büro / Praxis
142,37 m2
-
-

7. Etage
-
Büro / Praxis
400,80 m2
-
-

-
-
Büro / Praxis
134,00 m2
-
-

7. Etage
-
Büro / Praxis
400,80 m2
-
-

-
-
Büro / Praxis
134,00 m2
-
-

verfügbare flächen

Stiege/Bauteil

Stockwerk
Top
Art
Fläche
Teilbar ab
Terrasse
Nettomiete/m2 von-bis
BK/m2
1. Etage
-
Büro / Praxis
297,30 m2
-
-
-
-
Stockwerk
Top
Art
Fläche
Teilbar ab
Terrasse
Nettomiete/m2 von-bis
BK/m2
1. Etage
-
Büro / Praxis
176,15 m2
-
-
-
-
Stockwerk
Top
Art
Fläche
Teilbar ab
Terrasse
Nettomiete/m2 von-bis
BK/m2
4. Etage
-
Büro / Praxis
171,10 m2
-
-
-
-
Stockwerk
Top
Art
Fläche
Teilbar ab
Terrasse
Nettomiete/m2 von-bis
BK/m2
4. Etage
-
Büro / Praxis
150,37 m2
-
-
-
-
Stockwerk
Top
Art
Fläche
Teilbar ab
Terrasse
Nettomiete/m2 von-bis
BK/m2
2. Etage
-
Büro / Praxis
404,80 m2
-
-
-
-
Stockwerk
Top
Art
Fläche
Teilbar ab
Terrasse
Nettomiete/m2 von-bis
BK/m2
1. Etage
-
Büro / Praxis
271,05 m2
-
-
-
-
Stockwerk
Top
Art
Fläche
Teilbar ab
Terrasse
Nettomiete/m2 von-bis
BK/m2
2. Etage
-
Büro / Praxis
142,37 m2
-
-
-
-
Stockwerk
Top
Art
Fläche
Teilbar ab
Terrasse
Nettomiete/m2 von-bis
BK/m2
4. Etage
-
Büro / Praxis
321,47 m2
-
-
-
-
Stockwerk
Top
Art
Fläche
Teilbar ab
Terrasse
Nettomiete/m2 von-bis
BK/m2
4. Etage
-
Büro / Praxis
150,37 m2
-
-
-
-
Stockwerk
Top
Art
Fläche
Teilbar ab
Terrasse
Nettomiete/m2 von-bis
BK/m2
4. Etage
-
Büro / Praxis
150,37 m2
-
-
-
-
Stockwerk
Top
Art
Fläche
Teilbar ab
Terrasse
Nettomiete/m2 von-bis
BK/m2
2. Etage
-
Büro / Praxis
131,00 m2
-
-
-
-
Stockwerk
Top
Art
Fläche
Teilbar ab
Terrasse
Nettomiete/m2 von-bis
BK/m2
2. Etage
-
Büro / Praxis
142,37 m2
-
-
-
-
Stockwerk
Top
Art
Fläche
Teilbar ab
Terrasse
Nettomiete/m2 von-bis
BK/m2
7. Etage
-
Büro / Praxis
400,80 m2
-
-
-
-
Stockwerk
Top
Art
Fläche
Teilbar ab
Terrasse
Nettomiete/m2 von-bis
BK/m2
-
-
Büro / Praxis
134,00 m2
-
-
-
-
Stockwerk
Top
Art
Fläche
Teilbar ab
Terrasse
Nettomiete/m2 von-bis
BK/m2
7. Etage
-
Büro / Praxis
400,80 m2
-
-
-
-
Stockwerk
Top
Art
Fläche
Teilbar ab
Terrasse
Nettomiete/m2 von-bis
BK/m2
-
-
Büro / Praxis
134,00 m2
-
-
-
-

Eckdaten Objektnr. 4136

Art: Büro / Praxis
Land: Österreich
Alter: Altbau
Kaltmiete (netto): 14,00 €
Kaltmiete: 14,00 €
Miete / m²: 18,33 €
Provision: 3 Bruttomonatsmieten zzgl. 20% USt.
Nutzfläche: 400,80 m²
Bürofläche: 400,80 m²
Zimmer: 6
WC: 2
Balkone: 1
Stellplätze: 1
Immobilie merken Exposé

Ausstattung

Estrichboden, Fußbodenheizung, Personenaufzug, Westbalkon, Parkplatz, Kantine/Cafeteria


Immobilie anfragen


Ihre persönliche Beratung

REAS Realitäten Asmus GmbH

REAS Immobilien

REAS Realitäten Asmus GmbH

T +43 664 24 77 08 7