Stilvolles Altbaubüro in bester Innenstadtlage - Wollzeile 1010 Wien

Büro / Praxis , 1010 Wien


Lage: Zentrale Adresse in der Wollzeile, im Herzen der Wiener Innenstadt Nur wenige Gehminuten zum Stadtpark – ideale Möglichkeit für kurze Pausen im Grünen Perfekte Anbindung über Wien Mitte (U3, U4, S-Bahn, CAT) Nähe Rotenturmstraße und Stephansplatz mit vielfältiger Infrastruktur und Gastronomie in unmittelbarer Umgebung

Beschreibung der Immobilie

Stilvolles Altbaubüro in bester Innenstadtlage - Wollzeile 1010 Wien

Sehr geehrte Damen und Herren,



in ausgezeichneter Lage der Wollzeile gelangt dieses gepflegte Büro zur Vermietung, das durch eine durchdachte Raumaufteilung sowie den klassischen Altbaucharakter überzeugt.



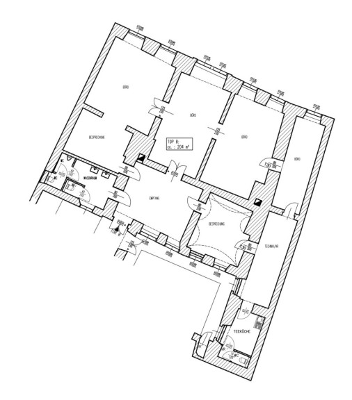
Die Fläche gliedert sich in einen einladenden Empfangsbereich, vier gut nutzbare Büroräume, zwei separate Besprechungszimmer, einen Serverraum, eine Teeküche sowie getrennte Sanitäranlagen.



Besonders hervorzuheben sind die repräsentative Adresse, die hochwertigen Parkettböden sowie der charmante Altbauflair. Der Zugang erfolgt über einen Laubengang, zudem ist die Einheit barrierefrei erreichbar.



Aufteilung:



  • Empfangsbereich
  • 4 Bürozimmer
  • 2 Besprechungsräume
  • Serverraum
  • Teeküche
  • Getrennte Sanitäranlagen


Ausstattung & Merkmale:



  • Zentrale, repräsentative Lage
  • Klassischer Altbau mit hochwertigen Parkettböden
  • Zugang über Laubengang
  • Barrierefreier Zugang


Kostenübersicht:



  • Miete netto: € 3.680,46
  • Miete brutto (inkl. BK und Ust): € 5.020,15
  • Betriebskosten netto: € 2,46 / m²

     


Kontaktieren Sie uns jederzeit für nähere Informationen oder einen Besichtigungstermin!


Ich freue mich auf Ihre Nachricht!


Wir weisen darauf hin, dass zwischen dem Vermittler und dem zu vermittelnden Dritten ein familiäres oder wirtschaftliches Naheverhältnis besteht.


Der Vermittler ist als Doppelmakler tätig.

Infrastruktur / Entfernungen

Gesundheit
Arzt <500m
Apotheke <500m
Klinik <500m
Krankenhaus <1.000m

Kinder & Schulen
Schule <500m
Kindergarten <1.000m
Universität <500m
Höhere Schule <500m

Nahversorgung
Supermarkt <500m
Bäckerei <500m
Einkaufszentrum <1.000m

Sonstige
Geldautomat <500m
Bank <500m
Post <500m
Polizei <500m

Verkehr
Bus <500m
U-Bahn <500m
Straßenbahn <500m
Bahnhof <500m
Autobahnanschluss <3.500m

Angaben Entfernung Luftlinie / Quelle: OpenStreetMap

Eckdaten Objektnr. 271545513

Art: Büro / Praxis
Land: Österreich
Kaltmiete (netto): 3.680,47 €
Kaltmiete: 4.183,46 €
Betriebskosten: 502,99 €
MwSt Gesamt: 836,69 €
Nutzfläche: 204,47 m²
Heizwärmebedarf:  D  147,80 kWh/m²a
fGEE:  F  3,68
Immobilie merken Exposé

Ausstattung

Fliesen, Parkett, Gas, Etagenheizung, Personenaufzug, Teeküche


Immobilie anfragen


Ihre persönliche Beratung

Immobiliaris GmbH

Lea Leichtfried

Immobiliaris GmbH

T +43 664 1607111