Ruhig gelegene, moderne 3-Zimmer-Maisonettewohnung mit Loggia & Terrasse in Favoriten

Wohnung - Maisonette, 1100 Wien


Troststraße / Neilreichgasse / Graffgasse / Fernkorngasse / Zohmanngasse

Beschreibung der Immobilie

Ruhig gelegene, moderne 3-Zimmer-Maisonettewohnung mit Loggia & Terrasse in Favoriten

Ruhig gelegene, moderne 3-Zimmer-Maisonettewohnung mit Loggia & Terrasse in Favoriten



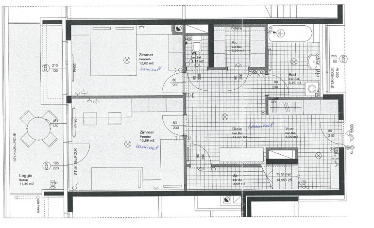
Zum Verkauf gelangt eine helle und großzügige 3-Zimmer-Maisonettewohnung, die sich über zwei Ebenen erstreckt und eine Gesamtnutzfläche von ca. 130 m² aufweist.

Der Wohnungseingang befindet sich im 5. Liftstock eines im Jahr 2002 errichteten Wohnhauses in der Graffgasse, nahe Neilreichgasse und Troststraße.



Raumaufteilung

Ebene 1:




  • Großzügiges Vorzimmer (ca. 20 m²)



  • Schlafzimmer (15,88 m²) mit Zugang zur 11,30 m² großen Loggia



  • Kinder- oder Arbeitszimmer (12,02 m²)



  • Badezimmer mit Dusche und Waschmaschinenanschluss



  • Separate Toilette



  • Abstellraum




Ebene 2:




  • Wohnküche (ca. … m²) mit direktem Zugang zur 12,90 m² großen Terrasse




🔧 Die Errichtung eines dritten Schlafzimmers ist möglich.



Ausstattung & Highlights




  • Sehr helle und großzügige Raumgestaltung



  • Beheizung mittels Fernwärme



  • Hochwertige Parkettböden in den Wohnräumen



  • Maßgefertigte Einbauschränke verbleiben in der Wohnung



  • Loggia und Terrasse mit angenehmer Ruhelage




Kaufpreis & laufende Kosten

💰 Kaufpreis: € 559.000,–

💶 Betriebskosten inkl. Reparaturrücklage und USt: € 398,18

📄 Provision: 3 % des Kaufpreises zzgl. 20 % USt



Lage & Infrastruktur



Die Lage überzeugt durch eine sehr gute Infrastruktur. Geschäfte des täglichen Bedarfs, Ärzte, Schulen und Kindergärten befinden sich in fußläufiger Entfernung.

Eine ausgezeichnete öffentliche Verkehrsanbindung ist ebenfalls gegeben.



Öffentliche Verkehrsmittel:
🚋 11, O

🚌 15A, 65A



Förderung seit 1. April 2024



📌 Bei Anmeldung des Hauptwohnsitzes besteht eine Förderung der Bundesregierung in Form der Ersparnis der Grundbuchseintragungsgebühr (1,1 %) sowie der Pfandrechtseintragungsgebühr (1,2 %) – insgesamt 2,3 % des Kaufpreises.



Interesse geweckt?



Für weitere Informationen oder einen unverbindlichen Besichtigungstermin freuen wir uns über Ihre Kontaktaufnahme!



📞 0699 / 17 1059 18

📧 uyar@immobilienquartier.at

Infrastruktur / Entfernungen

Gesundheit
Arzt <500m
Apotheke <500m
Klinik <1.000m
Krankenhaus <1.000m

Kinder & Schulen
Schule <500m
Kindergarten <500m
Universität <1.000m
Höhere Schule <2.000m

Nahversorgung
Supermarkt <500m
Bäckerei <500m
Einkaufszentrum <2.000m

Sonstige
Geldautomat <500m
Bank <500m
Post <500m
Polizei <500m

Verkehr
Bus <500m
U-Bahn <1.500m
Straßenbahn <500m
Bahnhof <1.500m
Autobahnanschluss <2.000m

Angaben Entfernung Luftlinie / Quelle: OpenStreetMap

Eckdaten Objektnr. 5552

Art: Wohnung - Maisonette
Land: Österreich
Baujahr: 2002
Zustand: Teil_vollrenoviert
Möbliert: Teil
Alter: Neubau
Kaufpreis: 559.000,00
Provision: 3% des Kaufpreises zzgl. 20% USt.
Betriebskosten: 211,94 €
MwSt Gesamt: 23,21 €
Wohnfläche: 119,65 m²
Nutzfläche: 139,50 m²
Zimmer: 3
Bäder: 1
WC: 1
Terrassen: 1
Keller: 4,55 m²
Heizwärmebedarf:  B  45,10 kWh/m²a
fGEE:  C  1,15
Immobilie merken Exposé

Ausstattung

Parkett, Fliesen, Fernwärme, Wohnküche / offene Küche, Einbauküche, Personenaufzug, Ostbalkon, Westbalkon, Bad mit Fenster, Dusche, Wasch/Trockenraum


Immobilie anfragen


Ihre persönliche Beratung

Immobilienquartier

Ömer Uyar

immobilienquartier IQ OG

T +43699 17105918

H +43699 171 059 18