**Moderne Wohnung in Eggenburg mit Einbauküche, Aufzug & Glasfaser**

Wohnung - Etage, 3730 Eggenburg


Die mittelalterliche Stadt Eggenburg präsentiert sich malerisch eingebettet in die reizvolle Landschaft des Wald- und Weinviertels. Besonders beeindruckend ist die hervorragend erhaltene Stadtmauer – ein herausragendes Zeugnis mittelalterlicher Baukunst. Ein Spaziergang durch die charmanten Gassen und entlang der idyllischen Wege des Glacis lädt dazu ein, Geschichte hautnah zu erleben und zugleich Ruhe und Inspiration zu finden. Dank zahlreicher öffentlicher Einrichtungen, wie Schulen, Pflegeeinrichtungen und weiteren Institutionen, sowie der günstigen Lage nahe Wien, verzeichnet Eggenburg seit Jahren ein stetiges Bevölkerungswachstum und eine positive wirtschaftliche Entwicklung. Die zentrale Lage innerhalb der Stadt, gepaart mit einer ausgezeichneten Infrastruktur, darunter Bildungseinrichtungen, ein Pflegezentrum und vielfältige Betriebe, macht Eggenburg zu einem Ort mit hoher Lebensqualität. Der gut ausgebaute Anschluss an das öffentliche Verkehrsnetz, insbesondere durch die Franz-Josefs-Bahn, ermöglicht eine bequeme Pendelverbindung nach Wien und unterstreicht die Attraktivität des Standorts.

Beschreibung der Immobilie

**Moderne Wohnung in Eggenburg mit Einbauküche, Aufzug & Glasfaser**

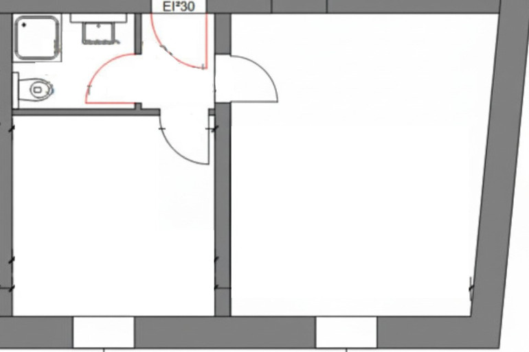
Diese charmante 2-Zimmer-Wohnung überzeugt durch ihre durchdachte Raumaufteilung. In der Wohnung erwarten Sie eine moderne Wohnküche mit bereits eingebauter Küchenzeile inklusive Geräten, ein nettes Schlafzimmer sowie Badezimmer mit Dusche und WC. Darüber hinaus stehen ein Allgemeinflächen wie ein Fahrradraum und ein Kinderwagenraum zur Verfügung. Ein Kellerabteil ist der Wohnung zugewiesen.





Im Überblick:



  • Wohnküche mit eingebauter Küchenzeile inkl. Geräte
  • Schlafzimmer
  • Badezimmer mit WC
  • Kellerabteil
  • Allgemeinflächen: Fahrradraum, Kinderwagenraum
  • Aufzug




In der Gesamtbelastung von 595 Euro sind die Betriebskosten, Heizkosten und das Warmwasser enthalten.



Die Wohnung ist nicht möbliert, die Möbel auf den Fotos dienen als Einrichtungsbeispiel. Die Küchenzeile inkl. Geräte sind bereits eingebaut.

Noch nichts gefunden? Wir informieren Sie über geeignete Immobilienangebote noch vor allen anderen.
Legen Sie jetzt Ihren individuellen Suchagenten unter folgendem Link an. Wir schicken Ihnen passende Immobilien exklusiv vorab zu.

Suchagent anlegen - https://levanto.service.immo/registrieren/de


Wir weisen darauf hin, dass zwischen dem Vermittler und dem zu vermittelnden Dritten ein wirtschaftliches Naheverhältnis mit gesellschaftlicher Verflechtung besteht.


Der Immobilienmakler erklärt, dass er – entgegen dem in der Immobilienwirtschaft üblichen Geschäftsgebrauch des Doppelmaklers – einseitig nur für den Vermieter tätig ist.

Infrastruktur / Entfernungen

Gesundheit
Arzt <8.000m
Apotheke <500m
Klinik <1.000m

Kinder & Schulen
Kindergarten <7.500m
Schule <7.500m
Höhere Schule <7.000m

Nahversorgung
Supermarkt <500m
Bäckerei <500m

Sonstige
Bank <500m
Geldautomat <500m
Post <500m
Polizei <1.500m

Verkehr
Bus <500m
Bahnhof <500m

Angaben Entfernung Luftlinie / Quelle: OpenStreetMap

Eckdaten Objektnr. 2189/94

Art: Wohnung - Etage
Land: Österreich
Gesamtmiete: 595,00
Kaltmiete (netto): 490,12 €
Kaltmiete: 554,33 €
Provision: Gemäß Erstauftraggeberprinzip bezahlt der Abgeber die Provision.
Betriebskosten: 64,21 €
Heizkosten: 28,54 €
MwSt Gesamt: 12,13 €
Wohnfläche: 40,00 m²
Zimmer: 2
Bäder: 1
Heizwärmebedarf:  D  108,00 kWh/m²a
fGEE:  D  1,83
Immobilie merken Exposé

Ausstattung

Laminatboden, Fliesen, Zentralheizung, Einbauküche, Personenaufzug, Dusche, Kabel/Satelliten-TV


Immobilie anfragen


Ihre persönliche Beratung

Levanto Immobilien GmbH & Co KG

Florian Enner

Levanto Immobilien GmbH & Co KG

T +43 676 552 47 52

H +43 676 552 47 52