Luxusvilla nahe Wien – 406 m² Wohnfläche | Share Deal möglich | Pool | Wellness | Aufzug | Weinbergblick

Haus - Villa, 2202 Königsbrunn im Weinviertel


Wohnen im Grünen. Und dennoch in unmittelbarer Nähe zu Wien. Diese Villa vereint internationale Architektur, private Resort-Atmosphäre und perfekte Anbindung – ein Domizil für Menschen, die das Besondere suchen.

Beschreibung der Immobilie

Luxusvilla nahe Wien – 406 m² Wohnfläche | Share Deal möglich | Pool | Wellness | Aufzug | Weinbergblick

Es gibt Häuser.

Und es gibt Orte, die Lebensgefühl neu definieren.



In privilegierter Lage im idyllischen Weinviertel, nur wenige Minuten von Wien entfernt, erwartet Sie eine außergewöhnliche Designvilla mit rund 406 m² Wohnfläche auf einem 962 m² großen Grundstück – eingebettet in eine Landschaft aus Weinbergen und Weitblick.



Raum für Größe. Raum für Leben.



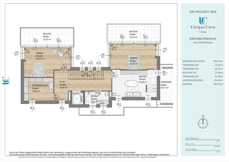
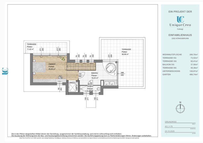
Sechs luxuriöse Schlafzimmer,

sechs elegante Badezimmer,

sechs WCs,

sowie ein offen inszenierter Wohn- und Essbereich schaffen ein Ambiente von Großzügigkeit und Selbstverständlichkeit.



Großflächige Glasfronten holen die Natur ins Haus und lassen Innen- und Außenraum miteinander verschmelzen. Architektur, Licht und hochwertige Materialien bilden eine harmonische Einheit aus Modernität und zeitloser Eleganz.




Ein Außenbereich wie ein privates Resort



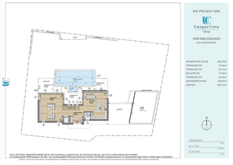
Der beheizte Pool mit integrierter Liegezone wird zum Mittelpunkt sommerlicher Tage.

Die stilvolle Outdoor-Küche lädt zu langen Abenden mit Gästen ein.

Mehrere großzügige Terrassen eröffnen einen atemberaubenden Blick über die Weinberge bis nach Wien.



Hier genießen Sie Privatsphäre, Ruhe und Exklusivität auf höchstem Niveau.




Wellness. Rückzug. Vollkommene Entspannung.



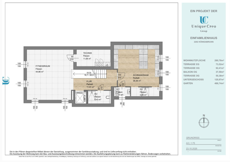
Im Untergeschoss erwartet Sie Ihr persönlicher Spa-Bereich mit:




  • Fitnessraum



  • Sauna Vorbereitung 



  • Dampfbad Vorbereitung




Ein Ort, an dem Körper und Geist zur Ruhe kommen.



Der integrierte Personenaufzug verbindet alle Ebenen komfortabel und barrierefrei – ein Detail, das den Anspruch dieser Immobilie unterstreicht.


Wir weisen darauf hin, dass zwischen dem Vermittler und dem zu vermittelnden Dritten ein familiäres oder wirtschaftliches Naheverhältnis besteht.


Der Vermittler ist als Doppelmakler tätig.

Infrastruktur / Entfernungen

Gesundheit
Arzt <2.000m
Apotheke <4.500m
Krankenhaus <5.500m
Klinik <9.000m

Kinder & Schulen
Schule <2.000m
Kindergarten <1.000m
Universität <7.000m

Nahversorgung
Supermarkt <2.000m
Bäckerei <4.500m
Einkaufszentrum <4.500m

Sonstige
Bank <2.000m
Geldautomat <2.000m
Post <2.000m
Polizei <2.000m

Verkehr
Bus <500m
Straßenbahn <6.000m
Bahnhof <3.500m
Autobahnanschluss <2.500m
U-Bahn <9.000m

Angaben Entfernung Luftlinie / Quelle: OpenStreetMap

Eckdaten Objektnr. 2019/83

Art: Haus - Villa
Land: Österreich
Baujahr: 2026
Zustand: Erstbezug
Alter: Neubau
Kaufpreis: 2.290.000,00
Provision: 3% des Kaufpreises zzgl. 20% USt.
Wohnfläche: 406,00 m²
Grundstücksfl.: 962,00 m²
Zimmer: 6,50
Bäder: 6
WC: 6
Terrassen: 6
Stellplätze: 4
Heizwärmebedarf:  B  37,00 kWh/m²a
fGEE:  A  0,83
Immobilie merken Exposé

Ausstattung

Parkett, Fliesen, Fußbodenheizung, Einbauküche, Wohnküche / offene Küche, Personenaufzug, Dusche, Bad mit Fenster, Badewanne, Garage, Parkplatz, Parkplatz(Duplex), Swimmingpool


Immobilie anfragen


Ihre persönliche Beratung

UNIQUE CREO RESIDENTIAL KNPB GMBH

Patric Prudky

UNIQUE CREO RESIDENTIAL KNPB GMBH

T +43 664 18 70 100