YOLO Backstein Hofhaus für Individualisten

Haus , 1060 Wien


Beschreibung der Immobilie

YOLO Backstein Hofhaus für Individualisten

Einmalige Gelegenheit für Individualisten zum selber gestalten - Kombination Wohnen und Büro möglich - Umbaubewilligung vorhanden



Weitere Innformationen gerne unter +43 676 933 16 91



Backsteingebäude zum Sanieren und Ausbauen in ruhiger Innenhoflage eines schönen Jugendstil-Gründerzeithauses zuzüglich großzügiger Freiflächen (Dachgarten und Hofterrasse)



Lichtdurchfluteter und individueller Umbau möglich mit Bewilligung zum Umbau - Lüftwärmepumpe mit Fußbodenheizung möglich



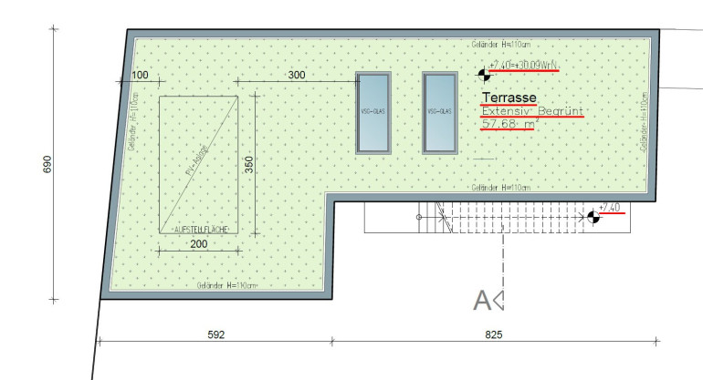
Hofhaus: Erdgeschoß, Obgergeschoß, Dachgarten, EG-Terrasse (oder Gartenterrasse möglich)



Raumhöhe nach Umbau Hofhaus 2,88m im EG und 3,66m im OG



Zum selber ausbauen oder Umbauten und Adaptierungsmaßnahmen nach Ihren Wünschen/Anforderungen verkäuferseitig gerne möglich



5 min Gehdistanz zu den U-Bahnstationen Pilgramgasse oder Margaretengürtel



Vielfältige Nutzungsoptionen möglich



Weitere Informationen gerne unter 0676 933 16 91



aktuelle Nutzfläche ca. 118m² und bei innenliegender Dämmung Wohnnutzfläche ca. 100m²  (Energieklasse nach Ausbau gemäß Einreichplanung B/A+)



Nebenkosten bei Kaufverträgen:



  • Grunderwerbsteuer : 3, 5%
  • Grundbuchseintragungsgebühr : 1, 1%
  • Vermittlungsprovision: Bitte beachten Sie, dass bei erfolgreicher Vermittlung mit Rechtswirksamkeit des zu vermittelnden Geschäfts eine Provision laut Immobilienmaklerverordnung i.H.v. 3% zzgl. 20% USt. des Kaufpreises zu leisten ist.
  • Kosten der Vertragserrichtung und grundbücherlichen Durchführung nach Vereinbarung im Rahmen der Tarifordnung des jeweiligen Urkundenerrichters sowie Barauslagen für Beglaubigungen und Stempelgebühren


Alle Informationen, insbesondere jene hinsichtlich des Energieausweises beruhen auf den Auskünften und Unterlagen des Eigentümers. Wir haben weder die Richtigkeit oder Vollständigkeit der Angaben noch die tatsächliche Gesamtenergieeffizienz überprüft und übernehmen hierfür keine Gewähr. Wir weisen darauf hin, dass zum Auftraggeber ein wirtschaftliches Naheverhältnis besteht. Unsere Angebote sind freibleibend und unverbindlich. Zwischenverkauf, -vermietung oder -verpachtung durch den zu vermittelnden Dritten sind vorbehalten. Der Vermittler ist als Doppelmakler tätig.

Infrastruktur / Entfernungen

Gesundheit
Arzt <500m
Apotheke <500m
Klinik <500m
Krankenhaus <500m

Kinder & Schulen
Schule <500m
Kindergarten <500m
Universität <1.500m
Höhere Schule <1.000m

Nahversorgung
Supermarkt <500m
Bäckerei <500m
Einkaufszentrum <1.000m

Sonstige
Geldautomat <500m
Bank <500m
Post <500m
Polizei <1.000m

Verkehr
Bus <500m
U-Bahn <500m
Straßenbahn <1.000m
Bahnhof <500m
Autobahnanschluss <4.000m

Angaben Entfernung Luftlinie / Quelle: OpenStreetMap

Eckdaten Objektnr. 8200/282

Art: Haus
Land: Österreich
Alter: Altbau
Kaufpreis: 650.000,00
Provision: 3% des Kaufpreises zzgl. 20% USt.
Wohnfläche: 100,00 m²
Nutzfläche: 100,00 m²
Zimmer: 3
Bäder: 1
WC: 2
Terrassen: 1
Garten: 57,68 m²
Immobilie merken Exposé

Immobilie anfragen


Ihre persönliche Beratung

ZEBEH GmbH

ZEBEH GmbH

T +43 676 9331691

H 0676 933 16 91