Provisionsfrei: Unbefristeter 104m² Stilaltbau mit Einbauküche - 1090 Wien

Wohnung , 1090 Wien


Friedensbrücke

Beschreibung der Immobilie

Provisionsfrei: Unbefristeter 104m² Stilaltbau mit Einbauküche - 1090 Wien

Unbefristeter 104m² Stilaltbau Nähe U4 Friedensbrücke und Donaukanal-Promenade!



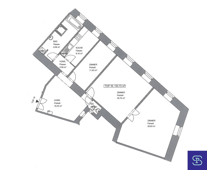
Diese schöne Wohnung befindet sich im 3. Liftstock eines renovierten Stilaltbaus an der Spittelauer Lände. Die Wohnung ist überwiegend westseitig zur Rückseite in die Gussenbauergasse ausgerichtet (eine begrünte Seitengasse) und besteht aus 2 gr. Zimmern, 1 kl. Zimmer, Küche, großem Vorraum, Badezimmer und WC,. 



Achtung: Die Wohnung ist aufgrund der Raumaufteilung nicht WG-tauglich! Bitte unbedingt Plan und Fotos beachten!



Ausstattung: Renovierter Altbau mit Gasetagenheizung, Einbauküche mit Geräten, Fischgrät-Parkettboden, Fliesenbad mit Badewanne und Dusche, WM-Anschluss, Flügeltüren, Lift, Kabel-TV und Internet Vorbereitung, Sprechanlage, Fahrradraum,.



Großzügige und sonnige Altbauwohnung in zentrumsnaher Lage mit guter Infrastruktur und öffentlicher Verkehrsanbindung durch U4-Friedensbrücke und den Straßenbahnlinien 12, 5, 31, 33 und D in Gehdistanz. Ebenfalls direkt vor dem Haus befindet sich die Donaukanal-Promenade, die zu Spaziergängen, zum Radfahren und zu sportlichen Aktivitäten einlädt. 



Die Wohnung wird ab sofort in unbefristeter Hauptmiete vermietet.

Gesamtmiete inkl. Bk, Lift und 10% USt. € 1.909,95
(HMZ € 1.454,09 + IM € 50,- + Bk € 214,72 + Lift € 16,60 + 10% USt. € 173,54 + Manip. € 1,-)

Kaution € 5.730,-



KONTAKT: Anfragen bitte nur per Email-Anfragefunktion! Keine telefonische Terminvergabe!



Besuchen Sie für unsere weiteren Angebote bitte auch unsere Homepage: www.sitarz.at



Wichtige Information: Es handelt sich hier um ein unverbindliches und für Wohnungssuchende völlig kostenfreies Angebot! Wir bedanken uns für Ihre Anfrage, weisen jedoch darauf hin, dass durch Ihre Anfrage kein Anspruch auf eine Dienstleistung durch unser Unternehmen besteht. Wir ersuchen ausdrücklich um Verständnis, dass wir aufgrund überbordender Anfragen für Mietwohnungen nur dann antworten können, wenn für das angefragte Mietobjekt noch freie Besichtigungstermine verfügbar sind. Erhalten Sie keine Antwort, stehen für das angefragte Mietobjekt keine Besichtigungsmöglichkeiten mehr zur Verfügung, oder es liegen bereits ausreichend viele verbindliche Bewerbungen vor.  



Optional zur kostenlosen Variante, haben Wohnungssuchende gemäß aktuell geltender Gesetzesbestimmung (Bestellerprinzip) auch die Möglichkeit, ein Maklerunternehmen kostenpflichtig (2MM zuzügl. 20% Ust.) mit der Objektsuche zu beauftragen, um in Folge eine zu bezahlende, individuelle Dienstleistung zu erhalten, sofern vom Immobilienmakler ein den Suchkriterien entsprechendes Mietobjekt gefunden wird.


Wir weisen darauf hin, dass zwischen dem Vermittler und dem zu vermittelnden Dritten ein familiäres oder wirtschaftliches Naheverhältnis besteht.


Der Immobilienmakler erklärt, dass er – entgegen dem in der Immobilienwirtschaft üblichen Geschäftsgebrauch des Doppelmaklers – einseitig nur für den Vermieter tätig ist.

Infrastruktur / Entfernungen

Gesundheit
Arzt <500m
Apotheke <500m
Klinik <500m
Krankenhaus <1.500m

Kinder & Schulen
Schule <500m
Kindergarten <500m
Universität <500m
Höhere Schule <1.000m

Nahversorgung
Supermarkt <500m
Bäckerei <500m
Einkaufszentrum <2.000m

Sonstige
Geldautomat <500m
Bank <500m
Post <500m
Polizei <500m

Verkehr
Bus <500m
U-Bahn <500m
Straßenbahn <500m
Bahnhof <500m
Autobahnanschluss <1.500m

Angaben Entfernung Luftlinie / Quelle: OpenStreetMap

Eckdaten Objektnr. 7791

Art: Wohnung
Land: Österreich
Baujahr: 1910
Zustand: Teil_vollrenoviert
Alter: Altbau
Gesamtmiete: 1.909,95
Kaltmiete (netto): 1.504,09 €
Kaltmiete: 1.736,41 €
Provision: Gemäß Erstauftraggeberprinzip bezahlt der Abgeber die Provision.
Betriebskosten: 214,72 €
MwSt Gesamt: 173,54 €
Wohnfläche: 104,00 m²
Zimmer: 3
Bäder: 1
WC: 1
Keller: 2,50 m²
Heizwärmebedarf:  C  67,00 kWh/m²a
fGEE:  C  1,43
Immobilie merken Exposé

Ausstattung

Fliesen, Parkett, Gas, Etagenheizung, Einbauküche, Personenaufzug, Bad mit Fenster, Badewanne, Dusche, Kabel/Satelliten-TV


Immobilie anfragen


Ihre persönliche Beratung

Sitarz & Partner Immobilien GmbH

Anna Sitarz

Sitarz & Partner Immobilien GmbH

T +43 664 403 83 83