RAUM - KOMFORT - VISION! Charmantes 4-Zimmer-Einfamilienhaus in Klein-Meiseldorf

Haus - Einfamilienhaus, 3744 Klein-Meiseldorf


Dieses charmante Einfamilienhaus in 3744 Klein-Meiseldorf, Niederösterreich, besticht durch seine ruhige Lage in einer idyllischen Umgebung. Einkaufsmöglichkeiten wie ein Supermarkt sind bequem erreichbar, ebenso wie öffentliche Verkehrsmittel mit nahegelegener Bushaltestelle. Ideal für Familien, die ländliche Ruhe mit guter Anbindung suchen.

Beschreibung der Immobilie

RAUM - KOMFORT - VISION! Charmantes 4-Zimmer-Einfamilienhaus in Klein-Meiseldorf

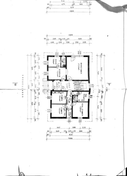
Willkommen in Ihrem neuen Zuhause in Klein-Meiseldorf, Niederösterreich! Dieses Einfamilienhaus aus dem Baujahr 1981 bietet eine solide Grundlage und viel Potenzial zur individuellen Gestaltung. Auf rund 115 m² Wohnfläche stehen Ihnen mehrere helle Räume zur Verfügung, die sich ideal für Familien oder Paare eignen.



Eckdaten im Überblick:



4 Zimmer

ca. 115 m² Wohnfläche

Öl-Heizung & Allesbrenner (gekoppelt)

Warmwasserspeicher (200 Liter) im Keller

Fenster, Fassade & Aluminium-Gartenzaun (erneuert 2013)

Glasfaseranschluss vorhanden



Das Haus überzeugt durch seine funktionale Raumaufteilung und bietet eine gute Basis für modernes Wohnen. Gleichzeitig besteht die Möglichkeit, die Immobilie durch gezielte Renovierungs- und Modernisierungsmaßnahmen auf den aktuellen Stand zu bringen und nach eigenen Vorstellungen zu gestalten. Die vorhandene Kombination aus Ölofen und Allesbrenner sorgt für flexible Heizmöglichkeiten – beim Betrieb des Allesbrenners schaltet sich der Ölofen automatisch ab. Die Lage in Klein-Meiseldorf bietet ruhiges Wohnen in angenehmer Umgebung und eignet sich ideal für alle, die sich ein Eigenheim mit Entwicklungspotenzial wünschen.



Dieses Einfamilienhaus verbindet eine solide Substanz mit vielfältigen Möglichkeiten – überzeugen Sie sich selbst und verwirklichen Sie hier Ihr persönliches Wohnprojekt! Vereinbaren Sie noch heute einen Besichtigungstermin unter folgenden Kontaktdaten: Daniel Robin Schmidt +436765553920 oder schmidt@immobilien-sablatnig.at


Wir weisen darauf hin, dass zwischen dem Vermittler und dem zu vermittelnden Dritten ein familiäres oder wirtschaftliches Naheverhältnis besteht.


Der Vermittler ist als Doppelmakler tätig.

Infrastruktur / Entfernungen

Gesundheit
Arzt <6.500m
Klinik <6.000m
Apotheke <6.000m
Krankenhaus <6.500m

Kinder & Schulen
Schule <2.500m
Kindergarten <2.500m
Höhere Schule <2.500m

Nahversorgung
Supermarkt <500m
Bäckerei <6.000m
Einkaufszentrum <8.500m

Sonstige
Bank <2.500m
Geldautomat <2.500m
Post <2.500m
Polizei <6.000m

Verkehr
Bus <500m
Bahnhof <2.500m

Angaben Entfernung Luftlinie / Quelle: OpenStreetMap

Eckdaten Objektnr. 1757/465

Art: Haus - Einfamilienhaus
Land: Österreich
Baujahr: 1981
Zustand: Gepflegt
Alter: Neubau
Kaufpreis: 249.000,00
Betriebskosten: 250,00 €
Wohnfläche: 115,00 m²
Grundstücksfl.: 845,00 m²
Zimmer: 4
Bäder: 2
WC: 1
Balkone: 1
Keller: 115,00 m²
Heizwärmebedarf:  E  154,90 kWh/m²a
fGEE:  C  1,67
Immobilie merken Exposé

Ausstattung

Fliesen, Parkett, Öl, Etagenheizung, Einbauküche, Bad mit Fenster, Badewanne


Immobilie anfragen


Ihre persönliche Beratung

Immobilien Sablatnig

Daniel Robin Schmidt

Immobilien Sablatnig

T +43676 555 39 20