Großer Sonnenbalkon - Kernsaniertes Schmuckstück - Top Altbau - U3 Nähe

Wohnung , 1140 Wien


Nähe U3 Johnstraße

Beschreibung der Immobilie

Großer Sonnenbalkon - Kernsaniertes Schmuckstück - Top Altbau - U3 Nähe

Stilvolle Altbauwohnung mit Fußbodenheizung, südseitigem Balkon und Blick in den ruhigen Innenhof



Diese außergewöhnlich schöne Altbauwohnung vereint klassisches Flair mit modernem Wohnkomfort. 2016 wurde das gesamte Haus umfassend generalsaniert – inklusive Dachgeschoßausbau, Lifteinbau sowie moderner Hauszentralheizung mit Fußbodenheizung, Vollwärmeschutz. Dabei entstand ein wahres Schmuckstück: eine lichtdurchflutete Wohnung mit hohen Räumen, edlem Eichenparkett und einem besonderen Wohlfühlcharakter.



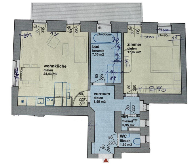
Wohnung:



Die Wohnung begeistert durch ihre großzügige Raumaufteilung und hochwertige Ausstattung. Zwei helle, große Zimmer öffnen sich zum ruhigen Innenhof und bieten Zugang zu einem sonnigen, südseitigen Balkon mit rund 17 m².

Ein luxuriöses Badezimmer mit Wanne, Dusche und Fenster, eine stilvolle, voll ausgestattete Einbauküche sowie durchdachte Stauraumlösungen runden das Angebot perfekt ab.



Highlights dieses Altbautraums:




  • Einzigartige Atmosphäre: Hohe Räume (ca. 3,40 m), elegante, bodentiefe Fenster und moderne Türen



  • Ruhige Innenhoflage: Alle Räume zum Hof ausgerichtet, kein direkter Nachbar, Blick auf einen schönen Götterbaum



  • Südseitiger Balkon (17 m²): Sonne und Ruhe – ideal zum Entspannen



  • Hochwertige Ausstattung: Fußbodenheizung, edler Eichenparkett, luxuriöses Bad mit Wanne, Dusche und Fenster



  • Durchdachte Raumaufteilung: Ausgang auf den Balkon aus beiden Wohnräumen, Einbauschrank im Schlafzimmer, Abstellraum, großzügiges Vorzimmer



  • Gepflegtes Haus: Stilvolles Entrée, dekoriertes Stiegenhaus, moderner Lift




Haus



Das Haus mit nur 15 Wohneinheiten wurde 2016 vollständig saniert. Ein geräumiger Personenlift verbindet alle Etagen. Die Beheizung erfolgt zentral über eine Gas-Fußbodenheizung.



Lage & Umgebung



Die Wohnung liegt in einem besonders lebenswerten Grätzl nahe dem Meiselmarkt und der Hütteldorfer Straße. Zahlreiche Einkaufsmöglichkeiten, charmante Lokale, Schulen und Kindergärten befinden sich in unmittelbarer Nähe.

Die U3-Station Johnstraße sowie Straßenbahnen sorgen für eine schnelle Anbindung in die Innenstadt. Auch Parkplätze sind in der grünen Allee vor dem Haus gut verfügbar.

In wenigen Minuten erreicht man den Schönbrunner Schlosspark – ideal für Freizeit und Erholung.




Vereinbaren Sie noch heute Ihren unverbindlichen Besichtigungstermin um sich einen persönlichen Eindruck von dieser schönen Wohnung zu machen.


Für weitere Informationen zu diesem Objekt und/oder zur Vereinbarung eines Besichtigungstermins kontaktieren Sie bitte

Herrn Peter Köhler unter 0699 - 1581 6228  oder per Email an pk@engelreal.at


Bitte besuchen Sie engelreal.at um sich einen Überblick über uns und unsere weiteren Angebote zu verschaffen.



Courtagepassus:



Dieses Angebot ist unverbindlich und freibleibend. Alle Angaben sind ohne Gewähr und basieren ausschließlich auf Informationen, die uns vom Auftraggeber übermittelt wurden. Wir übernehmen keine Gewähr für die Vollständigkeit, Richtigkeit und Aktualität dieser Angaben. Irrtum und Zwischenverkauf vorbehalten. Die Nebenkosten, wie Grunderwerbssteuer, Vertragserrichtungskosten, Notar- und Grundbuchkosten sind vom Käufer zu tragen. Der Maklervertrag kommt durch schriftliche Vereinbarung oder Inanspruchnahme unserer Maklertätigkeit zustande. Die Courtage in Höhe von 3% des Gesamtkaufpreises zzgl. gesetzl. USt. ist ausschließlich bei Zustandekommen eines gültigen Rechtsgeschäftes fällig und vom Käufer an die Firma engelreal immobilien gmbh zu bezahlen.



Provision: 3% des Kaufpreises zzgl. 20% USt.

Vertragserrichtungskosten: nach Vereinbarung

Grundbucheintragungsgebühr: 3,5%

Grunderwerbsteuer: 1,1%

Infrastruktur / Entfernungen

Gesundheit
Arzt <500m
Apotheke <500m
Klinik <1.000m
Krankenhaus <2.000m

Kinder & Schulen
Schule <500m
Kindergarten <500m
Universität <1.000m
Höhere Schule <1.000m

Nahversorgung
Supermarkt <500m
Bäckerei <500m
Einkaufszentrum <500m

Sonstige
Geldautomat <500m
Bank <500m
Post <500m
Polizei <500m

Verkehr
Bus <500m
U-Bahn <500m
Straßenbahn <500m
Bahnhof <500m
Autobahnanschluss <5.000m

Angaben Entfernung Luftlinie / Quelle: OpenStreetMap

Eckdaten Objektnr. 17279

Art: Wohnung
Land: Österreich
Baujahr: 1900
Zustand: Gepflegt
Alter: Altbau
Kaufpreis: 395.000,00
Provision: 3% des Kaufpreises zzgl. 20% USt.
Betriebskosten: 147,00 €
MwSt Gesamt: 14,70 €
Wohnfläche: 59,60 m²
Nutzfläche: 59,60 m²
Zimmer: 2
Bäder: 1
WC: 1
Balkone: 1
Heizwärmebedarf: 157,00 kWh/m²a
Immobilie merken Exposé

Ausstattung

Parkett, Fliesen, Gas, Fußbodenheizung, Zentralheizung, Einbauküche, Personenaufzug, Südbalkon, Bad mit Fenster, Badewanne, Dusche, Kabel/Satelliten-TV


Immobilie anfragen


Ihre persönliche Beratung

engelreal immobilien gmbh

Peter Köhler

engelreal immobilien gmbh

T +43 699 1581 6228

H +43 699 1581 6228