WIESING - Attraktive Gewerbefläche in verkehrsgünstiger Lage – sofort verfügbar !

Halle / Lager / Produktion , 6210 Wiesing


Die Immobilie besticht durch ihre verkehrsoptimale Lage unmittelbar an der Autobahn mit hervorragender Anbindung für Kunden und Mitarbeiter.

Beschreibung der Immobilie

WIESING - Attraktive Gewerbefläche in verkehrsgünstiger Lage – sofort verfügbar !

Sehr geehrte Damen und Herren,



vielen Dank für Ihr Interesse an dieser Gewerbefläche in Wiesing!



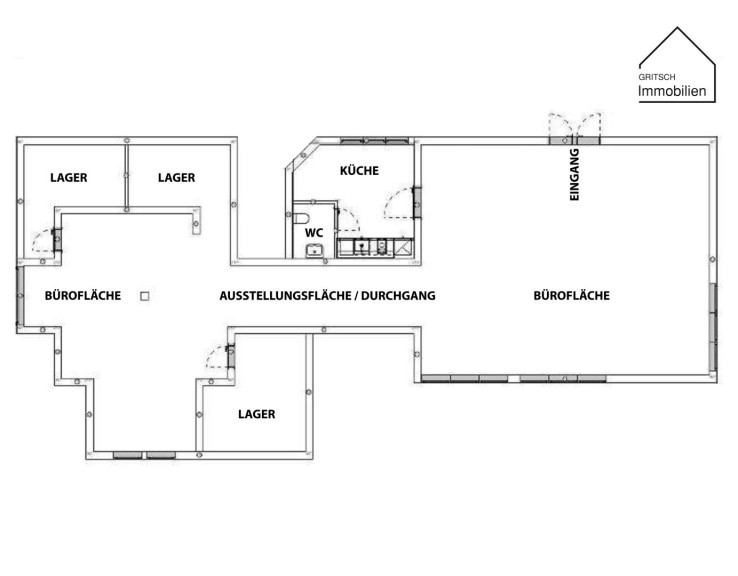
Zur Vermietung gelangen repräsentative, frisch renovierte Gewerberäumlichkeiten mit ca. 170 m² Nutzfläche im 1. Obergeschoss eines gut frequentierten Gewerbeobjekts in hochwertiger Lage direkt neben der Autobahnauffahrt Wiesing. Die ausgezeichnete Verkehrsanbindung gewährleistet eine optimale Erreichbarkeit sowohl für Kunden als auch für Mitarbeiter.



Die Immobilie verfügt über einen separaten, unabhängigen Eingang und bietet vielseitige Nutzungsmöglichkeiten – ideal als Büro, Planungsstudio, Kanzlei, Ausstellungs- oder Beratungsfläche.



Im Erdgeschoss befindet sich ein etabliertes Küchenstudio mit regem Kundenverkehr, was insbesondere für Planer, Architekten, Innenarchitekten, Raumausstatter, Unternehmen aus der Baubranche oder verwandte Dienstleister einen deutlichen Standortvorteil darstellt. Attraktive Synergieeffekte und zusätzliche Kundenfrequenz sind gegeben.



Die Räumlichkeiten wurden umfassend renoviert, präsentieren sich in hellem, modernem Zustand und sind sofort bezugsfertig. Neben den großzügigen Nutzflächen stehen Teeküche, WC sowie Lagerräume zur Verfügung.



Zahlreiche Kundenparkplätze direkt vor dem Gebäude sorgen für hohen Komfort und unterstreichen die Funktionalität dieses Standorts.





Eckdaten & Highlights:




  • Nutzfläche: ca. 170 m²



  • Lage: direkt an der Autobahn / sehr gute Verkehrsanbindung



  • Geschoss: 1. Obergeschoss



  • Zugang: separater Eingang



  • Zustand: frisch renoviert



  • Verfügbarkeit: sofort



  • Nutzung: Büro, Kanzlei, Ausstellung, Planung, Beratung, etc.



  • Kundenfrequenz durch Küchenstudio im EG



  • viele Kundenparkplätze vorhanden






Miete:




  • Nettomiete: € 2.550,– pro Monat



  • Bruttomiete: € 3.060,– pro Monat (inkl. USt)



  • Betriebskosten: verbrauchsabhängig



  • Kaution: nach Vereinbarung






Gerne präsentieren wir Ihnen diese attraktive Gewerbefläche im Rahmen einer persönlichen Besichtigung.



Die Vermittlung der Immobilie erfolgt kostenlos.





Vielen Dank und noch einen schönen Tag,



Mit freundlichen Grüßen



Bmstr. Ing. Matthias Gritsch, BSc. Arch. EUR-Ing





Staatl. Gepr. Immobilientreuhänder, Geschäftsführung,



GRITSCH Immobilien | Gewerbepark Süd 6 | 6068 Mils | www.gritsch.immo







Courtagepassus



Ich übernehme keine Gewähr für die Vollständigkeit, Richtigkeit und Aktualität dieser Angaben.



Kaufnebenkosten Lt. Beiblatt und insbesondere:

3,5 % Grunderwerbssteuer, 1,1 % Grundbuchseintragungsgebühr, 3,0 % zzgl. 20 % USt Erfolgshonorar,

1,5% zzgl. 20 % USt Kosten für die Errichtung des Kaufvertrages und Treuhandschaft lt. Anwaltstarif zzgl. Barauslagen




Wir weisen darauf hin, dass zwischen dem Vermittler und dem zu vermittelnden Dritten ein familiäres oder wirtschaftliches Naheverhältnis besteht.

Infrastruktur / Entfernungen

Gesundheit
Arzt <500m
Apotheke <2.500m
Klinik <6.500m
Krankenhaus <3.500m

Kinder & Schulen
Schule <1.000m
Kindergarten <1.000m

Nahversorgung
Supermarkt <500m
Bäckerei <500m
Einkaufszentrum <7.500m

Sonstige
Bank <500m
Geldautomat <500m
Post <1.500m
Polizei <500m

Verkehr
Bus <500m
Bahnhof <1.500m
Autobahnanschluss <500m

Angaben Entfernung Luftlinie / Quelle: OpenStreetMap

Eckdaten Objektnr. 7044/2428

Art: Halle / Lager / Produktion
Land: Österreich
Baujahr: 2025
Zustand: Erstbezug
Alter: Neubau
Kaltmiete (netto): 2.550,00 €
Kaltmiete: 2.550,00 €
MwSt Gesamt: 510,00 €
Gesamtfläche: 170,00 m²
Immobilie merken Exposé

Immobilie anfragen


Ihre persönliche Beratung

GRITSCH Immobilien

Bmstr. Ing. Matthias Gritsch

BMSTR GRITSCH Immobilien

T +43 676 6673674