Viel Platz im Einfamilienhaus an der Wiener Stadtgrenze: 5 Zimmer, Wohnkeller, Wintergarten + Pool

Haus - Einfamilienhaus, 2301 Groß-Enzersdorf


Buslinie 26 A steht fast vor Ihrer Haustüre und in nur wenigen Gehminuten erreicht. Dieser führt Sie bis zur U-Bahnlinie U2 Seestadt.

Beschreibung der Immobilie

Viel Platz im Einfamilienhaus an der Wiener Stadtgrenze: 5 Zimmer, Wohnkeller, Wintergarten + Pool

Sie suchen ein Ihr Eigenheim mit Luxusausstattung?



Bitte sehen Sie sich unsere virtuelle 3D Videotour unter: https://tour.ogulo.com/X9mD an, bevor Sie mit uns ein Besichtigungstermin vereinbaren.



mit 4 Schlafzimmern, einem großen Garten mit Pool, mit exklusiver Hightech Ausstattung und viel Eigengrund im Grünen? Sie möchten in der Nähe zur Wiener Stadtgrenze wohnen und doch schnell in das pulsierende Großstadtleben eintauchen können? Dann haben wir etwas ganz Besonderes für Sie!


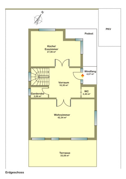
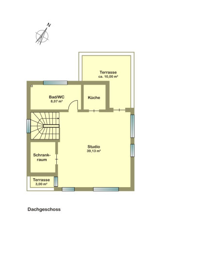
Zum Verkauf gelangt dieses im Jahr 2012 mit hochwertigen Baumaterialien gebaute 5 Zimmer Einfamilienhaus.



Dieses bietet  235 m² WFL, 4 Schlafzimmer mit eigenen Balkonflächen, auf 4 Ebenen, samt großem Garten und Pool und einer großen Terrasse / Wintergarten (Barbecue, Griller) und 2 PKW Abstellplätze. Der fussboden beheizte vollunterkellerte Wohnkeller bietet weitere Ausweichmöglichkeiten für Freiflächen.



Ein Zuhause mit allen Vorzügen!



Ausstattung: alles über eine APP bedienbar!



  • Fußbodenheizung mit Wärmepumpe (Luft / Wasser) fürs Kühlen und Heizen,
  • Einbauküche EWE mit Kochinsel ist mit hochwertigen SIEMENS Einbauelektrogeräten ausgestattet,
  • Vorbereitung für kontrollierte Raumlüftung,
  • Alarmanlage mit Bewegungssensoren,
  • Videoüberwachung für Garten und Einfahrt,
  • BUS System: Anlage wird über die APP gesteuert (Einzelraumtemperaturregelung, Beschattung, Beschallung (Multimedia) und Beleuchtungen werden gesteuert),
  • uvm... (Fragen Sie nach einem ausführlichen Exposé)


Außenbereich:



  • Poolanlage beheizt, etc.  


Weitere Besonderheiten im Rahmen einer Besichtigung.



Allgemeines:



In Entsprechung des FAGG (Fern- und Auswärtsgeschäfte-Gesetz) und des VRUG (Verbraucherrechte-Richtlinie-Umsetzungsgesetz) ist es uns leider nur mehr möglich Termine nach Erhalt einer schriftlichen Anfrage mit vollständigen Kontaktangaben (Kontaktformular) zu vereinbaren, dies gilt ebenso für die Herausgabe relevanter Informationen wie z.B. der Lage. Sehr gerne sind wir auf diesem Wege bereit, uns um sämtliche Anliegen rasch und kompetent zu kümmern.



Erfüllt dieser Wohntraum genau Ihre Anforderungen und Wünsche? - Dann zögern Sie nicht und kontaktieren Sie uns. Auf Anfrage übersenden wir Ihnen gerne ein detailliertes Exposé und einen Lageplan.



Frau Deniz Berber steht Ihnen für weitere Informationen und eine persönliche Besichtigung jederzeit gerne telefonisch unter 0660 636 0100 oder per E-Mail an d.berber@favorite-immo.at zur Verfügung!




Der Vermittler ist als Doppelmakler tätig.

Infrastruktur / Entfernungen

Gesundheit
Arzt <1.500m
Apotheke <2.000m
Klinik <5.500m
Krankenhaus <7.000m

Kinder & Schulen
Schule <1.500m
Kindergarten <500m
Universität <2.000m
Höhere Schule <5.000m

Nahversorgung
Supermarkt <1.500m
Bäckerei <1.500m
Einkaufszentrum <2.500m

Sonstige
Bank <1.500m
Geldautomat <1.500m
Post <1.500m
Polizei <2.000m

Verkehr
Bus <500m
U-Bahn <5.000m
Straßenbahn <6.000m
Bahnhof <5.000m
Autobahnanschluss <6.000m
Flughafen <9.500m

Angaben Entfernung Luftlinie / Quelle: OpenStreetMap

Eckdaten Objektnr. 6109/1563

Art: Haus - Einfamilienhaus
Land: Österreich
Baujahr: 2015
Zustand: Neuwertig
Alter: Neubau
Kaufpreis: 940.000,00
Provision: 33.840,00 € inkl. 20% USt.
Betriebskosten: 100,00 €
MwSt Gesamt: 20,00 €
Wohnfläche: 215,51 m²
Grundstücksfl.: 421,00 m²
Zimmer: 6
Bäder: 2
WC: 4
Balkone: 3
Terrassen: 3
Stellplätze: 2
Garten: 280,00 m²
Keller: 103,26 m²
Heizwärmebedarf:  A  20,50 kWh/m²a
Immobilie merken Exposé

Ausstattung

Parkett, Steinboden, Gas, Fußbodenheizung, Einbauküche, Bad mit Fenster, Badewanne, Dusche, DV-Verkabelung, Kabel/Satelliten-TV, Parkplatz, Wasch/Trockenraum, Alarmanlage, Sicherheitskamera, Swimmingpool


Immobilie anfragen


Ihre persönliche Beratung

Favorite Immobilientreuhand GmbH

Deniz Berber

Favorite Immobilientreuhand GmbH

T +43 1 9711034

H +43 660 6360100

F +4314106879