Top Investment - Top für Singles und Pärchen! 2 Zimmer mit Eigengarten und bester Ausstattung!

Wohnung , 1220 Wien , Steinachgasse


Alles da. Alles nah. Alles entspannt. Nur wenige Minuten entfernt befindet sich mit dem Marchfeld Center das zentrale Einkaufsziel der Umgebung – mit rund 15 Shops von BILLA Plus über Hofer und dm bis hin zu Mode, Drogerie und mehr. Praktisch: 500 Gratis-Parkplätze und eine direkte Anbindung per City-Bus. Auch die öffentliche Verbindung nach Wien ist unkompliziert und schnell: Die Buslinie 550 bringt Sie direkt zur U2 Aspernstraße, während die Linie 26A Richtung U1 Kagran führt – perfekt für alle, die flexibel zwischen Stadt und Ruhe pendeln möchten. Für Familien besonders attraktiv: Schulen, Kindergärten und Betreuungseinrichtungen sind bequem fußläufig erreichbar. Ebenso finden sich Ärzte, ein Kinderarzt sowie ein Ärztezentrum direkt im Ort – ergänzt durch eine Apotheke in unmittelbarer Nähe. Kurz gesagt: Eine Lage, die den Alltag einfach macht.

Beschreibung der Immobilie

Top Investment - Top für Singles und Pärchen! 2 Zimmer mit Eigengarten und bester Ausstattung!

Ankommen, durchatmen, zuhause sein.



Nur wenige Minuten von Wien entfernt entsteht in Groß-Enzersdorf ein Wohnprojekt, das genau den Zeitgeist trifft: mehr Ruhe, mehr Freiraum und gleichzeitig volle Anbindung an die Stadt.



Hier beginnt der Tag mit Blick ins Grüne und endet entspannt auf der eigenen Terrasse oder dem Balkon. Die Nähe zur Lobau, weitläufige Naturflächen und ein angenehm gewachsenes Umfeld schaffen ein Wohngefühl, das in dieser Form selten geworden ist.



Die Wohnungen selbst sind so geplant, wie man heute leben möchte: offen, hell und effizient. 2 bis 4 Zimmer, Wohnflächen von ca. 45 m² bis 114 m² und durchdachte Grundrisse bieten Raum für unterschiedlichste Lebenssituationen – vom kompakten Investment bis zum Familienzuhause. Jede Einheit verfügt über eine eigene Freifläche und erweitert den Wohnraum ins Freie.



Die Ausstattung folgt einem klaren Anspruch: langlebig, hochwertig und komfortabel. Eichenparkett, moderne Fliesen, dreifach verglaste Fenster, elektrische Beschattung und Fußbodenheizung über Fernwärme sorgen für ein angenehmes Wohnklima. In den Dachgeschosswohnungen bietet eine Klimaanlage zusätzlichen Komfort. Lift, Videogegensprechanlage sowie vorbereitete E-Ladeinfrastruktur runden das Gesamtbild ab. Die Kombination aus Qualität, Funktionalität und zeitlosem Design sorgt für ein angenehmes Wohnklima und langfristige Wertbeständigkeit.



Auch aus Investorensicht überzeugt das Projekt: Die Kombination aus Stadtnähe, Grünlage und funktionalen Grundrissen sorgt für nachhaltige Nachfrage und sehr gute Vermietbarkeit.



Kurz gesagt: ein Projekt, das nicht nur heute passt, sondern auch morgen noch Sinn macht.





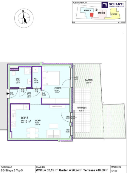
Wohnung Top 5 - Stiege 3



2 Zimmer Gartenwohnung - praktisch, süß, mit hohem "Wohlfühl-Faktor"!



Diese ideal geschnittene 2-Zimmer-Gartenwohnung vereint durchdachte Raumplanung mit einem besonderen Maß an Lebensqualität. Ruhig im Innenhof gelegen, entsteht hier ein Zuhause, das Rückzug, Freiraum und modernes Wohnen ideal miteinander verbindet.



Auf rund 52 m² Wohnfläche überzeugt die Wohnung mit einem offenen und lichtdurchfluteten Wohnbereich von ca. 25 m² – das Herzstück des Zuhauses. Große Fensterflächen sorgen für ein angenehmes Raumgefühl und schaffen eine fließende Verbindung in den Außenbereich.



Ein besonderes Highlight: von beiden Räumen aus gelangen Sie direkt in den knapp 40 m² großen Eigengarten samt Terrasse. Ob Frühstück im Freien, entspannte Abende oder Platz für Familie und Freunde – hier entsteht ein echtes Wohngefühl mit Hauscharakter.



Die Wohnung verfügt über ein geräumiges Schlafzimmer mit ca. 13 m² sowie einen zusätzlichen Abstellraum, der für praktischen Stauraum sorgt. Das Badezimmer ist modern ausgestattet und verfügt über eine Dusche sowie ein WC.



Eine seltene Gelegenheit für alle, die grünes Wohnen mit privatem Garten in ruhiger Lage suchen – und dennoch die Nähe zur Stadt nicht missen möchten.



Wohnfläche: ca. 52,15 m² + Terrasse: ca. 10 m² + Garten: ca. 30 m² + Kellerabteil 



Kaufpreis (netto) für Anleger: € 293.020,- (zzgl. 20%Ust.)



Kaufpreis für Endverbraucher: € 299.000,-



KP Garage (optional): € 17.000,-



Kalkulierte Betriebskosten: € 2,-/m² zzgl. Ust. 



Provision: 3% zzgl. 20% Ust.



„Wir weisen höflich darauf hin, dass sich das Projekt knapp außerhalb der Stadtgrenze von Wien befindet; aus Gründen einer besseren Sichtbarkeit wurde die Adresse innerhalb der Stadtgrenzen angegeben.“





Vereinbaren Sie heute noch einen Termin - wir beraten Sie gerne und zeigen Ihnen alle verfügbaren Einheiten!



www.schantl-ith.at



Bei konkretem Interesse senden wir Ihnen sehr gerne weiterführende Dokumente zu, wie:



o Grundbuchauszug



o Wohnungseigentumsvertrag



o Nutzwertgutachten



o Eigentümerversammlungsprotokoll (Falls vorhanden) etc...





Unser Service für Sie: Wenn Sie sich für diese Immobilie entschieden haben, begleiten wir Sie gerne vom Kaufanbot weg inkl. Klärung von Sonderwünschen und der Vertragsunterzeichnung über die Wohnungsübergabe bis hin zu diversen Ummeldungen wie Strom und Gas. Entsprechende Formulare oder auch Meldezettel stellen wir Ihnen sehr gerne zur Verfügung.



Gerne unterstützen wir Sie auch bei der Finanzierung Ihres Traumobjekts und finden mit unseren langjährigen Partnern die besten Konditionen für Sie.



www.schantl-ith.at


Wir weisen darauf hin, dass zwischen dem Vermittler und dem zu vermittelnden Dritten ein familiäres oder wirtschaftliches Naheverhältnis besteht.


Der Vermittler ist als Doppelmakler tätig.

Infrastruktur / Entfernungen

Gesundheit
Arzt <1.000m
Apotheke <1.000m
Klinik <3.250m
Krankenhaus <5.500m

Kinder & Schulen
Schule <1.000m
Kindergarten <1.000m
Universität <1.250m
Höhere Schule <2.750m

Nahversorgung
Supermarkt <750m
Bäckerei <1.000m
Einkaufszentrum <1.000m

Sonstige
Geldautomat <1.500m
Bank <1.250m
Polizei <1.000m
Post <1.250m

Verkehr
Bus <250m
U-Bahn <3.000m
Straßenbahn <3.750m
Bahnhof <3.000m
Autobahnanschluss <6.750m

Angaben Entfernung Luftlinie / Quelle: OpenStreetMap

Eckdaten Objektnr. 296769

Art: Wohnung
Land: Österreich
Baujahr: 2026
Zustand: Erstbezug
Alter: Neubau
Kaufpreis: 293.020,00
Kaufpreis / m²: 4.896,72 €
Provision: 3% des Kaufpreises zzgl. 20% USt.
Wohnfläche: 52,15 m²
Nutzfläche: 59,84 m²
Zimmer: 2
Bäder: 1
WC: 1
Terrassen: 1
Garten: 26,94 m²
Heizwärmebedarf:  B  36,78 kWh/m²a
fGEE:  A  0,81
Immobilie merken Exposé

Ausstattung

Estrichboden, Fliesen, Parkett, Fußbodenheizung, Wohnküche / offene Küche, Personenaufzug, Ostbalkon, Dusche, Kabel/Satelliten-TV, Tiefgarage


Immobilie anfragen


Ihre persönliche Beratung

Schantl ITH Immobilientreuhand GmbH

Mark Prettenthaler

Schantl ITH Immobilientreuhand GmbH

T +43 6643070009

H +43 650 56 75 611