Exklusivität zum Einziehen! Design + Eleganz + Raffinesse + Edle Materialien! TOP-Wohnung in TOP-Lage mit hofseitiger Terrasse! Wünsche werden wahr....

Wohnung , 1010 Wien , Wollzeile


LAGE LAGE LAGE! Wollzeile in 1010 Wien! Besser geht´s nicht - diese Lage lässt keine Wünsche offen! Mitten im ersten Bezirk + Beste Infrastruktur + Perfekte öffentliche Anbindung! Alle Geschäfte des täglichen Bedarfs, Supermärkte, Drogeriemärkte, Apotheken, Banken und Ärzte befinden sich in Gehweite. Das charmante Grätzel hat auch kulinarisch einiges zu bieten und wird Ihr Herz höher schlagen lassen. Viele bekannte Restaurants, Bars, Weinschenken, Cafés, Bistros und Spezialitätenläden machen dieses Viertel lebenswert. Öffentliche Anbindung: U4 - Schottenring in 7-8 Gehminuten, Straßenbahn in 7-8 Gehminuten, Bus-Station in 2 Gehminuten HOT SPOTS ganz in der Nähe: Stephansplatz, Stadtpark, Kärntner Straße, Rotenturmstraße, Goldenes Quartiert uvm...

Beschreibung der Immobilie

Exklusivität zum Einziehen! Design + Eleganz + Raffinesse + Edle Materialien! TOP-Wohnung in TOP-Lage mit hofseitiger Terrasse! Wünsche werden wahr....

Exklusivität zum Einziehen! Luxus Pur! Design + Eleganz + Raffinesse! + Edle Materialien! TOP-Wohnung in TOP-Lage mit hofseitiger Terrasse! Wünsche werden wahr....



Ihre Adresse für höchste Ansprüche! Luxus, Lage, Lebensfreude!





Erleben Sie ein neues Wohngefühl, feinste Materialien, geschmackvolle Möblierung, raffinierte Einbauschränke und ein Rundum-Komplettpaket inklusive Sauna...





Ihre neue Designer-Wohnung am 6.Liftstock wird nicht nur Sie restlos begeistern, sondern auch Ihre Gäste und Freunde! Ein Zuhause, das Eindruck macht!



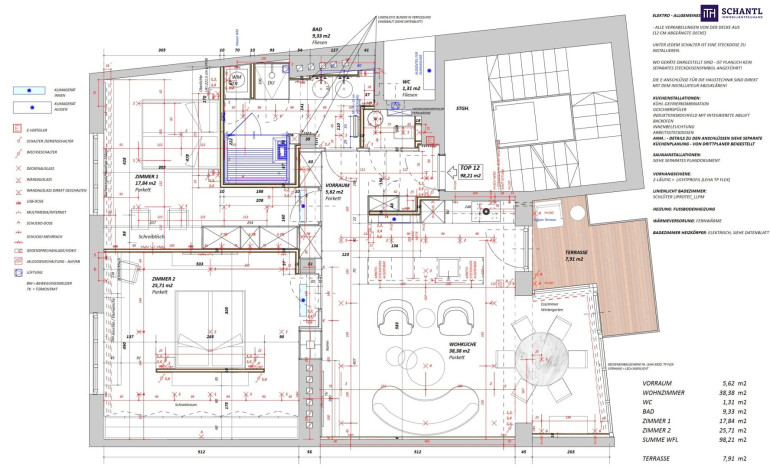
Sie teilt sich in einen optimal genutzten Vorraum mit praktischen Einbauschränken, ein separates WC mit Fenster, ein stylisches Badezimmer mit Marken-Armaturen, einer Walk-In Dusche, einem versteckten Bereich für die Waschmaschine sowie eine Sauna, ein gemütliches Kinder- oder Gästezimmer, welches ebenfalls optimal mit Einbauschränken verbaut wurde, ein Schlafzimmer mit unglaublich tollem Schrankraum/-bereich, Designer-Nachtlampen und jeder Menge kleiner Details, sowie ein Wohlfühl-Wohnzimmer mit großer Spiegelwand, herrlichem Kamin, einer überkomplett ausgestatteten TOP-Einbauküche die keine Wünsche offen lässt und Zugang zur hofseitgen Terrasse.



Einige Highlights/Extras: Kamin, Klimaanlage, handgehobelter Parkett, Alarmanlage vorbereitet, Außenjalousien, WK3-Sicherheitstüre, TOP Markenküche, Sauna, Designer-Tapeten, Designer Möbel und Lampen uvm...



Marken: Gaggenau, Alape, Gira, Flos uvm...





Raffinierte Einbauten, edelste Materialien, kompromisslose Klasse!



Wohnfläche: ca. 98,21m² + Terrasse: ca. 7,91m²



Kaufpreis: € 1.890.000.-



Bezug: ab sofort



Möblierung: Alle Möbel und Einbauschränke verbleiben in der Wohnung





Worauf warten Sie noch? So ein Schmuckstück darf man sich nicht entgehen lassen....





www.schantl -ith.at





Bei konkretem Interesse senden wir Ihnen sehr gerne weiterführende Dokumente zu, wie:



o Grundbuchauszug



o Wohnungseigentumsvertrag



o Nutzwertgutachten



o Eigentümerversammlungsprotokoll (Falls vorhanden) etc...





Unser Service für Sie: Wenn Sie sich für diese Immobilie entschieden haben, begleiten wir Sie gerne vom Kaufanbot weg inkl. Klärung von Sonderwünschen und der Vertragsunterzeichnung über die Wohnungsübergabe bis hin zu diversen Ummeldungen wie Strom und Gas. Entsprechende Formulare oder auch Meldezettel stellen wir Ihnen sehr gerne zur Verfügung.



Gerne unterstützen wir Sie auch bei der Finanzierung Ihres Traumobjekts und finden mit unseren langjährigen Partnern die besten Konditionen für Sie.



Vereinbaren Sie noch heute einen Termin, wir beraten Sie gerne!



www.schantl-ith.at


Hinweis gemäß Energieausweisvorlagegesetz: Ein Energieausweis wurde vom Eigentümer bzw. Verkäufer, nach unserer Aufklärung über die generell geltende Vorlagepflicht, sowie Aufforderung zu seiner Erstellung noch nicht vorgelegt. Daher gilt zumindest eine dem Alter und der Art des Gebäudes entsprechende Gesamtenergieeffizienz als vereinbart. Wir übernehmen keinerlei Gewähr oder Haftung für die tatsächliche Energieeffizienz der angebotenen Immobilie.


Wir weisen darauf hin, dass zwischen dem Vermittler und dem zu vermittelnden Dritten ein familiäres oder wirtschaftliches Naheverhältnis besteht.


Der Vermittler ist als Doppelmakler tätig.

Infrastruktur / Entfernungen

Gesundheit
Arzt <500m
Apotheke <250m
Klinik <500m
Krankenhaus <750m

Kinder & Schulen
Schule <250m
Kindergarten <500m
Universität <250m
Höhere Schule <500m

Nahversorgung
Supermarkt <250m
Bäckerei <250m
Einkaufszentrum <750m

Sonstige
Geldautomat <500m
Bank <500m
Post <250m
Polizei <500m

Verkehr
Bus <250m
U-Bahn <250m
Straßenbahn <250m
Bahnhof <250m
Autobahnanschluss <3.000m

Angaben Entfernung Luftlinie / Quelle: OpenStreetMap

Eckdaten Objektnr. 296846

Art: Wohnung
Land: Österreich
Zustand: Neuwertig
Alter: Neubau
Kaufpreis: 1.890.000,00
Kaufpreis / m²: 18.493,15 €
Provision: 3% des Kaufpreises zzgl. 20% USt.
Betriebskosten: 178,41 €
MwSt Gesamt: 21,23 €
Wohnfläche: 98,21 m²
Nutzfläche: 102,20 m²
Zimmer: 3
Bäder: 1
WC: 1
Terrassen: 1
Immobilie merken Exposé

Ausstattung

Fliesen, Parkett, Fernwärme, Fußbodenheizung, Einbauküche, Personenaufzug, Dusche, Kabel/Satelliten-TV, Alarmanlage, Sauna


Immobilie anfragen


Ihre persönliche Beratung

Schantl ITH Immobilientreuhand GmbH

Samir Agha-Schantl

Schantl ITH Immobilientreuhand GmbH

T 0043 664 3070009

H 0043 660 4701793