Exklusives Alpenchalet in idyllischer Waldrandlage – Ferienwohnsitz, Privatsphäre & Panorama vereint

Haus - Ferienhaus, 9565 Turracherhöhe


Die Mikrolage zählt zu den herausragenden Qualitäten dieser Liegenschaft: In wenigen Minuten erreichen Sie die Sonnalmbahn mit direktem Einstieg in das Skigebiet, den malerischen Turracher See sowie ein weitläufiges Netz an perfekt präparierten Langlaufloipen. Im Sommer verwandelt sich die Region in ein alpines Naturparadies: Die bekannte Drei-Seen-Wanderung – ein landschaftliches Highlight der Nockberge – beginnt praktisch vor Ihrer Haustüre und verbindet eindrucksvoll Natur, Ruhe und Bewegung auf höchstem Niveau. Die Turracher Höhe selbst steht seit Jahren für eine seltene Kombination aus Schneesicherheit, Exklusivität und Ganzjahresqualität – ein Rückzugsort für Kenner, die bewusst das Authentische dem Massentourismus vorziehen.

Beschreibung der Immobilie

Exklusives Alpenchalet in idyllischer Waldrandlage – Ferienwohnsitz, Privatsphäre & Panorama vereint

In einer der exklusivsten und zugleich naturbelassensten Lagen der Turracher Höhe, eingebettet in die ruhige St. Veiter Siedlung und umgeben von altem Baumbestand, präsentiert sich dieses außergewöhnliche Chalet als privates Refugium für höchste Ansprüche.

Diskret gelegen, fernab vom Trubel und dennoch perfekt angebunden, vereint diese Liegenschaft das, was in den Alpen immer seltener wird: absolute Privatsphäre, echte Naturverbundenheit und gleichzeitig unmittelbare Nähe zu erstklassiger Infrastruktur.

Die seltene Zweitwohnsitzwidmung unterstreicht die Besonderheit dieser Immobilie und eröffnet anspruchsvollen Eigentümern die Möglichkeit, einen echten Rückzugsort ohne Einschränkungen zu genießen – zu jeder Jahreszeit.

Architektonisch überzeugt das Chalet durch seine authentische, alpine Bauweise mit hochwertiger Holzfassade und harmonischer Einbettung in die umliegende Landschaft. Im Inneren erwartet Sie ein stimmiges Zusammenspiel aus traditionellem Charme und komfortabler Wohnqualität.

Der Wohnbereich bildet das Herzstück des Hauses: Ein stilvoller Kachelofen sorgt für eine unvergleichlich warme, fast schon archaische Atmosphäre – ein Ort, an dem Winterabende zur gelebten Qualität werden und sich alpine Gemütlichkeit auf höchstem Niveau entfaltet.

Dieses Chalet ist mehr als eine Immobilie.
Es ist ein Statement. Ein Rückzugsort. Ein Stück gelebte Freiheit in den Alpen.

Infrastruktur / Entfernungen

Gesundheit
Arzt <10.000m

Kinder & Schulen
Schule <7.000m

Nahversorgung
Supermarkt <2.500m
Bäckerei <1.000m

Sonstige
Geldautomat <1.500m
Bank <7.000m
Post <7.000m

Verkehr
Bus <1.000m

Angaben Entfernung Luftlinie / Quelle: OpenStreetMap

Eckdaten Objektnr. 131

Art: Haus - Ferienhaus
Land: Österreich
Zustand: Neuwertig
Kaufpreis: 1.250.000,00
Provision: 3,6% inkl. MwSt.
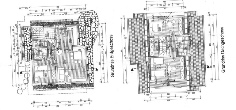
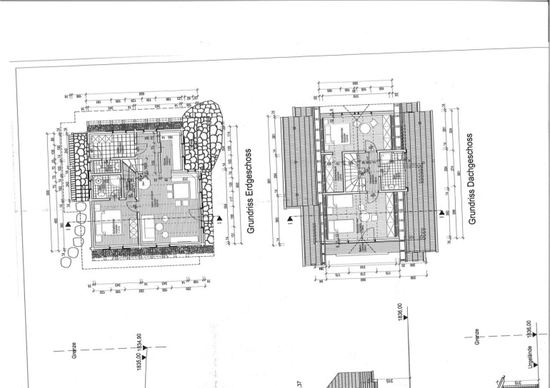
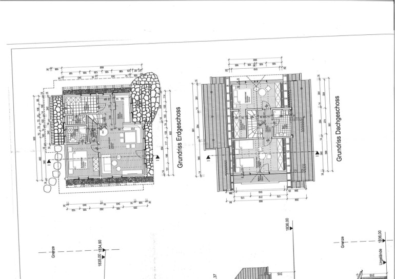
Wohnfläche: 129,56 m²
Nutzfläche: 159,56 m²
Zimmer: 4
Bäder: 2
Stellplätze: 2
Immobilie merken Exposé

Ausstattung

Dielenboden, Fliesen, Kamin, Einbauküche, Bad mit Fenster, Dusche, Carport, Parkplatz


Immobilie anfragen


Ihre persönliche Beratung

Karl Lukas Lassacher

Edelweiss Immobilien GmbH

T +43 664 9217197

H +43 664 92 17 197