Exklusive barrierefreie Neubauwohnungen am Faaker See – 4 Garten-, 4 Terrassen- & 2 Penthousewohnungen mit Seeblick

Wohnung - Terrassenwohnung, 9582 Latschach


Beschreibung der Immobilie

Exklusive barrierefreie Neubauwohnungen am Faaker See – 4 Garten-, 4 Terrassen- & 2 Penthousewohnungen mit Seeblick

Neubauwohnungen am Faaker See – 10 barrierefreie Einheiten mit Panoramaseeblick



Oberhalb des Faaker Sees, in der beliebten Gemeinde Latschach am Faakersee (nahe Villach und Wörthersee), entstehen zwei exklusive Wohngebäude mit insgesamt 10 barrierefreien Neubauwohnungen. Jede Einheit besticht durch einen spektakulären Panoramaseeblick über den Faaker See – ideal für Eigennutzer oder als langfristig wertbeständige Kapitalanlage.



Wohnungstypen




  • 4 Gartenwohnungen – großzügige Terrassen & Eigengärten



  • 4 Terrassenwohnungen – lichtdurchflutete Außenflächen



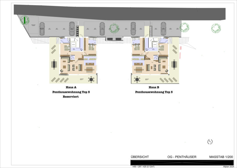
  • 2 Penthousewohnungen – exklusive Dachterrassen und Topausstattung





Highlights & Ausstattung




  • Wohnflächen: 92–133 m²



  • Großzügige Terrassen & private Eigengärten



  • Barrierefrei mit Aufzug



  • 1–2 Stellplätze und ein Kellerabteil je Wohnung bereits im Kaufpreis enthalten



  • Niedrigenergiebauweise mit Luftwärmepumpe & Photovoltaik



  • Nur 10 Einheiten – maximale Privatsphäre & Exklusivität



  • Flexible Grundrisse bei frühzeitiger Vertragsunterzeichnung



  • Notarielle Bauträgerverträge für rechtssicheren Kauf





Lage & Umgebung




  • Oberhalb des Faaker Sees, Gemeinde Latschach am Faakersee, ca. 10 Minuten von Villach entfernt



  • Umgeben von Kärntner Seenlandschaften, Ski- und Wandergebieten sowie Radwegen



  • Ruhe, Natur und vielfältige Freizeitmöglichkeiten direkt vor der Haustür



  • Hervorragende Verkehrsanbindung: wenige Minuten zur Autobahn (A2/A11) und Hauptbahnhof Villach



  • Grenznah zu Italien & Slowenien – ideal für Wochenendtrips und Adria-Ausflüge





Wohnungstypen & Preise



Gartenwohnungen (4)




  • Wohnfläche: 92,16 m²



  • Terrasse: 26,5 m²



  • Eigengarten: 44–97 m²



  • 1–2 Stellplätze + Kellerabteil



  • Preis: € 737.280




Terrassenwohnungen (4)




  • Wohnfläche: 92,16 m²



  • Terrasse: 17,55 m²



  • 1–2 Stellplätze + Kellerabteil



  • Preis: € 645.120 (2 bereits reserviert)




Penthousewohnungen (2)




  • Wohnfläche: 133,43 m²



  • Terrasse: 96,60 m²



  • 2 Stellplätze + Kellerabteil



  • Preis: € 1.334.300 (1 bereits reserviert)





Kontakt & Besichtigung



Für weitere Informationen oder einen Besichtigungstermin am Faaker See stehe ich Ihnen jederzeit gerne zur Verfügung:



Herr Herbert Wurzer – Immobilienberater




  • Mobil: +43 676 51 67 960



  • E-Mail: h.wurzer@era.at



  • Website: www.era.at/imed



  • Büro: Neuer Platz 20, 9800 Spittal an der Drau





Der Vermittler ist als Doppelmakler tätig.

Infrastruktur / Entfernungen

Gesundheit
Arzt <1.000m
Apotheke <1.500m
Klinik <8.000m
Krankenhaus <8.000m

Kinder & Schulen
Schule <1.000m
Kindergarten <4.500m
Universität <6.500m
Höhere Schule <6.000m

Nahversorgung
Supermarkt <2.000m
Bäckerei <7.000m
Einkaufszentrum <7.000m

Sonstige
Geldautomat <1.500m
Bank <1.500m
Post <1.500m
Polizei <1.500m

Verkehr
Bus <500m
Autobahnanschluss <4.000m
Bahnhof <1.000m

Angaben Entfernung Luftlinie / Quelle: OpenStreetMap

Eckdaten Objektnr. 7137/3641

Art: Wohnung - Terrassenwohnung
Land: Österreich
Baujahr: 2026
Zustand: Erstbezug
Alter: Neubau
Kaufpreis: 645.120,00
Provision: 3% des Kaufpreises zzgl. 20% USt.
Wohnfläche: 92,16 m²
Grundstücksfl.: 2.556,00 m²
Zimmer: 3
Bäder: 2
WC: 2
Terrassen: 1
Stellplätze: 2
Keller: 5,83 m²
Heizwärmebedarf:  B  42,00 kWh/m²a
fGEE:  A++  0,55
Immobilie merken Exposé

Ausstattung

Parkett, Estrichboden, Fliesen, Parkettboden, Fußbodenheizung, Personenaufzug, Nordbalkon, Ostbalkon, Dusche, Bad mit Fenster, Badewanne, Kabel/Satelliten-TV, Parkplatz


Immobilie anfragen


Ihre persönliche Beratung

Herbert Wurzer

ERA IMED Immobilien

H +43 676 5167960