Exklusiver Bungalow– modernes Neubauprojekt in Raab zu kaufen

Haus - Bungalow, 4760 Raab


Beschreibung der Immobilie

Exklusiver Bungalow– modernes Neubauprojekt in Raab zu kaufen

Exklusiver Bungalow – modernes Neubauprojekt in Raab zu kaufen 



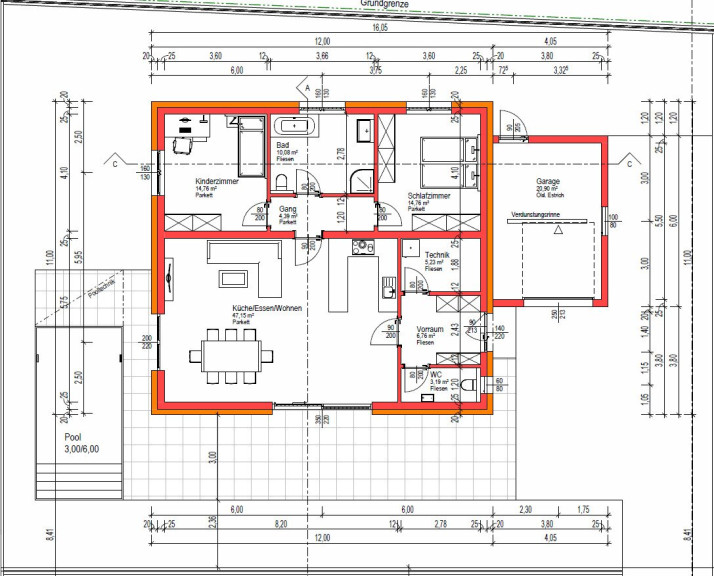
Dieser moderne Bungalow überzeugt durch seine klare Architektur, eine durchdachte Raumaufteilung und komfortables Wohnen auf einer Ebene. Das Haus wird nach einem architektonisch abgestimmten Konzept neu errichtet und bietet eine Wohnfläche von rund 106 m². Der Grundriss umfasst eine großzügige, offene Wohnküche mit Wohn- und Essbereich von ca. 47 m². Große Fensterflächen sorgen für viel Tageslicht und ermöglichen einen direkten Zugang zur Terrasse. Der offen gestaltete Wohnbereich bildet das Herzstück des Hauses und schafft eine helle und freundliche Wohnatmosphäre. Das Raumangebot wird durch ein Schlafzimmer, ein Kinderzimmer, ein Badezimmer, ein separates WC, einen Technikraum sowie einen Vorraum mit Gang, der alle Räume optimal verbindet, ergänzt. Zusätzlich verfügt der Bungalow über eine direkt angeschlossene Garage mit rund 21 m², die einen komfortablen Zugang zum Haus bietet. Im Gartenbereich besteht die Möglichkeit zur Errichtung eines Pools (ca. 3 x 6 m), der gegen Aufpreis ausgeführt werden kann. Der Bungalow kann wahlweise auch schlüsselfertig ausgeführt werden. Für die schlüsselfertige Ausführung fällt ein Aufpreis von EUR 55.000,- an. Der Entwurf überzeugt durch eine klare, moderne Architektur und eine funktionale Raumaufteilung und eignet sich ideal für komfortables Wohnen auf einer Ebene. Hinweis: Bei den dargestellten Bildern handelt es sich um Visualisierungen eines möglichen Bauprojekts. Änderungen in Planung, Ausführung und Ausstattung sind möglich. Auf dem Grundstück ist die Errichtung von zwei modernen Bungalows vorgesehen. Der Grundriss kann individuell an die Bedürfnisse der Käufer angepasst werden. So besteht beispielsweise die Möglichkeit, zusätzliche Schlafzimmer zu realisieren oder die Raumaufteilung flexibel zu gestalten. Auch eine Erweiterung des Gebäudes ist – vorbehaltlich behördlicher Genehmigung – grundsätzlich möglich.



Lage



In nur 5 Minuten erreichen Sie das Ortszentrum, dort finden Sie alles was Sie für ihren Alltag brauchen (Schule, Kindergarten, Lebensmittelhändler, Ärzte, ...)



Sie haben Interesse?
Ansehen lohnt sich - wir freuen uns über Ihr Interesse! Für weitere Fragen stehen wir Ihnen gerne unter der Rufnummer 0664 398 34 62 zur Verfügung. Auf Wunsch stellen wir gerne einen Kontakt zu Finanzierungsexperten her.



Rechtliche Informationen
Bitte beachten Sie, dass wir aufgrund unserer ALLEINBEAUFTRAGUNG und Nachweispflicht für den Abgeber ausschließlich Anfragen unter Angabe Ihrer VOLLSTÄNDIGEN DATEN bearbeiten können (NAME, ANSCHRIFT, E-MAIL, TELEFONNUMMER). Explizit weisen wir darauf hin, dass alle Angaben nach bestem Wissen erstellt wurden. Irrtümer, Druckfehler und Änderungen vorbehalten. Für Auskünfte und Angaben, die uns von Seiten der Eigentümer und Dritten zur Verfügung gestellt wurden, können wir keine Haftung übernehmen. 



Haben Sie die richtige Immobilie noch nicht gefunden?

Dann registriere dich hier:  https://girkinger-immobilien.at/suchagent/#section-2-113717

Infrastruktur / Entfernungen

Gesundheit
Arzt <5.500m
Apotheke <500m

Kinder & Schulen
Schule <4.500m
Kindergarten <500m

Nahversorgung
Supermarkt <500m
Bäckerei <500m
Einkaufszentrum <10.000m

Sonstige
Bank <500m
Geldautomat <500m
Post <4.500m
Polizei <5.500m

Verkehr
Bus <500m
Bahnhof <4.500m
Flughafen <7.000m

Angaben Entfernung Luftlinie / Quelle: OpenStreetMap

Eckdaten Objektnr. 5950/4474

Art: Haus - Bungalow
Land: Österreich
Baujahr: 2026
Zustand: Erstbezug
Alter: Neubau
Kaufpreis: 395.000,00
Provision: 3% des Kaufpreises zzgl. 20% USt.
Betriebskosten: 150,00 €
Wohnfläche: 106,32 m²
Grundstücksfl.: 500,00 m²
Zimmer: 3
Bäder: 1
WC: 2
Immobilie merken Exposé

Ausstattung

Fußbodenheizung, Bad mit Fenster, Dusche, Garage, Swimmingpool


Immobilie anfragen


Ihre persönliche Beratung

Thomas Girkinger Immobilien GmbH

Aldin Tahic

Thomas Girkinger Immobilien GmbH

T +43 732 77 52 00

H +43 664 398 34 62