2-Zimmer Wohnung mit herrlichem Altbau-Flair | TOP Lage | Balkonanbau möglich

Wohnung - Etage, 1060 Wien , Gumpendorfer Straße 118A


Gumpendorfer Straße | 1060 Wien | Wien Westbahnhof | U4/U6 | Mariahilfer Straße

Beschreibung der Immobilie

2-Zimmer Wohnung mit herrlichem Altbau-Flair | TOP Lage | Balkonanbau möglich

IMPULS Immobilien bietet nachfolgende Wohnung ab sofort zum KAUF an:



Wunderschöne 2-Zimmer Wohnung mit herrlichem Altbau-Flair, hohen Doppelflügel-Kassettentüren und ruhiger Innenhoflage





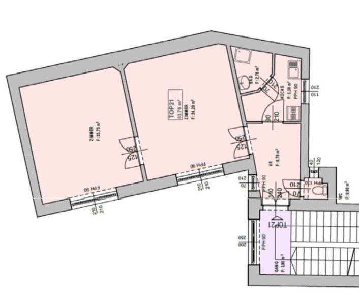
ÜBER DIE WOHNUNG



Die Wohnung befindet sich im 4. Stock (bald mit Lift) in einem gepflegten Altbauwohnhaus im schönen, belebten & beliebten 6. Wiener Gemeindebezirk. 




FACTBOX



  • Vorraum
  • großer Wohnbereich
  • separates Schlafzimmer
  • separate Küche mit Fenster
  • Badezimmer mit Dusche und Waschmaschinenanschluss
  • separates WC


Der großzügig gestaltete Vorraum heißt Sie mit viel Platz zum Ankommen willkommen. Rechter Hand befindet sich das separate WC mit praktischem Fenster.



Geradeaus gelangen Sie in die ca. 5 m² große Küche, von der aus das Badezimmer mit DuscheWaschtisch und Waschmaschinenanschluss zugänglich ist.



Linker Hand öffnet sich durch eindrucksvolle Kassetten-Doppelflügeltüren das ca. 24 m² große Wohnzimmer, von dem aus das ebenso großzügige Schlafzimmer begehbar ist.



Diese stilvolle Altbauwohnung begeistert mit klassischen Details, beeindruckender Raumhöhe und einer angenehmen Lichtdurchflutung. Ein charmantes Zuhause mit viel Potenzial – bereit, nach Ihren eigenen Vorstellungen gestaltet und eingerichtet zu werden.



Beheizt wird die Wohnung klassisch mittels Gasetagenheizung.



Das Highlight: Es besteht die Möglichkeit einen fast 8 m² großen Balkon anzubauen. Sollten Sie dies nicht selbst durchführen wollen, wird dies für einen Aufpreis von EUR 35.000,-- noch vom Verkäufer erledigt.





ZUM HAUS & ZUR INFRASTRUKTUR



Das gepflegte Altbauhaus verfügt aktuell noch über keinen Lift, der aktuelle Eigentümer verpflichtet sich aber innerhalb von 2 Jahren einen Lift einzubauen, was das Objekt weiter aufwerten wird.



Sie wohnen hier im begehrten 6. Wiener Gemeindebezirk „Mariahilf“ – eine Mischung aus zentraler Stadtlage, attraktiver Infrastruktur und urbanem Flair.



Öffentlich sind Sie hier BESTENS angebunden: In unter 5 Gehminuten erreichen die U6 Gumpendorferstraße oder die U4 Margaretengürtel. Auch der Umschlagplatz Wien Westbahnhof mit zahlreichen Regionalzügen, U-Bahn- und Straßenbahnen liegt in weniger als 10 Minuten Entfernung.



Die ebenfalls nur 10 Minuten entfernte Einkaufsachse Mariahilfer Straße bietet einige große Vielfalt an Shopping und Gastronomie.



Alle Einrichtungen des täglichen Bedarfs (Supermarkt, Trafik, Restaurants, Ärzte...) sind in unmittelbarer Umgebung innerhalb weniger Minuten erreichbar! Beispielsweise liegt eine LIDL Filiale nur wenige Gehminuten entfernt.









INTERESSIERT?



Gerne stehen wir jederzeit für einen persönlichen Termin oder Rückfragen aller Art

unter office@impuls-immobilien.atbzw. telefonisch unter 0650/8566764 zur Verfügung!

Infrastruktur / Entfernungen

Gesundheit
Arzt <150m
Apotheke <275m
Klinik <125m
Krankenhaus <250m

Kinder & Schulen
Schule <75m
Kindergarten <75m
Universität <825m
Höhere Schule <1.200m

Nahversorgung
Supermarkt <125m
Bäckerei <300m
Einkaufszentrum <925m

Sonstige
Geldautomat <275m
Bank <500m
Post <325m
Polizei <400m

Verkehr
Bus <50m
U-Bahn <275m
Straßenbahn <325m
Bahnhof <275m
Autobahnanschluss <4.025m

Angaben Entfernung Luftlinie / Quelle: OpenStreetMap

Eckdaten Objektnr. 507

Art: Wohnung - Etage
Land: Österreich
Baujahr: 1900
Zustand: Gepflegt
Alter: Altbau
Kaufpreis: 459.000,00
Provision: 3% des Kaufpreises zzgl. 20% USt.
Betriebskosten: 176,90 €
MwSt Gesamt: 17,69 €
Wohnfläche: 65,00 m²
Zimmer: 2,50
Bäder: 1
WC: 1
Balkone: 1
Heizwärmebedarf:  E  180,90 kWh/m²a
fGEE:  E  2,56
Immobilie merken Exposé

Ausstattung

Gas, Etagenheizung, Personenaufzug, Dusche


Immobilie anfragen


Ihre persönliche Beratung

IMPULS Immobilien

Mag. (FH) Markus Verner

Impuls Immobilien Verner OG

T +43 650 8566764