+++ Charmantes Landhaus mit großem Grundstück – in Pusztacsalád (Ungarn) +++

Haus , 9373 Pusztacsalád


Beschreibung der Immobilie

+++ Charmantes Landhaus mit großem Grundstück – in Pusztacsalád (Ungarn) +++

+++ Charmantes Landhaus mit großem Grundstück – vielseitiges Bauland & gepflegte Liegenschaft +++



Dieses gemütliche Wohnhaus mit charmanten Arkaden und großzügigem Garten bietet eine seltene Kombination aus idyllischer Grünruhelage und wertvollem Baulandpotenzial. Auf insgesamt 2.899 m² Grundstücksfläche stehen etwa 1.000 m² als Bauland zur Verfügung, während die restliche Fläche als Grünland gewidmet ist und viel Raum für Natur, Gartenbau oder Freizeitgestaltung bietet. Das ruhige Dörfchen Pusztacsalád liegt ca. 35-45 Minuten von der österreichischen Grenze entfernt und eignet sich somit auch ideal als Wochenenddomizil zum Entspannen.



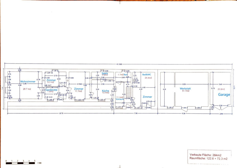
Raumaufteilung:



  • Wohnzimmer ca 28,7m²
  • Zimmer  9,3m²
  • Garderobe 7,8m²
  • Zimmer I 17,7m²
  • Küche 13,4m²
  • Speis 4,8m²
  • Vorraum 11,8m²
  • Bad 4,7m²
  • Zimmer mit Bad & WC 24,4m²




Das Wohnhaus umfasst 122 m² Wohnfläche sowie 250 m² Nutzfläche und wurde nach dem Kauf im Jahr 1999 umfassend saniert. Dabei wurde großer Wert auf nachhaltige Substanzverbesserung gelegt:




  • Mauertrockenlegung durch vollständiges Durchschneiden der feuchten Mauern



  • Sanierter Dachstuhl inkl. neuer Folie, Wiedereindeckung mit den bestehenden Ziegeln



  • Erneuerung sämtlicher Bodenbeläge



  • Zentralheizung mittels Gastherme und Radiatoren



  • Fenster überarbeitet, gestrichen sowie mit Insektenschutz und Rollläden ausgestattet



  • Anschluss an den Ortskanal



  • Anbindung an die Ringwasserleitung



  • Bestehender Brunnen, der aktuell kein Wasser führt (Überprüfung empfohlen)



  • SAT & WLAN im Haus






Zusätzliche Raum- und Nutzungsmöglichkeiten bieten mehrere Nebengebäude:




  • Werkstatt 51,7m²



  • Garage 20,6m²



  • Ehemaliger Saustall mit angrenzender Selch, liebevoll zur gemütlichen Laube umgebaut mit ca.45m²






Infrastuktur:



Neben einen Nahversorger gibt es ein Tiefkühlservice, Postservice und ein Arztservice! Die Therme Bück ist 15min und die Therme Hegykö ist 25min entfernt!





Diese Liegenschaft eignet sich ideal für Familien, Handwerker, Naturliebhaber oder Käufer mit Bedarf an großzügigen Außenflächen und zusätzlichem Entwicklungs- bzw. Gestaltungsspielraum.





Ich freue mich auf Ihre Nachricht oder Ihren Anruf, um Ihnen dieses einmalige Objekt vor Ort zeigen zu dürfen.



Herzliche Grüße,



Paul Kneisz



+43 (0)660 3 817 517



www.grabner-immobilien.at



kneisz@grabner-immobilien.at


Eckdaten Objektnr. 8204

Art: Haus
Land: Ungarn
Baujahr: 1930
Zustand: Teil_vollsaniert
Alter: Neubau
Kaufpreis: 139.000,00
Provision: 3% des Kaufpreises zzgl. 20% USt.
Wohnfläche: 122,00 m²
Nutzfläche: 245,00 m²
Grundstücksfl.: 2.899,00 m²
Zimmer: 3
Bäder: 2
WC: 2
Terrassen: 1
Stellplätze: 2
Immobilie merken Exposé

Ausstattung

Dielenboden, Fliesen, Gas, Zentralheizung, Einbauküche, Garage, Parkplatz


Immobilie anfragen


Ihre persönliche Beratung

Grabner Immobilien

Paul Kneisz

Grabner Immobilien GmbH

T +43 660 38 17 517