Zentrale schöne Geschäftsfläche mit 93m² in Markt Hartmannsdorf
Einzelhandel
,
8311
Markt Hartmannsdorf
8311 Markt Hartmannsdorf
Beschreibung der Immobilie
Zentrale schöne Geschäftsfläche mit 93m² in Markt Hartmannsdorf
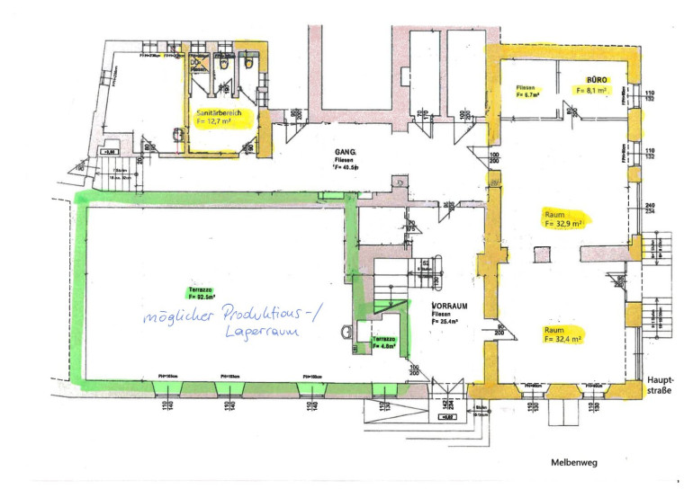
Zur Vermietung gelangt hier eine vielfältig nutzbare Geschäftsfläche mit rund 93m² in einem historischen Stadthaus im Zentrum von Markt Hartmannsdorf. Sei es als Büro, Verkaufsfläche oder für einen kleinen Gastronomiebetrieb (Café, Bistro etc).
Die Räumlichkeiten befinden sich im Erdgeschoß in einem wunderschönen Traditionshaus und waren bislang die Verkaufsräume einer Bäckerei inkl. kleinem Café. 2025 wurde die gesamte Fläche renoviert.
- 3 helle Räume (zwei mit offenem Durchgang und ein separater Raum mit Lager - zB für ein Büro), Gesamtmiete inkl. BK und Heizungsakonto: € 1.113,60 brutto
- 1 Sanitärraum mit 2 WC und einer Dusche
- Eingang straßenseitig mit 2 großen Auslagefenstern, die gute Sichtbarkeit bieten (Nutzung eines zweiten Seiteneingangs möglich)
- Parkplätze für Mitarbeiter sind nach Absprache verfügbar
- Heizung und Wasser werden nach tatsächlichem Verbrauch abgerechnet
Es besteht zudem die Möglichkeit, die ehemalige Produktionsräumlichkeit der Bäckerei mit rund 97m² zusätzlich anzumieten (als Produktionsraum oder Lager).Auch zwei kleine Kühlräume (mit 5,5m² und 6,9m²) können bei Bedarf zusätzlich angemietet werden.
Die Marktgemeinde Markt Hartmannsdorf liegt in der schönen Oststeiermark im Bezirk Weiz und hat rund 3.000 Einwohner mit einem stetigen Bevölkerungszuwachs seit den 1990er Jahren, was für eine positive Entwicklung der Gemeinde spricht. Die öffentliche Anbindung nach Feldbach, Gleisdorf und Graz ist über eine gute Busverbindung gegeben, mit dem Auto fährt man ca. je 15 Minuten nach Gleisdorf oder Feldbach.
Wir freuen uns auf Ihre Anfrage und eine gemeinsame Besichtigung!
Infrastruktur / Entfernungen
Gesundheit
Arzt <500m
Apotheke <6.000m
Kinder & Schulen
Schule <500m
Kindergarten <500m
Nahversorgung
Supermarkt <500m
Bäckerei <500m
Sonstige
Bank <500m
Geldautomat <500m
Post <6.000m
Polizei <500m
Verkehr
Bus <500m
Autobahnanschluss <4.000m
Bahnhof <7.000m
Flughafen <9.500m
Angaben Entfernung Luftlinie / Quelle: OpenStreetMap
Eckdaten Objektnr. 961/36019
| Art: | Einzelhandel |
| Land: | Österreich |
| Baujahr: | 1709 |
| Kaltmiete (netto): | 649,60 € |
| Kaltmiete: | 835,20 € |
| Provision: | 3 Bruttomonatsmieten zzgl. 20% USt. |
| Betriebskosten: | 185,60 € |
| Heizkosten: | 92,80 € |
| MwSt Gesamt: | 185,60 € |
| Nutzfläche: | 92,80 m² |
| Heizwärmebedarf: | C 68,80 kWh/m²a |
| fGEE: | C 1,69 |
Ihre persönliche Beratung
Dieser Makler ist ein offizielles Mitglied des IR – ir.at Mehr Erfahren

