Großzügige Bürofläche, Toplage nahe Wiener Prater und Messe Wien
Büro / Praxis
- Bürofläche,
1020
Wien
Stuwerviertel
Beschreibung der Immobilie
Großzügige Bürofläche, Toplage nahe Wiener Prater und Messe Wien
Lage und Umfeld
Die gegenständliche Liegenschaft liegt in einem aufstrebenden Teil des 2. Wiener Gemeindebezirks in der Schönngasse in unmittelbarer Nähe zum Wiener Prater und zur Messe Wien. Die U2-Station "Messe-Prater" befindet sich ca. 500 m, die U1-Station "Vorgartenstraße" ca. 700 m entfernt und sind somit zu Fuß in ein paar Minuten zu erreichen. Die nächstgelegenen Stationen der Buslinien 11A und 11B "Hillerstraße" und "Jungstraße" sind nur ein paar Schritte entfernt. Die Anbindung an das öffentliche Verkehrsnetz ist somit als ausgezeichnet zu beschreiben. Auch für den Individualverkehr ist das Objekt sehr gut gelegen. Sowohl die A22 (Donauufer Autobahn) als auch die A23 (Südosttangente) können sehr rasch erreicht werden. Die Fahrzeit in die Wiener Innenstadt (Stephansplatz) beträgt sowohl mit den öffentlichen Verkehrsmitteln als auch mit dem PKW ca. 15 Minuten. Die nächstgelegenen Einkaufsmöglichkeiten für Güter des täglichen Bedarfs (BILLA, EUROSPAR, LIDL etc.) sowie eine Apotheke sind in einem Umkreis von max. ca. 5 Minuten zu Fuß erreichbar. Nach einem anstrengenden Arbeitstag lädt der Wiener Prater zum Sporteln und Entspannen im Grünen ein.
Objekt und Ausstattung
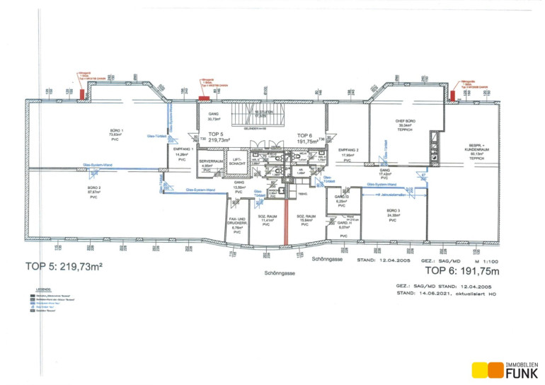
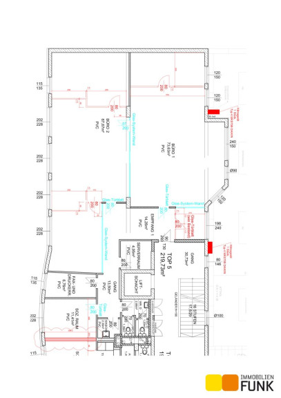
Zur unbefristeten Vermietung gelangt diese großzügige Bürofläche im dritten Liftstock eines gut erhaltenen Neubaus aus den 80er/90er-Jahren. Die Nutzfläche beträgt ca. 219,73 m² und deckt die Hälfte des ersten Obergeschosses ab. Über einen Empfangsbereich gelangt man in zwei große helle Büroräume (ca. 74 bzw. 87 m²), die sich durch eine angenehme Arbeitsatmosphäre auszeichnen. Des Weiteren gibt es noch einen Sozialraum und Toilettenräumlichkeit wie im Plan ersichtlich ist. Die aktuelle monatliche Vorschreibung für Heizung beträgt € 195,88 inkl. USt.
Noch nichts gefunden? Wir informieren Sie über geeignete Immobilienangebote noch vor allen anderen.
Legen Sie jetzt Ihren individuellen Suchagenten unter folgendem Link an. Wir schicken Ihnen passende Immobilien exklusiv vorab zu.
Suchagent anlegen - https://funk.service.immo/registrieren/de
Wir weisen darauf hin, dass zwischen dem Vermittler und dem zu vermittelnden Dritten ein familiäres oder wirtschaftliches Naheverhältnis besteht.
Der Vermittler ist als Doppelmakler tätig.
Informationen und Besichtigungen
Frau Mag. Olha Otto, BA steht Ihnen gerne telefonisch unter +43 1 533 46 44 48 oder per E-Mail unter olha.otto@funk.at zur Verfügung.
Immobilien Funk.success in real estate
Eckdaten Objektnr. 4401
| Art: | Büro / Praxis - Bürofläche |
| Land: | Österreich |
| Zustand: | Gepflegt |
| Alter: | Neubau |
| Kaltmiete (netto): | 2.417,03 € |
| Kaltmiete: | 2.850,18 € |
| Miete / m²: | 11,00 € |
| Provision: | 10.848,28 € inkl. 20% USt. |
| Betriebskosten: | 392,34 € |
| MwSt Gesamt: | 570,04 € |
| Nutzfläche: | 219,73 m² |
| Bürofläche: | 219,73 m² |
| Zimmer: | 5 |
| Heizwärmebedarf: | C 54,00 kWh/m²a |
Ausstattung
Fernwärme, Personenaufzug
Ihre persönliche Beratung
Dieser Makler ist ein offizielles Mitglied des IR – ir.at Mehr Erfahren

