Neuwertiges Bürohaus in Gallneukirchen – Top Ausstattung, ideale Lage!

Büro / Praxis - Bürohaus, 4210 Gallneukirchen


Diese attraktive Büro- und Praxisimmobilie befindet sich in der pulsierenden Umgebung von Gallneukirchen, Oberösterreich. Die Lage bietet eine hervorragende Anbindung an wichtige Dienstleistungen wie Arzt, Apotheke und Klinik. Schulen und Kindergärten sind ebenfalls in der Nähe, was die Erreichbarkeit für Familien erleichtert. Supermärkte, Bäckereien und ein Einkaufszentrum sorgen für den täglichen Bedarf. Zudem sind Bank, Geldautomat, Post und Polizeistation in unmittelbarer Nähe. Eine optimale Verkehrsanbindung durch öffentliche Verkehrsmittel rundet das Angebot ab.

Beschreibung der Immobilie

Neuwertiges Bürohaus in Gallneukirchen – Top Ausstattung, ideale Lage!

Moderne Büro-/Praxisfläche in Gallneukirchen



Willkommen in Ihrem neuen Büro- oder Praxisstandort in der charmanten Stadt Gallneukirchen in Oberösterreich!



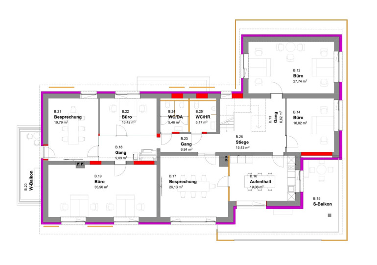
Zur Vermietung steht die gesamte Erdgeschossfläche eines umfassend neu adaptierten, sanierten und modernisierten Bürohauses. Die Einheit umfasst vier helle und vielseitig nutzbare Büroräume mit einer Nutzfläche von 112,82 m².



Zusätzlich stehen Ihnen großzügige Allgemeinflächen zur Verfügung, darunter der repräsentative Eingangsbereich, das Stiegenhaus, zwei WC-Einheiten sowie eine Teeküche. Diese Flächen wurden anteilig auf das gesamte Bürohaus aufgeteilt und sind bereits in der Gesamtfläche berücksichtigt.



Ein besonderes Plus: Der Balkon im 1. Obergeschoss kann von allen Mietern mitbenutzt werden und bietet einen angenehmen Rückzugsort für Pausen oder informelle Gespräche.



Highlights der Immobilien



  • Vier Büroräume im Erdgeschoss
  • Erstbezug nach umfassender Sanierung und Modernisierung
  • Moderne DV-/EDV-Verkabelung für optimale Arbeitsbedingungen
  • Teeküche und zwei WC-Einheiten (Allgemeinflächen)
  • Helle, freundliche Räume mit vielseitigen Nutzungsmöglichkeiten
  • Mitbenutzung eines Balkons im Obergeschoss


Parkmöglichkeiten & Infrastruktur



Zwei PKW-Abstellplätze sind der Einheit fix zugeordnet und bereits im Angebot inkludiert. Zusätzlich werden Kundenparkplätze direkt vor Ort errichtet, wodurch eine komfortable Erreichbarkeit für Besucher gewährleistet ist.



Die Verkehrsanbindung ist ausgezeichnet – Busverbindungen befinden sich in unmittelbarer Nähe und ermöglichen eine unkomplizierte Anreise für Mitarbeiter und Kunden.



Fazit



Diese moderne Büro- bzw. Praxisfläche bietet ideale Voraussetzungen für Unternehmen, die Wert auf eine hochwertige Arbeitsumgebung, gute Erreichbarkeit und ein repräsentatives Umfeld legen.



Nutzen Sie diese Gelegenheit und verwirklichen Sie Ihre Geschäftsidee an einem attraktiven Standort in Oberösterreich.



Vereinbaren Sie noch heute einen Besichtigungstermin – wir freuen uns auf Ihre Anfrage!

Infrastruktur / Entfernungen

Gesundheit
Arzt <500m
Apotheke <500m
Klinik <1.000m
Krankenhaus <10.000m

Kinder & Schulen
Schule <500m
Kindergarten <500m
Universität <7.500m
Höhere Schule <5.000m

Nahversorgung
Supermarkt <500m
Bäckerei <500m
Einkaufszentrum <500m

Sonstige
Bank <500m
Geldautomat <500m
Post <500m
Polizei <1.000m

Verkehr
Bus <500m
Autobahnanschluss <2.500m
Straßenbahn <8.000m
Bahnhof <7.000m
Flughafen <9.000m

Angaben Entfernung Luftlinie / Quelle: OpenStreetMap

Eckdaten Objektnr. 2086/26021

Art: Büro / Praxis - Bürohaus
Land: Österreich
Baujahr: 2024
Zustand: Neuwertig
Alter: Neubau
Kaltmiete (netto): 1.037,50 €
Kaltmiete: 1.319,55 €
Provision: 3 Bruttomonatsmieten zzgl. 20% USt.
Betriebskosten: 282,05 €
Heizkosten: 56,41 €
MwSt Gesamt: 275,19 €
Gesamtfläche: 112,82 m²
Bürofläche: 89,30 m²
Zimmer: 4
WC: 2
Stellplätze: 2
Heizwärmebedarf:  B  48,00 kWh/m²a
fGEE:  B  0,74
Immobilie merken Exposé

Ausstattung

Fliesen, Kunststoffboden, Fußbodenheizung, Zentralheizung, DV-Verkabelung, Parkplatz, Teeküche


Immobilie anfragen


Ihre persönliche Beratung

IMMOS Immobilien Gerold Stadlhuber

Gerold Stadlhuber

IMMOS Immobilien Gerold Stadlhuber

T 0732/600 100

H 0664/4600100