Modernes Luxusrefugium mit 5 Zimmern und großem Outdoor-Pool!

Wohnung , 1190 Wien


Pötzleinsdorfer Schlosspark, Tennisclub Cottage

Beschreibung der Immobilie

Modernes Luxusrefugium mit 5 Zimmern und großem Outdoor-Pool!

Lage:



Das parkähnliche Grundstück liegt herrlich ruhig auf einem sanft geneigten Südhang im Pötzleinsdorfer Cottage, direkt an der Grenze zum 19. Bezirk.



Nur zwei Gehminuten entfernt befindet sich die Straßenbahnstation der Wiener Linien – Linie 41. Von dort erreicht man bequem den nahegelegenen Pötzleinsdorfer Schlosspark oder – in die andere Richtung – das Gersthofer Platzl, die U6 sowie das Schottentor und die Haupt- Unis.



Ebenfalls nur wenige Schritte entfernt liegen der Tennisplatz Cottage, eine ausgezeichnete Bäckerei und eine Apotheke.



Objekt:



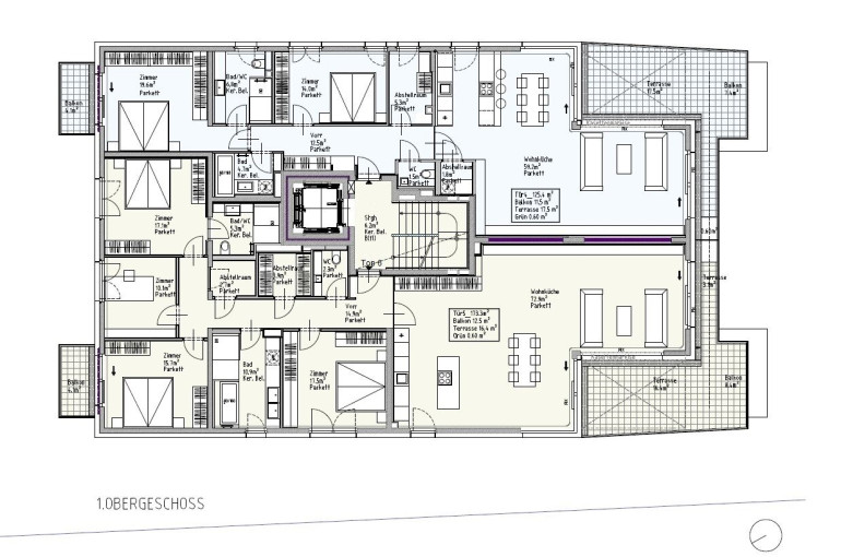
Die Wohnung befindet sich im erhöhten ersten Obergeschoss eines erst 2023 fertiggestellten, äußerst repräsentativen High-End-Objekts. Sie wirkt dank ihrer Ausrichtung sehr freundlich und hell und bietet auf rund 173 m² einen durchdachten Grundriss mit fünf großzügigen Zimmern.



Der etwa 73 m² große Wohn- und Essbereich bildet dabei das Herzstück der Wohnung. Eine elegante Glasfront führt auf die rund 28 m² große, südseitige Terrasse, von der aus sich ein schöner Blick in die weitläufige, parkähnliche Gartenanlage eröffnet. Dort befinden sich ein ca. 6 × 12 m großes Outdoor-Pool mit einem etwa 28 m² großen Poolhouse – ein stilvoller Rückzugsort für warme Tage.



Der private Bereich umfasst ein Masterbedroom mit en-suite-Bad, sowie zwei helle Kinderzimmer und ein praktisches Gästezimmer. Ergänzt wird das Raumangebot durch zwei weitere elegante Bäder und einem großzügigen Abstellraum.



Ausstattung:



  • Großzügiger Wohn-Essbereich mit wohnlichem Grundriss 
  • Gartenseitige Süd-West Terrasse mit ca. 28m²
  • Drei geräumige Schlafzimmer plus ein weiteres Zimmer – ideal für Gäste oder Au-pair
  • Ein Schlafzimmer mit zusätzlichem, kleinem Nordbalkon
  • 3 elegante Bäder, ein Bad mit Fenster
  • Vollständig möbliert, inklusive zeitloser Maß-Einbauschränke 
  • Hochwertige Maßküche mit Gaggenau-Geräten und integrierter Muldenlüftung
  • Übergroßer Outdoor-Pool und weitläufiger Gartenbereich zur Mitbenutzung 
  • Bussystem mit eigener Audioanlage
  • Alarmanlage
  • Zugangsmöglichkeit auch mit Code-System
  • Energieeffiziente Wärme und Kälte aus Tiefenbohrung!
  • Vollklimatisierung mit umweltschonenden Fan-Coil-Geräten 
  • Hochwertige Aluminiumfenster, teilweise elektrisch bedienbar
  • Raffstore plus eigener Insektenschutz
  • Zwei Abstellräume und ein großes Kellerabteil
  • Garage mit übergroßen Stellplätzen (ein Stellplatz im Kaufpreis inkludiert)




(c) Fotos, by Barbara Wirl


Hinweis gemäß Energieausweisvorlagegesetz: Ein Energieausweis wurde vom Eigentümer bzw. Verkäufer, nach unserer Aufklärung über die generell geltende Vorlagepflicht, sowie Aufforderung zu seiner Erstellung noch nicht vorgelegt. Daher gilt zumindest eine dem Alter und der Art des Gebäudes entsprechende Gesamtenergieeffizienz als vereinbart. Wir übernehmen keinerlei Gewähr oder Haftung für die tatsächliche Energieeffizienz der angebotenen Immobilie.

Infrastruktur / Entfernungen

Gesundheit
Arzt <500m
Apotheke <500m
Klinik <1.500m
Krankenhaus <2.000m

Kinder & Schulen
Schule <500m
Kindergarten <500m
Universität <1.500m
Höhere Schule <1.500m

Nahversorgung
Supermarkt <500m
Bäckerei <500m
Einkaufszentrum <3.000m

Sonstige
Geldautomat <500m
Bank <500m
Post <1.500m
Polizei <1.000m

Verkehr
Bus <500m
U-Bahn <2.500m
Straßenbahn <500m
Bahnhof <2.000m
Autobahnanschluss <3.500m

Angaben Entfernung Luftlinie / Quelle: OpenStreetMap

Eckdaten Objektnr. 3552

Art: Wohnung
Land: Österreich
Baujahr: 2023
Zustand: Erstbezug
Möbliert: Voll
Alter: Neubau
Kaufpreis: 2.680.000,00
Provision: 3% des Kaufpreises zzgl. 20% USt.
Wohnfläche: 173,30 m²
Zimmer: 5
Bäder: 3
WC: 2
Balkone: 2
Terrassen: 1
Keller: 14,10 m²
Immobilie merken Exposé

Ausstattung

Parkett, Fliesen, Erdwärme, Fußbodenheizung, Personenaufzug, Bad mit Fenster, Badewanne, Garage, Alarmanlage, Swimmingpool


Immobilie anfragen


Ihre persönliche Beratung

Johannes M. Pokorny Immobilientreuhand e.U.

Johannes M. Pokorny

Johannes M. Pokorny Immobilientreuhand e.U.

T +43 (0)1 505 94 55

H +43 (0) 664/184 30 42

F +43 (0)1 504 50 10